1719 Monroe Street, New Orleans, LA 70118
Local realty services provided by:Better Homes and Gardens Real Estate Rhodes Realty
1719 Monroe Street,New Orleans, LA 70118
$83,000
- 0 Acres
- Lots / Land
- Active
Listed by: baxter stewart
Office: collab realty, llc.
MLS#:2485232
Source:LA_GSREIN
Price summary
- Price:$83,000
About this home
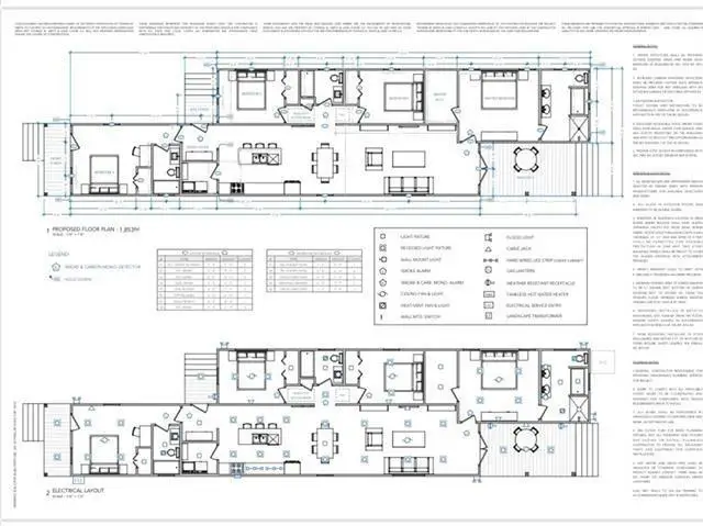
Extra deep 30x150.1 lot, ready to build! Located in an area of West Carrollton with a ton of new development, a few blocks to Oak St and right by the brand new Lycee Francais school. Can be purchased as a package with 1723 Monroe and/or 1727 Monroe. Zoned for single or multi-family. High and dry land, X flood zone! We built three 1855sf houses on Leonidas directly behind this lot which is the exact same size (one recently resold for $495K). That house would fit perfectly here, and we'll share the architectural plans if you're interested! Agent is a partial owner.
Contact an agent
Home facts
- Listing ID #:2485232
- Added:414 day(s) ago
- Updated:March 27, 2026 at 04:53 AM
Structure and exterior
- Lot Features:City Lot, Oversized Lot
- Exterior Features:Fence
Schools
- Elementary school:Lycee Francai
Utilities
- Water:Public
- Sewer:Public Sewer
Finances and disclosures
- Price:$83,000
New listings near 1719 Monroe Street
- New
$459,000Active3 beds 2 baths1,580 sq. ft.517 S Pierce Street, New Orleans, LA 70119
MLS# 2549220Listed by: COMPASS GARDEN DISTRICT (LATT18) - New
$275,000Active2 beds 2 baths1,188 sq. ft.3429 Willow Street, New Orleans, LA 70115
MLS# 2549621Listed by: COLLAB REALTY, LLC - New
$215,000Active3 beds 2 baths1,276 sq. ft.4819 Touro Street, New Orleans, LA 70122
MLS# 2549680Listed by: HOMESMART REALTY SOUTH - New
$268,000Active2 beds 2 baths1,248 sq. ft.1131 Bartholomew Street, New Orleans, LA 70117
MLS# 2548946Listed by: TALBOT HISTORIC PROPERTIES - New
$645,000Active2 beds 2 baths1,914 sq. ft.441 Gravier Street #10, New Orleans, LA 70130
MLS# 2547045Listed by: COMPASS UPTOWN-MAPLE ST (LATT28) - New
$240,000Active4 beds 2 baths872 sq. ft.1714 16 Independence Street, New Orleans, LA 70117
MLS# 2549373Listed by: WEICHERT, REALTORS - LABRANCH & ASSOCIATES - New
$1,375,000Active3 beds 5 baths3,559 sq. ft.7214 Ring Street, New Orleans, LA 70124
MLS# 2549699Listed by: BURK BROKERAGE, LLC - New
$240,000Active-- beds -- baths872 sq. ft.1714-16 Independence Street, New Orleans, LA 70117
MLS# NO2549373Listed by: WEICHERT, REALTORS - LABRANCH & ASSOCIATES - New
$275,000Active1 beds 1 baths661 sq. ft.1107 S Peters Street #316, New Orleans, LA 70130
MLS# 2547725Listed by: COMPASS UPTOWN-MAPLE ST (LATT28) - New
$279,999Active4 beds 4 baths4,614 sq. ft.5630 Samovar Drive, New Orleans, LA 70126
MLS# 2547732Listed by: NOLA LIVING REALTY