6341 Milne Boulevard, New Orleans, LA 70124
Local realty services provided by:Better Homes and Gardens Real Estate Rhodes Realty
6341 Milne Boulevard,New Orleans, LA 70124
$349,000
- 0.19 Acres
- Lots / Land
- Pending
Listed by: chris smith
Office: keller williams realty new orleans
MLS#:NO2540599
Source:LA_RAAMLS
Price summary
- Price:$349,000
About this home
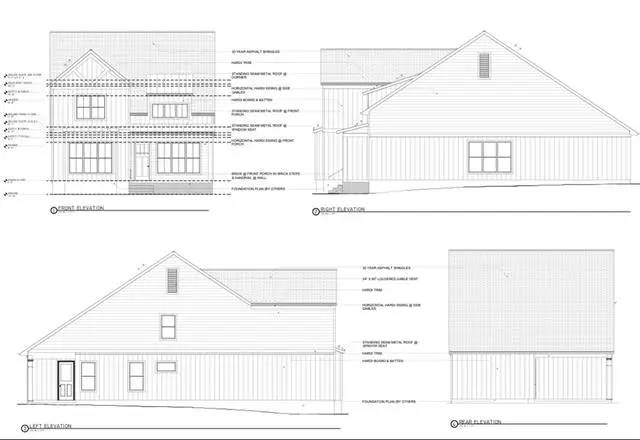
Situated in a SUPERB PART OF LAKEVIEW, this OVERSIZED LOT MEASURING 50' WIDE BY 160' DEEP is a rare and compelling opportunity to build in one of the most desirable residential corridors in Lakeview. The lot has been CLEARED AND IS READY FOR IMMEDIATE DEVELOPMENT, offering a clean slate for your vision with exceptional depth that is increasingly difficult to find. A 160' DEEP LOT allows for a generous building footprint, expansive outdoor living, a pool, gardens, and true separation between living spaces.<br><br> Surrounded by TREMENDOUS NEW CONSTRUCTION HOMES, this property is positioned among high quality custom residences, offering solid, long-term value. The location is unbeatable just a few short blocks to Another Broken Egg Cafe, The Velvet Cactus, El Gato Mexican Restaurant, and the best of Lakeview dining, neighborhood conveniences, and lifestyle amenities. Only 1/2 a block to Harrison Avenue!! <br><br> The seller has ARCHITECTURAL PLANS FOR A SPECTACULAR CUSTOM SINGLE FAMILY HOME that may be shared with the buyer, creating an opportunity to accelerate your build timeline and capitalize on an already curated design.<br><br> This is a PHENOMINAL OPPORTUNITY TO BUILD YOUR DREAM HOME on a truly exceptional lot in a premier Lakeview setting. THIS IS THE LOT THAT YOU HAVE BEEN WAITING FOR!!! DO NOT MISS THIS!!! A must see property for anyone seeking location, scale, and upside.<br><br>...
Contact an agent
Home facts
- Listing ID #:NO2540599
- Added:100 day(s) ago
- Updated:May 14, 2026 at 10:13 AM
Structure and exterior
- Lot area:0.19 Acres
Finances and disclosures
- Price:$349,000
Features and amenities
- Amenities:Electricity Available, Natural Gas Available, Phone Connected
New listings near 6341 Milne Boulevard
- New
$1,190,000Active4 beds 4 baths3,186 sq. ft.6038 Catina Street, New Orleans, LA 70124
MLS# 2557830Listed by: NOLA LIVING REALTY - New
$360,000Active6 beds 4 baths2,878 sq. ft.3024-3026 Toledano Street, New Orleans, LA 70125
MLS# 2557852Listed by: PELICAN STATE REALTY - New
$1,100,000Active3 beds 3 baths2,000 sq. ft.5108 Laurel Street, New Orleans, LA 70115
MLS# NO2558050Listed by: CONGRESS REALTY, INC.
$299,000Active-- beds -- baths1,800 sq. ft.2457-59 Jasmine Street, New Orleans, LA 70122
MLS# NO2554320Listed by: HOMESMART REALTY SOUTH- New
$125,000Active3 beds 2 baths1,272 sq. ft.14901 Emory Road, New Orleans, LA 70128
MLS# NO2557871Listed by: LIBERTY ONE REALTY, INC. - New
$225,000Active3 beds 2 baths1,096 sq. ft.5217 Mandeville Street, New Orleans, LA 70122
MLS# NO2558022Listed by: WITRY COLLECTIVE, L.L.C. - New
$99,000Active3 beds 1 baths1,248 sq. ft.1928 Eagle Street, New Orleans, LA 70118
MLS# 2554345Listed by: GIBSON LOTT PROPERTIES, LLC - New
$299,000Active3 beds 2 baths2,000 sq. ft.5400 Chatham Drive, New Orleans, LA 70122
MLS# 2557394Listed by: FIORELLA AVENUE REALTY - New
$424,000Active2 beds 2 baths1,209 sq. ft.913 Washington Avenue #3, New Orleans, LA 70130
MLS# NO2557025Listed by: COMPASS UPTOWN-MAPLE ST - New
$675,000Active3 beds 3 baths2,356 sq. ft.1931 Cambronne Street, New Orleans, LA 70118
MLS# NO2557934Listed by: KELLER WILLIAMS REALTY NEW ORLEANS