923 Spain Street, New Orleans, LA 70117
Local realty services provided by:Better Homes and Gardens Real Estate Rhodes Realty
Listed by: lisa fury
Office: reve, realtors
MLS#:2531461
Source:LA_GSREIN
Price summary
- Price:$425,000
- Price per sq. ft.:$108.11
About this home
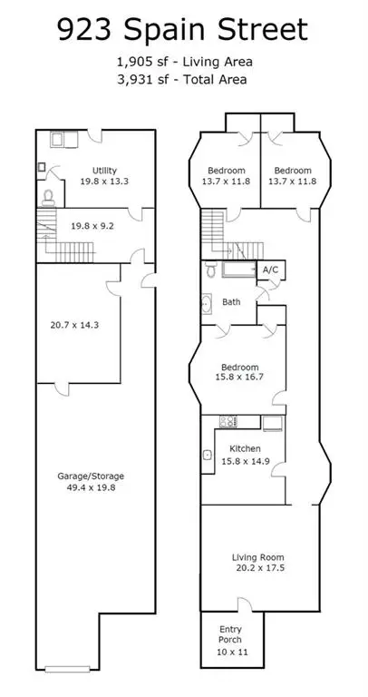
There is beauty in all things, and this Marigny Unicorn offers an exciting opportunity to live in one of New Orleans’ most vibrant neighborhoods at an affordable price—with a rare 20’ x 50’ Garage offering Parking for Several Cars, an extra deep 155 foot lot, and 2,000+ sqft of 1st floor BONUS area.
<br>
Built in 1952 and well-loved, its previous owner updated the electrical panel, added PEX plumbing, a new roof, and solar panels between 2020-2022. In addition to solid construction and reduced utility costs, there are beautifully coved ceilings, exposed wood trim and baseboards, and the original wood floors preserved beneath the carpeting.
<br>
The upstairs side-hall layout is quite spacious and features an enclosed front porch, 3 generously sized bedrooms, an oversized living/dining room, and lots of windows to brighten your day. The garage and 2 bonus rooms are located downstairs, along with the utility room leading to a covered patio and a lush backyard.
<br>
Whether you move right in, color-drench the entire space, reimagine the floor plan, use the garage for parking, storage, or costume making, or create a wonderful live/work/guest space, the possibilities are endless! All in an unbeatable location, walkable to the French Quarter, and all of Marigny's favorite haunts. Open Saturday from 1-3pm, Come see this rare gem and fall in love today.
<br>
Contact an agent
Home facts
- Year built:1952
- Listing ID #:2531461
- Added:5 day(s) ago
- Updated:December 16, 2025 at 04:00 AM
Rooms and interior
- Bedrooms:3
- Total bathrooms:2
- Full bathrooms:1
- Half bathrooms:1
- Living area:1,905 sq. ft.
Heating and cooling
- Cooling:Central Air
- Heating:Central, Heating
Structure and exterior
- Roof:Shingle
- Year built:1952
- Building area:1,905 sq. ft.
- Lot area:0.1 Acres
Utilities
- Water:Public
- Sewer:Public Sewer
Finances and disclosures
- Price:$425,000
- Price per sq. ft.:$108.11
New listings near 923 Spain Street
- New
$799,000Active12 beds 6 baths4,914 sq. ft.1400 Governor Nicholls Street, New Orleans, LA 70116
MLS# 2532374Listed by: DEMAND REALTY - New
$799,000Active8 beds 4 baths3,487 sq. ft.1400 Governor Nicholls Street, New Orleans, LA 70116
MLS# NO2532374Listed by: DEMAND REALTY - New
$165,000Active-- beds -- baths2,409 sq. ft.2429 Clara Street, New Orleans, LA 70113
MLS# NO2534201Listed by: KELLER WILLIAMS REALTY 455-0100 - New
$330,000Active2 beds 1 baths627 sq. ft.940 Orleans Avenue #6, New Orleans, LA 70116
MLS# 2533836Listed by: SNAP REALTY - New
$275,000Active2 beds 2 baths1,130 sq. ft.8426 Green Street, New Orleans, LA 70118
MLS# 2534661Listed by: MCENERY RESIDENTIAL, LLC - New
$40,000Active0.09 Acres2818-22 Franklin Avenue, New Orleans, LA 70122
MLS# 2534683Listed by: FRERET REALTY - New
$40,000Active0.09 Acres2818-22 Franklin Avenue, New Orleans, LA 70122
MLS# NO2534683Listed by: FRERET REALTY - New
$1,200Active2 beds 1 baths800 sq. ft.2421 2nd Street, New Orleans, LA 70113
MLS# 2534619Listed by: INWOOD REALTY, LLC - New
$425,000Active5 beds 3 baths2,641 sq. ft.440 Vallette Street, New Orleans, LA 70114
MLS# 2534721Listed by: SNAP REALTY - New
$289,000Active6 beds 4 baths2,132 sq. ft.1946 Hope Street, New Orleans, LA 70119
MLS# 2534648Listed by: CENTURY 21 J. CARTER & COMPANY