3 Seal Harbor #344, Winthrop, MA 02152
Local realty services provided by:Better Homes and Gardens Real Estate The Shanahan Group
3 Seal Harbor #344,Winthrop, MA 02152
$695,000
- 2 Beds
- 2 Baths
- 1,302 sq. ft.
- Condominium
- Active
Upcoming open houses
- Sat, Nov 2211:30 am - 01:00 pm
- Sun, Nov 2311:30 am - 01:00 pm
Listed by: mark carangelo, mark carangelo
Office: mark carangelo
MLS#:73438115
Source:MLSPIN
Price summary
- Price:$695,000
- Price per sq. ft.:$533.79
- Monthly HOA dues:$841
About this home
Situated at the ocean's edge in Winthrop, Seal Harbor is located just fifteen minutes from Boston's financial district. Building is amenity-rich- 24/7 concierge, on-site management, secure underground deeded garage parking, heated outdoor pool with shower, bathrooms, full poolhouse kitchen, outdoor Jacuzzi & 2 gas grills, year-round access to an indoor pool on the 9th floor, complete with dramatic views, a full, new fitness center, as well as an indoor Jacuzzi and sauna with a large deck-perfect for viewing Independence Day fireworks! Seal Harbor Three boasts 3 separate function rooms where owners and their guests are able to enjoy table tennis, billiards and television. In addition to the mature grounds, owners also have access to tennis courts, private basement storage, bicycle storage, water sports storage and a full recycling facility. This home has ONE deeded underground garage parking spot & acres of guest parking. Unit has new HVAC, H2O tank & laundry and unrestricted views.
Contact an agent
Home facts
- Year built:1987
- Listing ID #:73438115
- Updated:November 21, 2025 at 11:48 AM
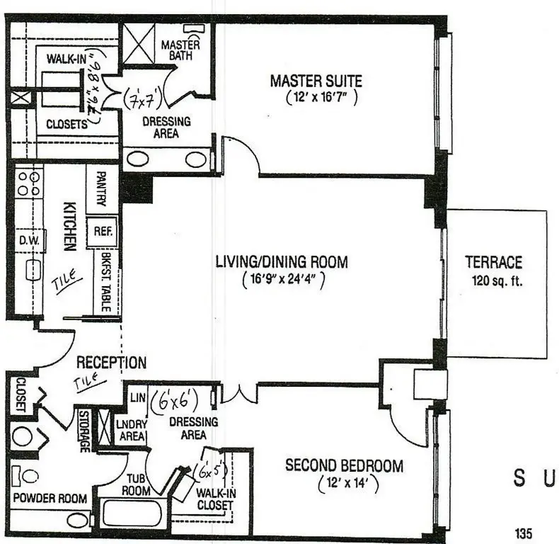
Rooms and interior
- Bedrooms:2
- Total bathrooms:2
- Full bathrooms:2
- Living area:1,302 sq. ft.
Heating and cooling
- Cooling:3 Cooling Zones, Central Air, Heat Pump, Individual, Unit Control
- Heating:Central, Electric, Forced Air, Heat Pump, Individual, Unit Control
Structure and exterior
- Roof:Rubber
- Year built:1987
- Building area:1,302 sq. ft.
Utilities
- Water:Public
- Sewer:Public Sewer
Finances and disclosures
- Price:$695,000
- Price per sq. ft.:$533.79
- Tax amount:$7,732 (2025)
New listings near 3 Seal Harbor #344
- Open Sat, 10:30am to 12:30pmNew
$408,450Active1 beds 1 baths546 sq. ft.10 Somerset #404, Winthrop, MA 02152
MLS# 73456763Listed by: Charlesgate Realty Group, llc - Open Sat, 11am to 1pmNew
$1,087,000Active2 beds 2 baths1,975 sq. ft.550 Pleasant St #506, Winthrop, MA 02152
MLS# 73456380Listed by: Blue Sky Realty - Open Sat, 11:30am to 1pmNew
$319,000Active2 beds 1 baths772 sq. ft.1100 Governors Dr #6, Winthrop, MA 02152
MLS# 73454319Listed by: Return Realty Group, Inc. - New
$719,000Active3 beds 2 baths1,449 sq. ft.92 Plummer Ave, Winthrop, MA 02152
MLS# 73454720Listed by: Keller Williams Realty Boston-Metro | Back Bay - Open Sat, 11am to 12:30pmNew
$1,075,000Active4 beds 4 baths2,575 sq. ft.191 Court Rd #3, Winthrop, MA 02152
MLS# 73454724Listed by: Reference Real Estate - Open Sat, 12 to 2pmNew
$425,000Active2 beds 1 baths1,092 sq. ft.9 Atlantic St #2, Winthrop, MA 02152
MLS# 73454898Listed by: Redfin Corp. - Open Sat, 12:30 to 2pmNew
$715,000Active3 beds 2 baths1,764 sq. ft.960 Shirley St, Winthrop, MA 02152
MLS# 73453149Listed by: Coldwell Banker Realty - Milton
$899,995Active3 beds 3 baths1,674 sq. ft.3 Seal Harbor Rd #736, Winthrop, MA 02152
MLS# 73452959Listed by: Lyv Realty- Open Sat, 11am to 12:30pm
$549,900Active3 beds 1 baths1,280 sq. ft.28 Pearl Ave #3, Winthrop, MA 02152
MLS# 73452771Listed by: Reference Real Estate
$1,324,900Active4 beds 3 baths2,640 sq. ft.129 Strandway, Winthrop, MA 02152
MLS# 73452093Listed by: Byrnes Real Estate Group LLC