6262 S Bear Den Trail, Muskegon, MI 49444
Local realty services provided by:Better Homes and Gardens Real Estate Connections
6262 S Bear Den Trail,Muskegon, MI 49444
$325,575
- 2 Beds
- 2 Baths
- 1,147 sq. ft.
- Single family
- Pending
Listed by: thomas a serio
Office: real estate west
MLS#:25053897
Source:MI_MICHRIC
Price summary
- Price:$325,575
- Price per sq. ft.:$283.85
- Monthly HOA dues:$41.67
About this home
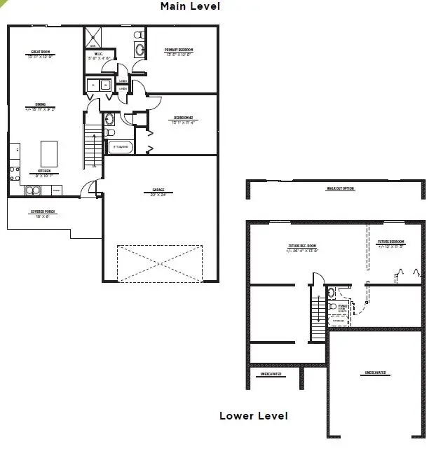
CUSTOM BUILD! This 'Aspen' ranch home plan is situated on lot #250 with a daylight basement. The Aspen offers 2 large bedrooms and 2 full bathrooms. This plan offers a modern twist to a traditional floorplan. The open concept great room offers access to the covered front porch. L-Shaped kitchen hosts lots of cabinetry, an island and separate dining area. The living room has a slider to the deck. Master suite complete with a walk in closet and full bathroom. The full basement is plumbed for a full bath and could be finished for future living space. Upgrades include 9' ceilings, 42'' upper cabinets, a tiled kitchen backsplash, and LG stainless steel kitchen appliances. Odeno is a custom home development in Fruitport Schools. Winding roads, walking trails, and community ponds set this neighborhood apart. Private and serene, yet just minutes from highway access, shopping, and recreation. Welcome to Odeno- Place of Many Hearts. Some photos may be of previously completed homes. Builder to v erify finishes and final sale price prior to accepting an offer....
Contact an agent
Home facts
- Year built:2026
- Listing ID #:25053897
- Added:204 day(s) ago
- Updated:May 13, 2026 at 07:39 AM
Rooms and interior
- Bedrooms:2
- Total bathrooms:2
- Full bathrooms:2
- Rooms Total:8
- Kitchen Description:Dishwasher, Disposal, Microwave, Range, Refrigerator
- Basement:Yes
- Basement Description:Daylight
- Living area:1,147 sq. ft.
Heating and cooling
- Heating:Forced Air
- Central air:Yes
Structure and exterior
- Year built:2026
- Building area:1,147 sq. ft.
- Lot area:0.25 Acres
- Construction Materials:Vinyl Siding
Utilities
- Water:Public
Finances and disclosures
- Price:$325,575
- Price per sq. ft.:$283.85
Parking
- Garage:Yes
- Garage spaces:2
New listings near 6262 S Bear Den Trail
- New
$429,000Active3 beds 3 baths2,632 sq. ft.1086 Ivanhoe Drive, Muskegon, MI 49445
MLS# 26021049Listed by: CENTURY 21 TROPHY CLASS - New
$200,000Active3 beds 1 baths1,031 sq. ft.1351 Ada Avenue, Muskegon, MI 49442
MLS# 26021693Listed by: EDISON BROKERS & CO LLC - New
$260,000Active2 beds 1 baths912 sq. ft.1180 W Grand Avenue, Muskegon, MI 49441
MLS# 26021675Listed by: RE/MAX WEST - New
$650,000Active3 beds 2 baths2,009 sq. ft.380 Whispering Oaks Drive, Muskegon, MI 49442
MLS# 26021617Listed by: FIVE STAR REAL ESTATE - N MUSK - New
$379,900Active4 beds 2 baths2,268 sq. ft.1270 Holiday Street, Muskegon, MI 49442
MLS# 26021640Listed by: GREENRIDGE - NEXES - Open Sat, 12 to 1:30pmNew
$429,700Active3 beds 2 baths2,106 sq. ft.3222 George Street, Muskegon, MI 49444
MLS# 26021538Listed by: TUCKER BENNER REALTY LLC - Open Sat, 11am to 12:30pmNew
$63,900Active3 beds 2 baths1,216 sq. ft.68 Maple Court, Muskegon, MI 49445
MLS# 26021540Listed by: DREAM HOUSE WEST MICHIGAN LLC - Open Sun, 1 to 3pmNew
$339,900Active3 beds 2 baths1,400 sq. ft.930 N Mill Iron Road, Muskegon, MI 49442
MLS# 26021511Listed by: ALDYN BREEZE REALTY LLC - New
$310,000Active3 beds 4 baths2,128 sq. ft.1318 Morgan Avenue, Muskegon, MI 49442
MLS# 26021480Listed by: HOMEFLEX REALTY, INC - New
$449,900Active4 beds 3 baths2,511 sq. ft.938 N Scenic Drive, Muskegon, MI 49445
MLS# 26021437Listed by: COLDWELL BANKER WOODLAND SCHMIDT WHITEHALL