9441 Fields Drive, Zeeland, MI 49464
Local realty services provided by:Better Homes and Gardens Real Estate Connections
Listed by: ron webb
Office: coldwell banker woodland schmidt
MLS#:26002511
Source:MI_GRAR
Price summary
- Price:$519,900
- Price per sq. ft.:$333.91
- Monthly HOA dues:$26.67
About this home
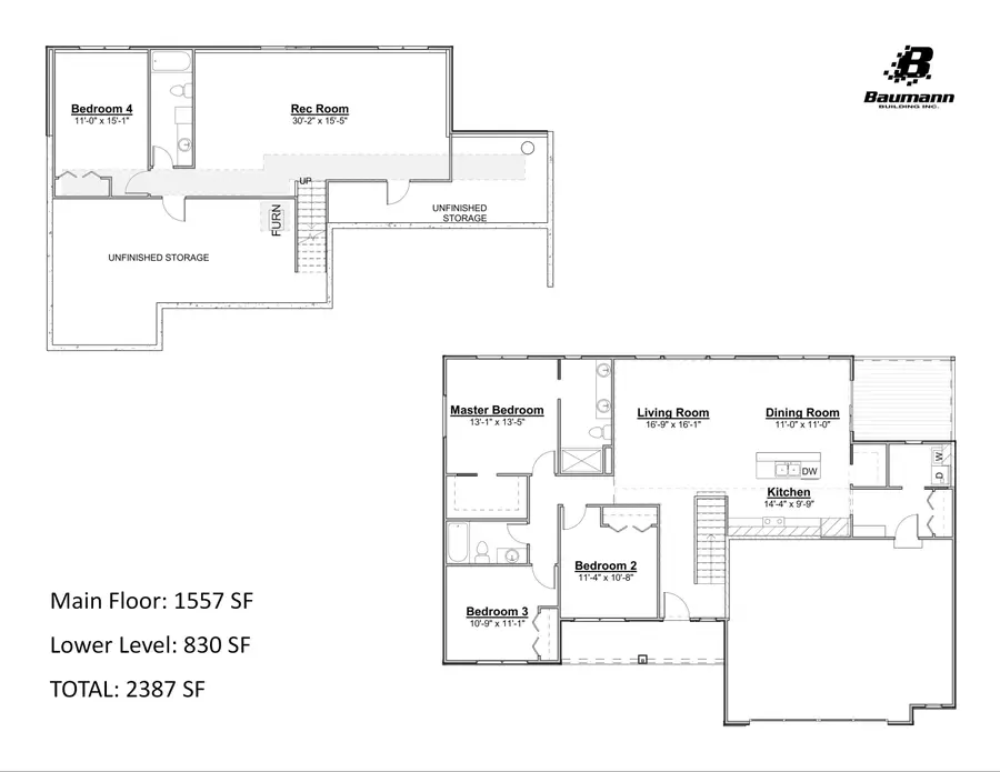
Baumann Building & Harvest Fields is offering this fabulous floor plan called the '' Bristol '' which offers 1557 sq.ft. of finished living space on the main floor which includes 3 bedrooms and 2 full baths. Master suite includes a master bath and walk-in closet. On the main floor you'll also find an open great room with cathedral ceilings, Kitchen w/ island, snack bar with quartz countertops & a large walk-in pantry, dining area with sliders to deck. Full appliance package, a main floor laundry plus a 2 1/2 stall garage for all your storage needs. You have an additional Bedroom, Bath & Family room finished in the walkout lower level to enjoy with lots of storage. Take a drive over and check Harvest Fields out and contact us today for this home or reserving your lot for your own custom home. We have 3 homes under construction currently and 4 lots left. Give me a call today to see what we have to offer. At Baumann Building we have built our reputation round our relationships with our clients. Our #1 priority is ensuring we know you well enough to create for you the perfect home.
Contact an agent
Home facts
- Year built:2026
- Listing ID #:26002511
- Added:1 day(s) ago
- Updated:January 23, 2026 at 05:02 PM
Rooms and interior
- Bedrooms:4
- Total bathrooms:3
- Full bathrooms:3
- Living area:2,387 sq. ft.
Heating and cooling
- Heating:Forced Air
Structure and exterior
- Year built:2026
- Building area:2,387 sq. ft.
- Lot area:0.24 Acres
Utilities
- Water:Public
Finances and disclosures
- Price:$519,900
- Price per sq. ft.:$333.91
- Tax amount:$110 (2025)
New listings near 9441 Fields Drive
- New
$325,000Active2 beds 3 baths1,983 sq. ft.10962 Cranberry Court, Zeeland, MI 49464
MLS# 26002756Listed by: COLDWELL BANKER SCHMIDT REALTORS - New
$354,900Active-- beds -- baths160 W Main Avenue, Zeeland, MI 49464
MLS# 26002533Listed by: HOMEREALTY HOLLAND - New
$219,900Active3 beds 1 baths1,246 sq. ft.11190 Winter Drive, Zeeland, MI 49464
MLS# 26002427Listed by: HOMEREALTY HOLLAND - New
$349,900Active3 beds 2 baths1,572 sq. ft.6503 Adams Street, Zeeland, MI 49464
MLS# 26002433Listed by: COLDWELL BANKER WOODLAND SCHMIDT - New
$369,900Active3 beds 2 baths1,682 sq. ft.32 W Main Avenue, Zeeland, MI 49464
MLS# 26002165Listed by: GREENRIDGE REALTY (WEST)
$309,900Pending3 beds 1 baths1,056 sq. ft.221 S Park Street, Zeeland, MI 49464
MLS# 26001969Listed by: HOMEREALTY HOLLAND- New
$459,900Active4 beds 4 baths2,853 sq. ft.1464 Hillridge Way, Zeeland, MI 49464
MLS# 26001949Listed by: FIVE STAR REAL ESTATE-HOLLAND - New
$150,000Active1.4 Acres0 Felch Street #Lot A, Zeeland, MI 49464
MLS# 26001912Listed by: WEST EDGE REAL ESTATE LLC
$359,900Pending4 beds 2 baths2,029 sq. ft.10969 Wood Run, Zeeland, MI 49464
MLS# 26001515Listed by: REEDS REALTY