13959 Grand Oaks Drive, Baxter, MN 56425
Local realty services provided by:Better Homes and Gardens Real Estate Advantage One
13959 Grand Oaks Drive,Baxter, MN 56425
$349,500
- 4 Beds
- 2 Baths
- 2,192 sq. ft.
- Single family
- Pending
Listed by: brandi breitbach
Office: edina realty, inc.
MLS#:6812856
Source:NSMLS
Price summary
- Price:$349,500
- Price per sq. ft.:$159.44
About this home
Spacious 4-bedroom, 2-bath home in the heart of Baxter, set on a generous lot. This well-maintained property features newer appliances a furnace and A/C that have been serviced by CenterPoint. The main level offers an open kitchen and dining area—perfect for family gatherings—while the lower level includes a cozy gas fireplace for relaxing evenings.
You’ll love the walk-in closets with plenty of storage space. Step outside to a large, fully fenced backyard ideal for entertaining, relaxing, or adding a fire pit. An oversized 2-stall garage and additional storage provide even more convenience. Located close to schools, parks, and shopping.
Move-in ready—schedule your showing today!
Contact an agent
Home facts
- Year built:2001
- Listing ID #:6812856
- Added:100 day(s) ago
- Updated:February 12, 2026 at 08:43 PM
Rooms and interior
- Bedrooms:4
- Total bathrooms:2
- Full bathrooms:2
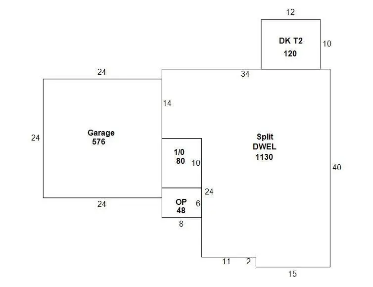
- Living area:2,192 sq. ft.
Heating and cooling
- Cooling:Central Air
- Heating:Forced Air
Structure and exterior
- Roof:Age 8 Years or Less
- Year built:2001
- Building area:2,192 sq. ft.
- Lot area:0.56 Acres
Utilities
- Water:City Water - Connected
- Sewer:City Sewer - Connected
Finances and disclosures
- Price:$349,500
- Price per sq. ft.:$159.44
- Tax amount:$3,074 (2025)
New listings near 13959 Grand Oaks Drive
- Coming SoonOpen Sun, 11am to 1pm
$474,900Coming Soon6 beds 4 baths13099 Timberlane Drive, Baxter, MN 56425
MLS# 7016946Listed by: REAL BROKER, LLC - Open Sat, 10am to 12pmNew
$584,900Active3 beds 2 baths1,883 sq. ft.14502 Lynndale Drive, Baxter, MN 56425
MLS# 7017089Listed by: GREGORY F WERSAL, BROKER - New
$285,500Active2 beds 1 baths1,951 sq. ft.11662 Knotty Pine Drive S, Baxter, MN 56425
MLS# 7017048Listed by: RE/MAX RESULTS - New
$487,900Active4 beds 3 baths2,508 sq. ft.6185 Fairfax Court, Baxter, MN 56425
MLS# 7014400Listed by: NEXTHOME HORIZONS - New
$402,000Active3 beds 2 baths2,341 sq. ft.L4B2 Wildflower Drive, Baxter, MN 56425
MLS# 7016683Listed by: EDINA REALTY, INC. - Coming SoonOpen Sun, 11am to 1pm
$319,900Coming Soon3 beds 2 baths5179 Birchdale Lane, Baxter, MN 56425
MLS# 7014252Listed by: REAL BROKER, LLC
$249,000Pending3 beds 2 baths1,893 sq. ft.13226 Norway Drive, Baxter, MN 56425
MLS# 6825047Listed by: YOUR HOME SOLD GUARANTEED REALTY EXCLUSIVE
$149,000Active2 beds 2 baths1,004 sq. ft.7084 Glory Road #309, Baxter, MN 56425
MLS# 7012054Listed by: LPT REALTY, LLC
$149,000Active2 beds 2 baths1,004 sq. ft.7084 Glory Road #309, Baxter, MN 56425
MLS# 7012054Listed by: LPT REALTY, LLC
$315,000Active3 beds 2 baths2,560 sq. ft.8378 Red Pine Circle, Baxter, MN 56425
MLS# 7008884Listed by: LPT REALTY, LLC