2 Marie Circle, Elysian, MN 56028
Local realty services provided by:Better Homes and Gardens Real Estate Advantage One
2 Marie Circle,Elysian, MN 56028
$399,900
- 3 Beds
- 2 Baths
- 1,520 sq. ft.
- Single family
- Active
Listed by: katyana miller
Office: miller real estate
MLS#:7038848
Source:NSMLS
Price summary
- Price:$399,900
- Price per sq. ft.:$131.55
- Monthly HOA dues:$4.17
About this home
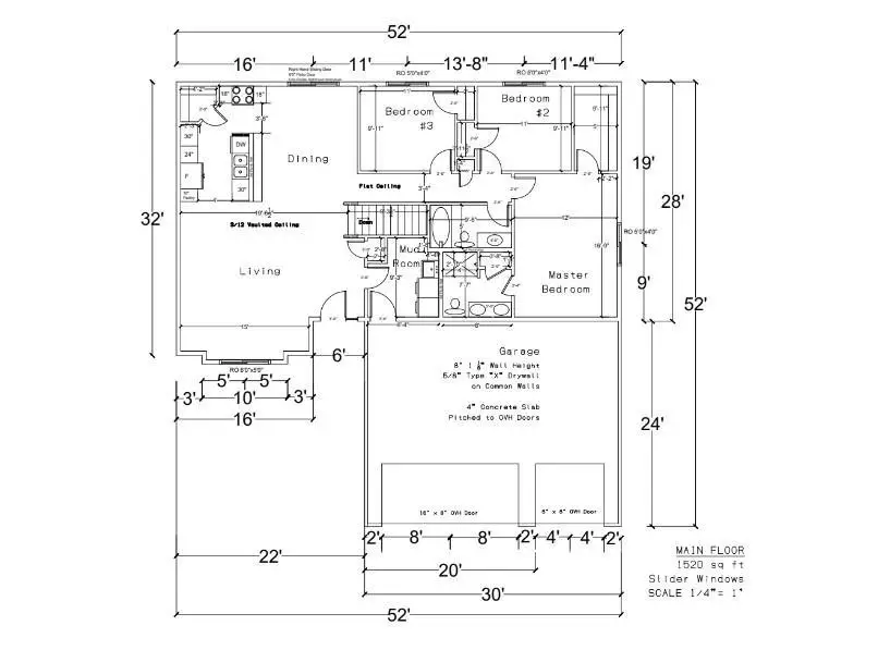
*UNDER CONSTRUCTION WALKOUT RAMLBER W/UNFINISHED BASEMENT SPEC HOME* Enjoy the ease of one-level living in this thoughtfully designed walk-out rambler featuring an attached 3-car garage and a bright, open-concept layout. The main living area seamlessly connects the living room, dining and kitchen, creating an ideal setting for everyday living and entertaining. The kitchen offers both style and functionality with granite countertops, soft-close cabinetry and drawers, stainless steel appliances, a tile backsplash, and a spacious pantry. The private primary suite provides a relaxing retreat with a walk-in shower, dual sinks, and quality finishes. Bathrooms feature elegant quartz countertops, and the convenient laundry/mudroom is located just off the garage entry for everyday practicality. The unfinished walk-out lower level offers excellent potential for future expansion, with space for additional bedrooms, a bathroom, a family room, and ample storage. Association amenities include access to a shared dock and lot on Lake Francis. Ideally located near public lake access with convenient access to Highway 60 and just a short 30-minute drive to Mankato. This home offers a perfect combination of comfort, convenience, and future possibilities....
Contact an agent
Home facts
- Year built:2026
- Listing ID #:7038848
- Added:46 day(s) ago
- Updated:April 24, 2026 at 12:43 PM
Rooms and interior
- Bedrooms:3
- Total bathrooms:2
- Full bathrooms:1
- Dining Description:Informal Dining Room, Kitchen/Dining Room
- Bathrooms Description:Main Floor Full Bath
- Kitchen Description:Dishwasher, Microwave, Range, Refrigerator
- Basement:Yes
- Basement Description:Unfinished, Walkout
- Living area:1,520 sq. ft.
Heating and cooling
- Cooling:Central Air
- Heating:Forced Air
- Central air:Yes
Structure and exterior
- Roof:Asphalt
- Year built:2026
- Building area:1,520 sq. ft.
- Lot area:0.38 Acres
- Levels:1 Story
Utilities
- Water:City Water - Connected
- Sewer:City Sewer - Connected
Finances and disclosures
- Price:$399,900
- Price per sq. ft.:$131.55
- Tax amount:$546 (2025)
Features and amenities
- Appliances:Microwave, Range, Refrigerator
Parking
- Parking description:Attached Garage
- Garage:Yes
- Garage spaces:3
New listings near 2 Marie Circle
- New
$299,900Active1 beds 1 baths672 sq. ft.1362 Scenic Hideaway Lane Ne, Elysian, MN 56028
MLS# 7060928Listed by: COLDWELL BANKER REALTY - New
$700,000Active2 beds 2 baths1,988 sq. ft.1642 Scenic Hideaway Lane Ne, Elysian, MN 56028
MLS# 7051818Listed by: EDINA REALTY, INC. - New
$795,000Active4 beds 3 baths3,045 sq. ft.11 Cedar Point Lane Nw, Elysian, MN 56028
MLS# 7049855Listed by: JBEAL REAL ESTATE GROUP
$40,000Active2 beds 2 baths1,280 sq. ft.14 Silver's Resort, Elysian, MN 56028
MLS# 7053137Listed by: REALTY EXECUTIVES ASSOCIATES
$2,400,000Active5 beds 3 baths17,280 sq. ft.220 Maple Avenue Sw, Elysian, MN 56028
MLS# 7046788Listed by: RE/MAX ADVANTAGE PLUS
$415,000Pending3 beds 3 baths2,670 sq. ft.101 Shoreview Drive, Elysian, MN 56028
MLS# 7025585
$25,000Active0.25 Acres-XX Jason Drive, Elysian, MN 56028
MLS# 6824135Listed by: WEICHERT, REALTORS- HEARTLAND
$849,900Active5 beds 5 baths6,800 sq. ft.24352 474th Lane, Elysian, MN 56028
MLS# 6775568Listed by: BH REALTY GROUP
$34,900Active0.18 Acresxxxxxx Lewis Lane, Elysian, MN 56028
MLS# 6303299Listed by: TRUE REAL ESTATE