45 Lakeview Avenue, Excelsior, MN 55331
Local realty services provided by:Better Homes and Gardens Real Estate Advantage One
45 Lakeview Avenue,Excelsior, MN 55331
$3,245,000
- 4 Beds
- 4 Baths
- 3,101 sq. ft.
- Single family
- Active
Listed by: michael l monson
Office: the landschute group,inc.
MLS#:7001190
Source:NSMLS
Price summary
- Price:$3,245,000
- Price per sq. ft.:$1,046.44
About this home
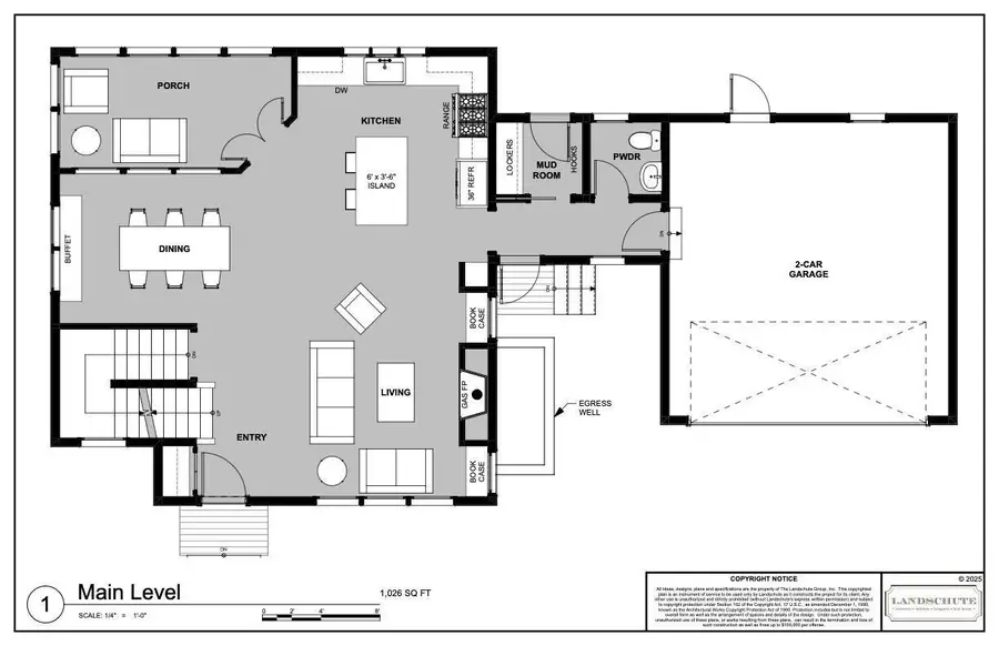
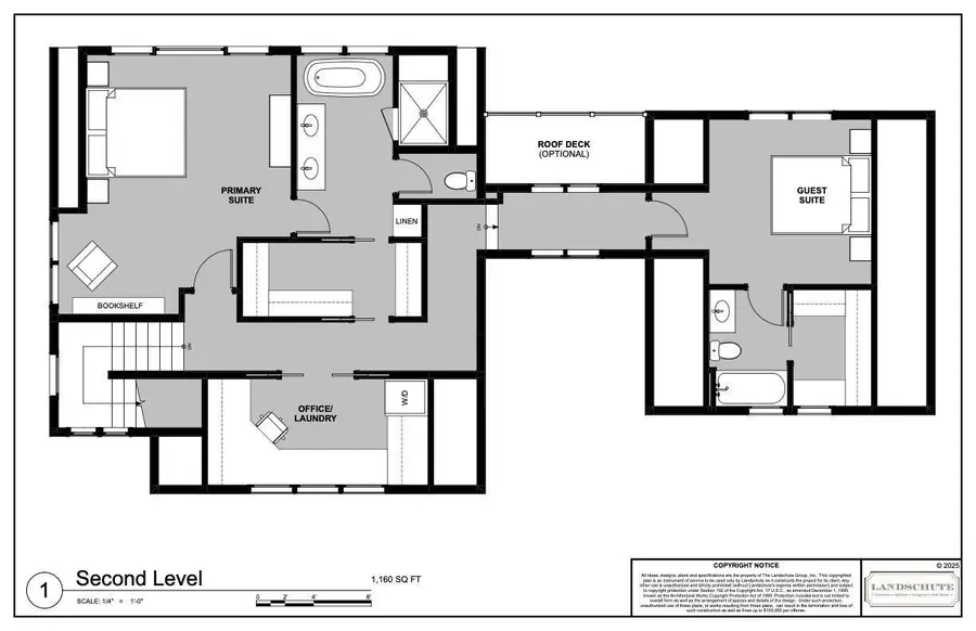
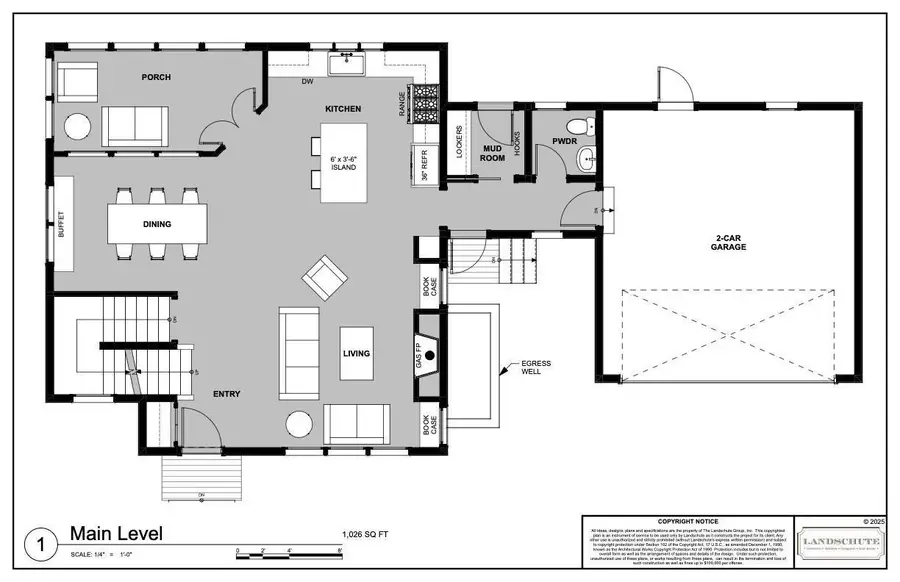
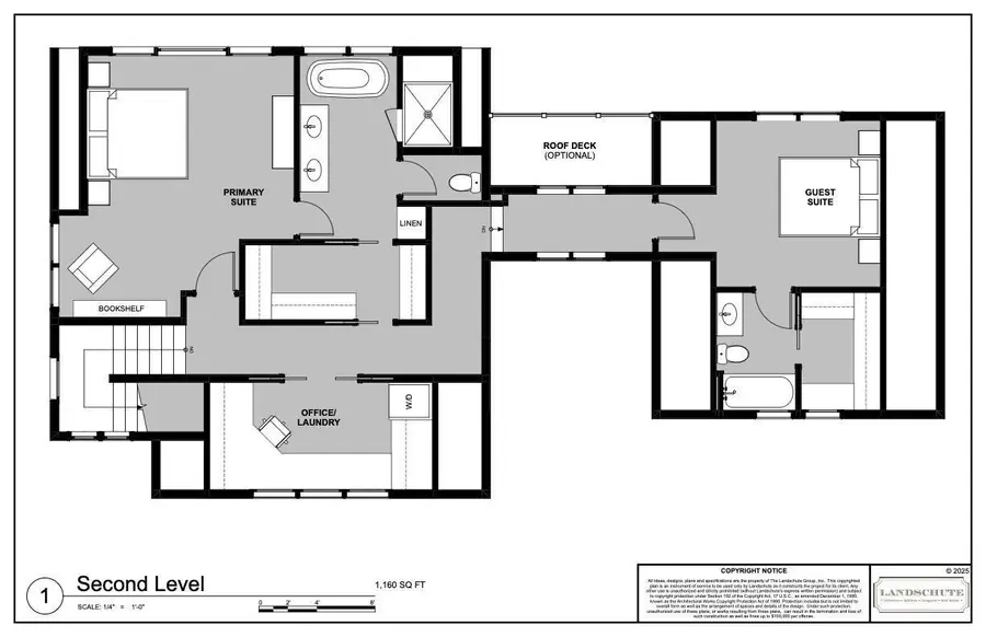
This spectacular Lake Minnetonka building site offers sweeping Northeast views of Big island, Echo Bay, and beyond. With 100 feet of sandy shoreline in historic Tonka Bay, just outside of downtown Excelsior, you'll find this is the perfect place to build your new lake home with Landschute. The floor plan will offer 4 bedrooms, 4 bathrooms, with a lakeside porch and a walk-out basement for easy lake access. The main level will be open and bright and will serve as the ideal lakefront perch. There are 2 private second floor bedroom suites along with 2 bedrooms and an entertaining area in the lower level. The plans as designed can be built without the need of any variances through the City of Tonka Bay because of the grandfathered footprint of the previous dwelling that was on the property. Award winning Minnetonka Schools, Minnewashta Elementary, and Minnetonka Middle School West.
Contact an agent
Home facts
- Year built:2026
- Listing ID #:7001190
- Added:53 day(s) ago
- Updated:February 22, 2026 at 12:58 PM
Rooms and interior
- Bedrooms:4
- Total bathrooms:4
- Full bathrooms:3
- Half bathrooms:1
- Living area:3,101 sq. ft.
Heating and cooling
- Cooling:Central Air
- Heating:Forced Air
Structure and exterior
- Roof:Asphalt
- Year built:2026
- Building area:3,101 sq. ft.
- Lot area:0.21 Acres
Utilities
- Water:City Water - In Street
- Sewer:City Sewer - In Street
Finances and disclosures
- Price:$3,245,000
- Price per sq. ft.:$1,046.44
- Tax amount:$25,850 (2025)
New listings near 45 Lakeview Avenue
- Coming Soon
$695,000Coming Soon3 beds 4 baths5645 Grant Lorenz Road, Excelsior, MN 55331
MLS# 6802524Listed by: RE/MAX RESULTS - New
$435,000Active3 beds 2 baths1,764 sq. ft.5375 Eureka Road, Excelsior, MN 55331
MLS# 7018168Listed by: DOUGLAS MILLER - New
$1,189,900Active5 beds 5 baths4,518 sq. ft.4589 Sunset Lane, Excelsior, MN 55331
MLS# 7014790Listed by: COLDWELL BANKER REALTY - Coming Soon
$425,000Coming Soon4 beds 2 baths647 Mill Street, Excelsior, MN 55331
MLS# 7024107Listed by: KELLER WILLIAMS SELECT REALTY - New
$1,199,900Active2 beds 2 baths2,050 sq. ft.25330a Park Lane, Excelsior, MN 55331
MLS# 7023485Listed by: TERRACE REALTY PARTNERS - New
$438,000Active2 beds 2 baths1,274 sq. ft.332 Mill Street, Excelsior, MN 55331
MLS# 7022774Listed by: PRANDIUM GROUP REAL ESTATE - New
$8,250,000Active6 beds 7 baths8,297 sq. ft.4750 Baycliffe Drive, Excelsior, MN 55331
MLS# 7021115Listed by: EDINA REALTY, INC. - New
$1,625,000Active3 beds 4 baths6,208 sq. ft.20468 Radisson Road, Excelsior, MN 55331
MLS# 7022762Listed by: WEST METRO GROUP - Open Sun, 11am to 1:30pmNew
$2,730,000Active4 beds 4 baths4,562 sq. ft.21150 Excelsior Boulevard, Excelsior, MN 55331
MLS# 6822210Listed by: COLDWELL BANKER REALTY - New
$250,000Active3 beds 1 baths1,284 sq. ft.15 Pleasant Avenue, Excelsior, MN 55331
MLS# 7021175Listed by: COLDWELL BANKER REALTY