5479 Fall Meadow Trail, North Branch, MN 55056
Local realty services provided by:Better Homes and Gardens Real Estate Advantage One
5479 Fall Meadow Trail,North Branch, MN 55056
$329,900
- 3 Beds
- 3 Baths
- 1,749 sq. ft.
- Single family
- Active
Listed by: karl christenson
Office: lgi realty-minnesota, llc.
MLS#:7021314
Source:ND_FMAAR
Price summary
- Price:$329,900
- Price per sq. ft.:$188.62
- Monthly HOA dues:$265
About this home
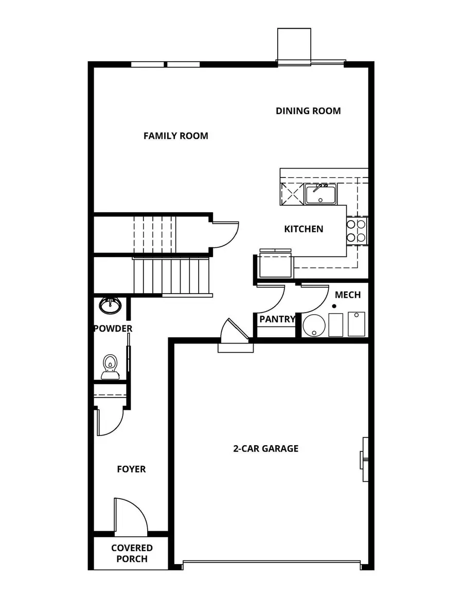
Ask us about our current incentives including builder paid closing costs! Step into your new home today and discover the exceptional Hubert Floorplan, which features a generously sized family room seamlessly connected to a delightful dining area, creating the perfect setting for both relaxation and entertaining. In the heart of the home, the kitchen awaits, complete with high-quality Whirlpool appliances and elegant quartz countertops, inviting you to make cherished memories while preparing meals. The master suite offers a luxurious retreat, boasting a spacious walk-in closet, a step in shower, a soaking tub, and a stunning dual sink vanity that enhances your daily routine. Furthermore, the home thoughtfully includes two additional bedrooms, a full bathroom, a convenient laundry room, and an upstairs loft ensuring ample space and functionality for all your needs.
Contact an agent
Home facts
- Year built:2025
- Listing ID #:7021314
- Added:112 day(s) ago
- Updated:April 24, 2026 at 07:53 PM
Rooms and interior
- Bedrooms:3
- Total bathrooms:3
- Full bathrooms:2
- Half bathrooms:1
- Rooms Total:11
- Basement:Yes
- Living area:1,749 sq. ft.
Heating and cooling
- Cooling:Central Air
- Heating:Forced Air
- Central air:Yes
Structure and exterior
- Roof:Archetectural Shingles
- Year built:2025
- Building area:1,749 sq. ft.
- Lot area:0.05 Acres
Utilities
- Water:City Water/Connected
- Sewer:City Sewer/Connected
Finances and disclosures
- Price:$329,900
- Price per sq. ft.:$188.62
- Tax amount:$130
Parking
- Garage spaces:2
New listings near 5479 Fall Meadow Trail
- Coming Soon
$489,900Coming Soon6 beds 4 baths6758 401st Street, North Branch, MN 55056
MLS# 7025254Listed by: KELLER WILLIAMS CLASSIC REALTY - Coming Soon
$349,900Coming Soon3 beds 2 baths4487 374th Court, North Branch, MN 55056
MLS# 7058024Listed by: RE/MAX ADVANTAGE PLUS - Open Sun, 12 to 1:30pmNew
$415,000Active4 beds 3 baths2,598 sq. ft.40894 Fenian Way, North Branch, MN 55056
MLS# 7060858Listed by: EDINA REALTY, INC. - New
$549,900Active4 beds 4 baths3,380 sq. ft.37324 Heritage Way, North Branch, MN 55056
MLS# 7059018Listed by: RE/MAX RESULTS - Open Fri, 4:30 to 6:30pmNew
$625,000Active3 beds 4 baths3,125 sq. ft.5069 360th Street, North Branch, MN 55056
MLS# 7055045Listed by: KELLER WILLIAMS PREMIER REALTY - New
$550,000Active5 beds 3 baths3,206 sq. ft.4745 381st Trail, North Branch, MN 55056
MLS# 7058920Listed by: PARTNERS REALTY INC. - Open Sun, 12 to 2pmNew
$899,900Active4 beds 4 baths4,546 sq. ft.39541 Eastwood Avenue, North Branch, MN 55056
MLS# 7059340Listed by: EXP REALTY - Coming Soon
$524,900Coming Soon4 beds 3 baths36463 Elk Avenue, North Branch, MN 55056
MLS# 7060877Listed by: RE/MAX SYNERGY - Open Sat, 11am to 1pmNew
$625,000Active5 beds 4 baths4,168 sq. ft.38168 Egret Way, North Branch, MN 55056
MLS# 7060698Listed by: EDINA REALTY, INC. - New
$495,000Active4 beds 2 baths2,396 sq. ft.10800 385th Street, North Branch, MN 55056
MLS# 7037448Listed by: REALTY EXECUTIVES TOP RESULTS