1024 Golfview Drive, Preston, MN 55965
Local realty services provided by:Better Homes and Gardens Real Estate Advantage One
1024 Golfview Drive,Preston, MN 55965
$484,325
- 4 Beds
- 3 Baths
- 1,927 sq. ft.
- Single family
- Active
Listed by: cathryn enerson, robin gwaltney
Office: re/max results
MLS#:7000207
Source:NSMLS
Price summary
- Price:$484,325
- Price per sq. ft.:$251.34
About this home
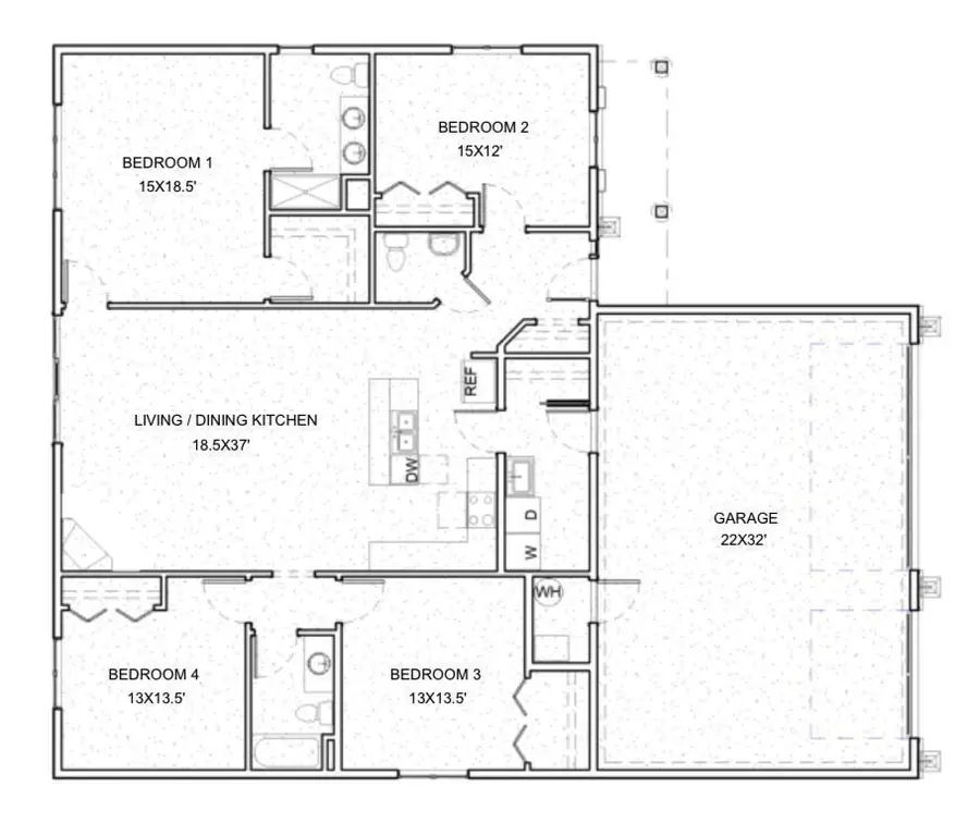
Beautiful to-be-built model by Pollock Construction, a collaboration with local builder Jonathan Wood Construction. This is the perfect opportunity to customize your dream home! The builder has the ability to make interior layout changes to this plan, as well as options in things like a backyard patio or deck. Experience rolling topography and stunning golf course views! Choose from five generously sized lots, or purchase them all—with an additional 5-acre lot available right on the course. Most lots are wooded, while others feature picturesque meadows. Enjoy added perks, including the seller offering a flexible 3-year timeline to build your dream home. Pay 50% of the lot price in the first year, with the option to pay 25% in both the second and third years—interest-free. These lots are conveniently located near the state’s newest Veterans Home in Preston, a community recognized as both telecommuter-friendly and Veteran-friendly. Property highlights include a paved street, protective covenants, and new construction housing incentives of $10,000+ offered through the City of Preston Economic Development Authority. Each lot requires a $5,000 down payment, and covenants, city housing incentives, and waived road assessment fees are available online. See supplements for details....
Contact an agent
Home facts
- Year built:2025
- Listing ID #:7000207
- Added:103 day(s) ago
- Updated:March 29, 2026 at 12:04 PM
Rooms and interior
- Bedrooms:4
- Total bathrooms:3
- Full bathrooms:2
- Half bathrooms:1
- Dining Description:Kitchen/Dining Room
- Bathrooms Description:Main Floor 1/2 Bath, Main Floor Full Bath
- Kitchen Description:Dishwasher, Range, Refrigerator, Stainless Steel Appliances
- Basement:Yes
- Living area:1,927 sq. ft.
Heating and cooling
- Cooling:Central Air
- Heating:Forced Air
- Central air:Yes
Structure and exterior
- Year built:2025
- Building area:1,927 sq. ft.
- Lot area:0.35 Acres
- Lot Features:Irregular Lot
- Levels:1 Story
Utilities
- Water:City Water - In Street
- Sewer:City Sewer - In Street
Finances and disclosures
- Price:$484,325
- Price per sq. ft.:$251.34
- Tax amount:$260 (2025)
Features and amenities
- Appliances:Range, Refrigerator, Stainless Steel Appliances
- Laundry features:Dryer
- Amenities:Air-To-Air Exchanger
Parking
- Parking description:Attached Garage
- Garage:Yes
- Garage spaces:3
New listings near 1024 Golfview Drive
- New
$524,900Active4 beds 2 baths2,887 sq. ft.15158 241st Avenue, Preston, MN 55965
MLS# 7042683Listed by: ENGEL & VOLKERS - ROCHESTER - New
$129,900Active3 beds 1 baths1,175 sq. ft.105 North Street Ne, Preston, MN 55965
MLS# 7038084Listed by: ELCOR REALTY OF ROCHESTER INC. - New
$129,900Active3 beds 1 baths1,175 sq. ft.105 North Street Ne, Preston, MN 55965
MLS# 7038084Listed by: ELCOR REALTY OF ROCHESTER INC.
$200,000Active3 beds 2 baths2,610 sq. ft.113 Valley Street Ne, Preston, MN 55965
MLS# 7029333Listed by: PROPERTY BROKERS OF MINNESOTA
$284,999Pending4 beds 3 baths3,048 sq. ft.327 Parkside Drive Se, Preston, MN 55965
MLS# 7008962Listed by: RE/MAX SELECT PROPERTIES
$62,900Active1.06 Acres315 Oak Drive Nw, Preston, MN 55965
MLS# 6808139Listed by: ALTON ERICKSON & ASSOCIATES
$52,900Active1.06 Acres401 Oak Drive Nw, Preston, MN 55965
MLS# 6808052Listed by: ALTON ERICKSON & ASSOCIATES
$80,000Active0.98 Acres936 Overlook Drive, Preston, MN 55965
MLS# 6780916Listed by: RE/MAX SELECT PROPERTIES
$279,000Active4 beds 2 baths1,856 sq. ft.1003 Sunset Road Nw, Preston, MN 55965
MLS# 6635803Listed by: RE/MAX SELECT PROPERTIES