509 Ella's Way, Liberty, MO 64068
Local realty services provided by:Better Homes and Gardens Real Estate Kansas City Homes
509 Ella's Way,Liberty, MO 64068
$463,990
- 4 Beds
- 3 Baths
- 2,042 sq. ft.
- Single family
- Active
Listed by: drh team, tony lattimer
Office: drh realty of kansas city, llc.
MLS#:2588276
Source:Bay East, CCAR, bridgeMLS
Price summary
- Price:$463,990
- Price per sq. ft.:$227.22
- Monthly HOA dues:$20.83
About this home
Welcome to Ella's Crossing, where modern design meets timeless elegance in this exceptional home crafted by D.R. Horton, “America’s Builder.” This residence greets you with a three-rail, two-panel insulated front door that enhances both curb appeal and energy efficiency. Step inside to find a beautifully appointed interior with 9-foot ceilings that exude sophistication. The chef’s kitchen is the heart of the home, featuring 36-inch painted maple cabinets, quartz countertops, and state-of-the-art Whirlpool® stainless steel appliances, all designed to make cooking a pleasure. Retreat to the spa-inspired bathrooms, where quartz-topped vanities, Moen® Chrome Faucets, and luxurious showers await. The primary bath offers a 5-foot shower with a framed glass enclosure, ensuring your daily routines are indulgent experiences. This home is designed for the future with advanced Smart Home technology, including a Honeywell® Pro Z-Wave® Thermostat, Amazon Echo, and a connected home panel, allowing you to control and monitor your home from anywhere. Energy efficiency is prioritized with LED lighting throughout, a high-efficiency gas furnace, and insulated low E vinyl windows, ensuring comfort and savings year-round. Additional features such as luxury vinyl plank flooring, a spacious garage with opener(s), and detailed wiring solutions like dual data/TV lines in the main bedroom and family room, enhance both convenience and style. D.R. Horton’s commitment to quality is evident in every aspect of this home, offering you a place where luxury, technology, and comfort come together seamlessly. Don’t miss your chance to own this extraordinary home in Ella's Crossing. Schedule your private tour today and experience the D.R. Horton difference!
Contact an agent
Home facts
- Year built:2025
- Listing ID #:2588276
- Added:100 day(s) ago
- Updated:February 26, 2026 at 09:33 PM
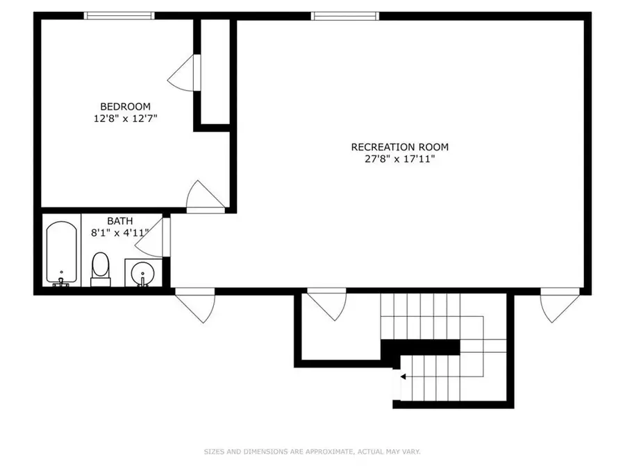
Rooms and interior
- Bedrooms:4
- Total bathrooms:3
- Full bathrooms:3
- Rooms Total:8
- Kitchen Description:Dishwasher, Disposal, Microwave
- Basement:Yes
- Basement Description:Egress Window(s), Full, Stubbed for Bath
- Living area:2,042 sq. ft.
Heating and cooling
- Cooling:Electric
- Heating:Natural Gas
Structure and exterior
- Roof:Composition
- Year built:2025
- Building area:2,042 sq. ft.
- Architectural Style:Ranch
- Construction Materials:Lap, Stone Trim, Vinyl Siding
Schools
- High school:Liberty North
- Middle school:Heritage
- Elementary school:Franklin
Utilities
- Water:City/Public
- Sewer:Public Sewer
Finances and disclosures
- Price:$463,990
- Price per sq. ft.:$227.22
Features and amenities
- Appliances:Dishwasher, Disposal, Gas Range, Microwave, Stainless Steel Appliance(s)
- Amenities:Painted Cabinets, Pantry, Smart Thermostat, Walk-In Closet(s)
- Smart home:Yes
New listings near 509 Ella's Way
- New
$285,000Active3 beds 3 baths1,940 sq. ft.429 Pershing Street, Liberty, MO 64068
MLS# 2603253Listed by: REECENICHOLS - LEES SUMMIT - New
$169,900Active2 beds 3 baths593 sq. ft.619 N Gallatin Street, Liberty, MO 64068
MLS# 2601313Listed by: SBD HOUSING SOLUTIONS LLC - Open Sat, 1 to 3pmNew
$379,000Active3 beds 3 baths2,449 sq. ft.330 Lakeside Drive, Liberty, MO 64068
MLS# 2602799Listed by: PLATINUM REALTY LLC
$250,000Pending2 beds 2 baths1,154 sq. ft.114 S Jewell Street, Liberty, MO 64068
MLS# 2603385Listed by: KC REALTORS LLC
$354,900Active3 beds 2 baths1,898 sq. ft.53 Fulkerson Circle, Liberty, MO 64068
MLS# 2598347Listed by: PLATINUM REALTY LLC
$165,000Pending2 beds 1 baths748 sq. ft.537 E Mill Street, Liberty, MO 64048
MLS# 2602497Listed by: EPIQUE REALTY- Open Sat, 11am to 12pmNew
$519,900Active4 beds 3 baths2,150 sq. ft.1969 Longview Drive, Liberty, MO 64068
MLS# 2602400Listed by: KELLER WILLIAMS KC NORTH - New
$569,900Active4 beds 4 baths2,367 sq. ft.1972 Longview Drive, Liberty, MO 64068
MLS# 2602403Listed by: KELLER WILLIAMS KC NORTH - New
$539,900Active4 beds 3 baths2,583 sq. ft.2185 Heritage Court, Liberty, MO 64068
MLS# 2602407Listed by: KELLER WILLIAMS KC NORTH
$625,000Pending3 beds 3 baths2,238 sq. ft.10423 NE 124th Street, Liberty, MO 64068
MLS# 2602349Listed by: KC LOCAL HOMES