68 Bodacious Lane, Benson, NC 27504

Local realty services provided by:Better Homes and Gardens Real Estate Paracle
68 Bodacious Lane,Benson, NC 27504
$450,000
  • 4 Beds
  • 4 Baths
  • - sq. ft.
  • Single family
  • Sold
Listed by: patrick madigan
Office: keller williams realty
MLS#:10144634
Source:RD

Sorry, we are unable to map this address


Price summary

  • Price:$450,000
  • Monthly HOA dues:$15

About this home

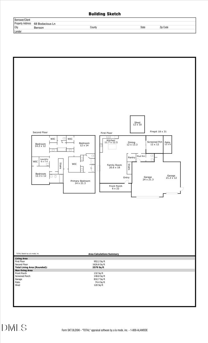
Sometimes you drive up to a home, and you just get that feeling, you know? When it was only built a few years ago, but still feels brand new. When you walk inside, and you can feel the tens of thousands of dollars of upgrades by the original owners. When the neighborhood has that fresh feeling, but without all the noise and debris of an ongoing construction site. When it was built by a local, family-owned builder, and you know corners weren't cut in the name of corporate profit. Welcome to 68 Bodacious Lane, a half-acre of peace and tranquility, ready for its next owner. This 4 bedroom, 3.5 bath offers a screened porch, a flat fenced yard with a view of the water, and tons of upgrades and premium features including: gourmet kitchen with upgraded appliances, shed, 3-car garage with epoxy flooring and finished (painted) drywall, custom window treatments (top down-bottom up), gravel fire pit area with chairs, upgraded laundry room cabinetry, walk-in pantry, and so much more. Schedule...

Contact an agent

contact an agent

Yes, I would like more information. Please use and/or share my information with a BHGRE®  affiliated agent to contact me about my real estate needs. By clicking Send message, I request to be contacted by phone or text message and consent to being contacted by automated means. I understand that my consent to receive calls or texts is not a condition of purchasing any property, goods, or services. Alternatively, I understand that I can access real estate services by email or I can contact the agent myself.

If a BHGRE®  affiliated agent is not available in the area where I need assistance, I agree to be contacted by a real estate agent affiliated with another brand owned or licensed by Anywhere Real Estate (CENTURY 21® , Coldwell Banker® , Corcoran® , ERA® , Sotheby's International Realty® ).
 I acknowledge that I have read and agree to theTerms of useandPrivacy notice

Home facts

  • Year built:2022
  • Listing ID #:10144634
  • Added:73 day(s) ago
  • Updated:April 19, 2026 at 06:40 PM

Rooms and interior

  • Bedrooms:4
  • Total bathrooms:4
  • Full bathrooms:3
  • Half bathrooms:1
  • Rooms Total:7
  • Flooring:Carpet, Tile, Wood
  • Bathrooms Description:Soaking Tub
  • Kitchen Description:Gas Cooktop, Microwave, Stainless Steel Appliance(s)

Heating and cooling

  • Cooling:Ceiling Fan(s), Central Air
  • Heating:Central, Fireplace(s)
  • Central air:Yes

Structure and exterior

  • Roof:Shingle
  • Year built:2022
  • Architectural Style:Contemporary
  • Construction Materials:Vinyl Siding
  • Exterior Features:Fenced Yard, Fire Pit, Patio, Rear Porch, Screened, Storage
  • Levels:Two

Schools

  • High school:Johnston - W Johnston
  • Middle school:Johnston - Benson
  • Elementary school:Johnston - Benson

Utilities

  • Water:Public
  • Sewer:Septic Tank

Finances and disclosures

  • Price:$450,000
  • Tax amount:$2,710

Features and amenities

  • Appliances:Gas Cooktop, Microwave, Oven, Stainless Steel Appliance(s)
  • Amenities:Ceiling Fan(s), Kitchen Island, Tray Ceiling(s)

Parking

  • Parking description:Driveway, Garage
  • Garage:Yes
  • Garage spaces:3
MLS LogoListings marked with a Doorify MLS icon are provided courtesy of the Doorify MLS, of North Carolina, Internet Data Exchange Database. Brokers make an effort to deliver accurate information, but buyers should independently verify any information on which they will rely in a transaction. The listing broker shall not be responsible for any typographical errors, misinformation, or misprints, and they shall be held totally harmless from any damages arising from reliance upon this data. This data is provided exclusively for consumers’ personal, non-commercial use. Copyright 2026 Doorify MLS of North Carolina. All rights reserved.