489 Broomsedge Court Se, Bolivia, NC 28422
Local realty services provided by:Better Homes and Gardens Real Estate Elliott Coastal Living
Listed by: seth c barbee
Office: the saltwater agency
MLS#:100555417
Source:NC_CCAR
Price summary
- Price:$697,500
- Price per sq. ft.:$232.73
About this home
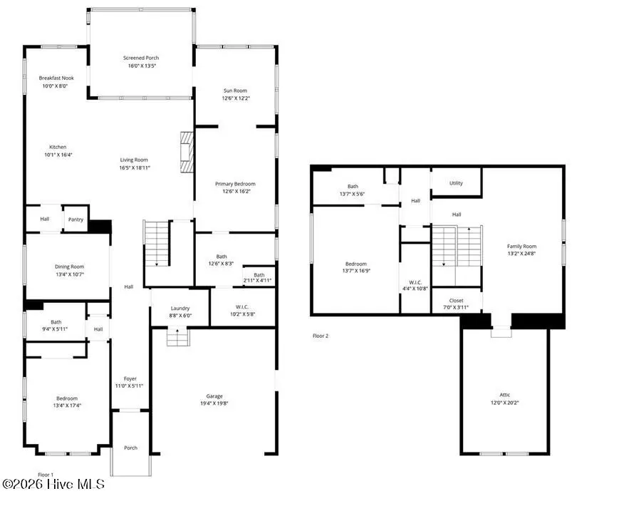
Custom trim throughout, fenced back & side yard, designer lighting, designer wall treatments, custom landscaping, bird watchers paradise, upgrades kitchen built-ins, huge walk in attic, multiple large closets. This 4 year old house checks ALL of the boxes! Located on a quiet cul-de-sac, the enhanced landscaping provides great curb appeal and welcomes you home each day. Upon entering the front door, you will find a foyer complete with custom trim. An oversized guest suite is located off the foyer. The open floorplan features a stunning upgraded kitchen complete with built-in stainless-steel appliances, a walk-in butler's pantry & ample cabinet space. The huge island is perfect for entertaining & hosting your family/friends. Take your pick of places to eat, whether it be at the barstools at the island, the breakfast nook or the formal dining room, or perhaps on the large screened porch overlooking a mature nature preserve. The huge primary suite with private sitting area is certainly one of the highlights of this floorplan. This space provides a cozy reading area or could be a nice office. The ensuite bath will remind you of a spa, there are two sinks in the vanity, the custom tile shower features a rain head faucet & a bench seat. Adjacent to the bathroom there is a massive walk-in closet with upgraded shelving. There is no carpet anywhere on the first floor. On the second floor there is a big loft & a generous sized third bedroom with a full bath. Did we mention storage? There are multiple large closets upstairs plus a HUGE walk-in attic (could be finished into another room). The list of highlights goes on & on, come see it for yourself! Residents in Winding River enjoy an outdoor pool, a state-of-the-art fitness center, tennis/pickleball courts, walking trails, a marina on the Lockwood Folly River with boat ramp & kayak launch & perhaps the best amenity of all is the ocean front beach clubhouse & pool on nearby Holden Beach. The semi private golf course offer 27 holes and great restaurant/bar....
Contact an agent
Home facts
- Year built:2022
- Listing ID #:100555417
- Added:49 day(s) ago
- Updated:April 10, 2026 at 10:16 AM
Rooms and interior
- Bedrooms:3
- Total bathrooms:3
- Full bathrooms:3
- Rooms Total:10
- Kitchen Description:Dishwasher, Kitchen Island, Pantry, Range, Refrigerator
- Bedroom Description:Master Downstairs, Walk-In Closet(s)
- Living area:2,997 sq. ft.
Heating and cooling
- Cooling:Central Air
- Heating:Electric, Heat Pump, Heating
- Central air:Yes
Structure and exterior
- Roof:Architectural Shingle
- Year built:2022
- Building area:2,997 sq. ft.
- Lot area:0.25 Acres
- Construction Materials:Fiber Cement, Wood Frame
- Exterior Features:Patio, Screened
- Foundation Description:Raised, Slab
- Levels:2 Story
Schools
- High school:South Brunswick
- Middle school:Cedar Grove
- Elementary school:Virginia Williamson
Utilities
- Water:Water Connected
- Sewer:Sewer Connected
Finances and disclosures
- Price:$697,500
- Price per sq. ft.:$232.73
Features and amenities
- Appliances:Dishwasher, Range, Refrigerator
- Amenities:Beach Access, Blinds/Shades, Boat Dock, Ceiling Fan(s), Clubhouse, Comm Garden, Community Pool, Fitness Center, Gated, Marina, Meeting Room, Party Room, Pickleball, RV/Boat Storage, Ramp, Solid Surface, Street Lights, Tennis Court(s), Trail(s), Walk-In Closet(s)
- Pool features:Community Pool
Parking
- Total parking spaces:2
- Parking description:Attached Garage, Concrete, Paved
- Garage:Yes
New listings near 489 Broomsedge Court Se
- New
$319,000Active4 beds 2 baths1,781 sq. ft.939 Pantego Boulevard Se, Bolivia, NC 28422
MLS# 100563214Listed by: ISLAND LIFE REAL ESTATE, LLC - New
$400,000Active5.1 Acres769 Midway Road Se, Bolivia, NC 28422
MLS# 100566137Listed by: BERKSHIRE HATHAWAY HOMESERVICES CAROLINA PREMIER PROPERTIES - New
$325,000Active4 beds 2 baths1,816 sq. ft.2518 Sardis Drive Se, Bolivia, NC 28422
MLS# 100565948Listed by: REAL BROKER LLC - New
$499,999Active2 beds 2 baths1,360 sq. ft.681 Forest Drive Se, Bolivia, NC 28422
MLS# 100565995Listed by: SUNSET HARBOR REALTY LLC - Open Sat, 11:30am to 1:30pmNew
$359,000Active4 beds 3 baths2,164 sq. ft.1549 St Joseph Drive Se, Bolivia, NC 28422
MLS# 100565861Listed by: HAVEN REALTY CO. - New
$315,000Active3 beds 2 baths1,656 sq. ft.1590 Lightered Knot Court Se, Bolivia, NC 28422
MLS# 100565594Listed by: COLDWELL BANKER SEA COAST ADVANTAGE - New
$200,000Active3 beds 2 baths1,272 sq. ft.2228 Harbor Ridge Drive Se, Bolivia, NC 28422
MLS# 100565410Listed by: BERKSHIRE HATHAWAY HOMESERVICES CAROLINA PREMIER PROPERTIES - New
$289,990Active3 beds 2 baths1,513 sq. ft.604 Powis Drive Ne, Bolivia, NC 28422
MLS# 100565458Listed by: NEXTHOME CAPE FEAR - Open Fri, 10am to 5pmNew
$336,990Active3 beds 2 baths1,618 sq. ft.518 Silky Oak Drive Se #Lot 262, Bolivia, NC 28422
MLS# 100565465Listed by: D.R. HORTON, INC - New
$364,990Active3 beds 3 baths2,294 sq. ft.2187 Webfoot Drive Ne, Bolivia, NC 28422
MLS# 100565433Listed by: NEXTHOME CAPE FEAR