113 Arvo Lane, Cary, NC 27513
Local realty services provided by:Better Homes and Gardens Real Estate Paracle
113 Arvo Lane,Cary, NC 27513
$415,000
- 3 Beds
- 3 Baths
- 1,550 sq. ft.
- Single family
- Active
Listed by: thomas kortus
Office: nest realty of the triangle
MLS#:10155580
Source:RD
Price summary
- Price:$415,000
- Price per sq. ft.:$267.74
- Monthly HOA dues:$11.67
About this home
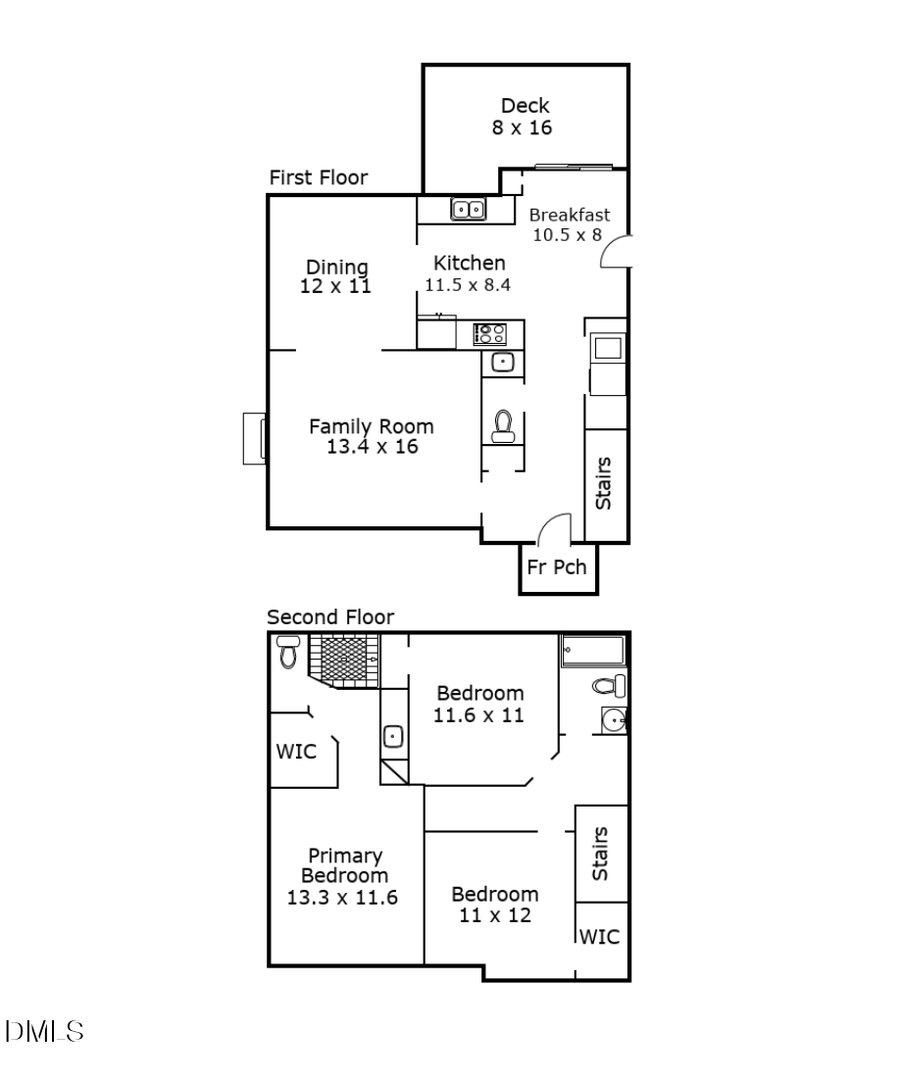
Affordable and Cary rarely appear in the same sentence--but they do at 113 Arvo Lane. This home offers a rare opportunity to step into a highly desirable location and build immediate equity with cosmetic updates. While the interior is ready for fresh paint, new flooring, and kitchen improvements, the home has been thoughtfully maintained and improved where it matters most.Recent updates include: New Roof (2023), New Deck (2024), New Doors and Sliding Glass Door (2024), HVAC (2018), Vapor Barrier in Crawlspace (2024), Updated Primary Bathroom. So instead of spending $20K+ on systems... you get to spend it on the fun stuff--like making it actually look like your house. Bring your vision. Bring your Pinterest board. Bring a paint crew. And walk straight into instant sweat equity. The layout is highly functional for everyday living, featuring a cozy living room with fireplace, a formal dining area, and an eat-in kitchen. Upstairs, you'll find three bedrooms and two full bathrooms, including a spacious primary suite with vaulted ceilings. Set on one of the largest lots in the neighborhood, the property also offers a fenced backyard and generous walk-in crawlspace with a concrete pad for great storage. The location is exceptional--just a 5-minute walk to grocery stores, restaurants, and daily conveniences, and only minutes by bike to Cary's extensive greenway system, with over 100 miles of trails connecting parks, neighborhoods, and more. Priced to reflect needed cosmetic updates, this home is a compelling opportunity to personalize a property in a prime Cary location while gaining instant sweat equity....
Contact an agent
Home facts
- Year built:1992
- Listing ID #:10155580
- Added:1 day(s) ago
- Updated:March 27, 2026 at 01:48 PM
Rooms and interior
- Bedrooms:3
- Total bathrooms:3
- Full bathrooms:2
- Half bathrooms:1
- Rooms Total:7
- Flooring:Carpet, Vinyl
- Bathrooms Description:Walk-In Shower
- Kitchen Description:Dishwasher, Electric Cooktop, Range Hood, Refrigerator
- Living area:1,550 sq. ft.
Heating and cooling
- Cooling:Ceiling Fan(s), Central Air
- Heating:Central, Fireplace(s), Forced Air
- Central air:Yes
Structure and exterior
- Roof:Shingle
- Year built:1992
- Building area:1,550 sq. ft.
- Lot area:0.14 Acres
- Architectural Style:Traditional, Transitional
- Construction Materials:Masonite
- Exterior Features:Deck, Fenced Yard
- Foundation Description:Permanent
- Levels:Two
Schools
- High school:Wake - Green Hope
- Middle school:Wake - Salem
- Elementary school:Wake - Laurel Park
Utilities
- Water:Public, Water Connected
- Sewer:Public Sewer, Sewer Connected
Finances and disclosures
- Price:$415,000
- Price per sq. ft.:$267.74
- Tax amount:$3,291
Features and amenities
- Appliances:Dishwasher, Electric Cooktop, Range Hood, Refrigerator, Water Heater
- Laundry features:Main Level
- Amenities:Ceiling Fan(s), Walk-In Closet(s), Water Heater
Parking
- Parking description:Driveway, Paved
New listings near 113 Arvo Lane
- New
$475,000Active2 beds 2 baths1,896 sq. ft.428 Sawgrass Hill Court, Cary, NC 27519
MLS# 10155712Listed by: BERKSHIRE HATHAWAY HOMESERVICE - New
$800,000Active4 beds 3 baths2,837 sq. ft.100 Elkton Green Court, Cary, NC 27519
MLS# 10155713Listed by: CHOICE RESIDENTIAL REAL ESTATE - Open Sat, 1 to 3pmNew
$474,000Active3 beds 3 baths1,619 sq. ft.106 Eagle Swoop Court, Cary, NC 27513
MLS# 10155716Listed by: KELLER WILLIAMS LEGACY - New
$799,000Active-- beds 3 baths3,250 sq. ft.807 Hesler Court, Cary, NC 27519
MLS# 10155726Listed by: VINEYARD HOUSE REALTY. LLC.. - New
$880,000Active5 beds 5 baths3,107 sq. ft.701 Mildred Oaks Court, Cary, NC 27519
MLS# 10155728Listed by: CHRISTINA VALKANOFF REALTY GROUP - Open Sun, 1 to 3pmNew
$775,000Active4 beds 3 baths3,036 sq. ft.722 Toms Creek Road, Cary, NC 27519
MLS# 10155665Listed by: TOTAL SOURCE/JUST CALL BRENDA - Open Sat, 12 to 4pmNew
$1,575,000Active5 beds 6 baths5,289 sq. ft.102 Michelangelo Way, Cary, NC 27518
MLS# 10155670Listed by: COLDWELL BANKER ADVANTAGE - New
$235,000Active2 beds 1 baths784 sq. ft.150 Carmichael Court, Cary, NC 27511
MLS# 10155674Listed by: CAPITAL TO COAST REALTY COMPANY - New
$339,000Active2 beds 3 baths1,373 sq. ft.423 Waterford Lake Drive, Cary, NC 27519
MLS# 10155643Listed by: KELLER WILLIAMS ELITE REALTY - Open Sat, 1 to 3pmNew
$749,900Active4 beds 4 baths2,737 sq. ft.213 Whitehall Way, Cary, NC 27511
MLS# 10155597Listed by: RE/MAX UNITED