715 Windy Peak Loop, Cary, NC 27519
Local realty services provided by:Better Homes and Gardens Real Estate Paracle
715 Windy Peak Loop,Cary, NC 27519
$769,999
- 4 Beds
- 4 Baths
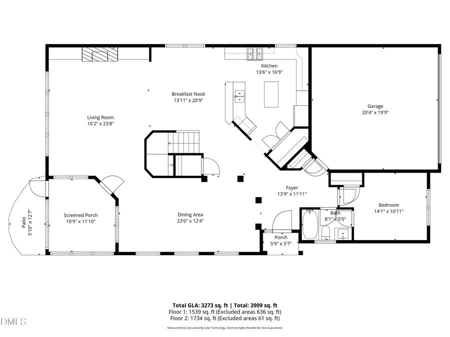
- 3,273 sq. ft.
- Single family
- Pending
Listed by: prabha shankaran, mona gala
Office: compass -- raleigh
MLS#:10146831
Source:RD
Price summary
- Price:$769,999
- Price per sq. ft.:$235.26
- Monthly HOA dues:$70
About this home
This beautifully updated east-facing 4BD/4BA home featuring 9-foot ceilings throughout and one of the largest living areas in the community. Meticulously maintained and enhanced with high-end upgrades, this move-in-ready home blends modern comfort, smart technology, and thoughtful design.
The updated kitchen shines with a 6-burner gas range, upgraded finishes, and LED recessed lighting. The main-level bedroom with a fully renovated 2024 bathroom offers flexibility for guests or multigenerational living. Smart home features include a whole-house fragrance system, Ring security, and upgraded smart lighting and controls.
Enjoy year-round outdoor living with the new EZ Breeze porch (2024), backyard pavers, extended landscape lighting, and French drains for improved drainage. Additional upgrades include a 4-zone irrigation system, a 240V EV charger in the garage, and enhanced exterior lighting.
Upstairs, the spacious primary suite features remodeled finishes and new custom closets (2024) with a built-in safety vault. Secondary bedrooms also feature custom closets, and the upgraded laundry room adds both style and convenience. The HVAC system has been regularly serviced and is in excellent condition.
From smart-home enhancements to designer upgrades, every detail has been thoughtfully selected to elevate everyday living. This home offers the perfect combination of space, luxury, and peace of mind, truly move-in ready....
Contact an agent
Home facts
- Year built:2008
- Listing ID #:10146831
- Added:53 day(s) ago
- Updated:April 11, 2026 at 07:34 AM
Rooms and interior
- Bedrooms:4
- Total bathrooms:4
- Full bathrooms:4
- Rooms Total:13
- Flooring:Carpet, Hardwood, Tile
- Bathrooms Description:Walk-In Shower, Water Closet
- Kitchen Description:Cooktop, Dishwasher, Disposal, Electric Water Heater, Gas Cooktop, Microwave, Range Hood, Refrigerator, Stainless Steel Appliance(s)
- Living area:3,273 sq. ft.
Heating and cooling
- Cooling:Ceiling Fan(s), Central Air, Zoned
- Heating:Central, Fireplace(s)
- Central air:Yes
Structure and exterior
- Roof:Shingle
- Year built:2008
- Building area:3,273 sq. ft.
- Lot area:0.1 Acres
- Architectural Style:Transitional
- Construction Materials:Brick, Engineered Wood
- Exterior Features:Covered, Fenced Yard, Lighting, Porch
- Foundation Description:Slab
- Levels:Two
Schools
- High school:Wake - Panther Creek
- Middle school:Wake - Alston Ridge
- Elementary school:Wake - Alston Ridge
Utilities
- Water:Public
- Sewer:Public Sewer
Finances and disclosures
- Price:$769,999
- Price per sq. ft.:$235.26
- Tax amount:$5,832
Features and amenities
- Appliances:Cooktop, Dishwasher, Disposal, Electric Water Heater, Gas Cooktop, Microwave, Oven, Range Hood, Refrigerator, Stainless Steel Appliance(s), Washer/Dryer
- Laundry features:Laundry Room, Upper Level, Washer/Dryer
- Amenities:Built-in Features, Ceiling Fan(s), Clubhouse, Crown Molding, Electric Water Heater, Entrance Foyer, Granite Counters, High Ceilings, Open Floorplan, Pantry, Playground, Pool, Recessed Lighting, Smart Home, Smart Light(s), Smooth Ceilings, Tray Ceiling(s), Walk-In Closet(s)
- Smart home:Yes
Parking
- Parking description:Electric Vehicle Charging Station(s), Garage Door Opener, Garage Faces Front
- Garage:Yes
- Garage spaces:2
New listings near 715 Windy Peak Loop
- New
$525,000Active3 beds 3 baths2,065 sq. ft.103 Ripley Court, Cary, NC 27513
MLS# 10159373Listed by: EXP REALTY LLC - New
$1,185,000Active5 beds 4 baths3,882 sq. ft.702 Edgemore Avenue, Cary, NC 27519
MLS# 10159347Listed by: ROBBINS AND ASSOCIATES REALTY - New
$520,000Active4 beds 4 baths2,182 sq. ft.2005 Valleystone Drive, Cary, NC 27519
MLS# 10159330Listed by: NORTHSIDE REALTY INC. - New
$1,295,000Active6 beds 5 baths4,774 sq. ft.400 White Iris Loop, Cary, NC 27519
MLS# 10159301Listed by: KELLER WILLIAMS LEGACY - New
$635,000Active4 beds 3 baths2,742 sq. ft.104 Alden Village Court, Cary, NC 27519
MLS# 10159309Listed by: CHOSEN REAL ESTATE GROUP - New
$400,000Active3 beds 2 baths1,299 sq. ft.202 Crest Road, Cary, NC 27513
MLS# 10159311Listed by: COLDWELL BANKER ADVANTAGE - New
$1,035,000Active5 beds 4 baths3,446 sq. ft.1057 Queensdale Drive, Cary, NC 27519
MLS# 10159323Listed by: BERKSHIRE HATHAWAY HOMESERVICE - New
$1,199,000Active5 beds 4 baths3,684 sq. ft.112 Ballatore Court, Cary, NC 27519
MLS# 10159229Listed by: LAROSE REALTY GROUP - Open Sun, 1 to 4pmNew
$420,000Active3 beds 3 baths1,912 sq. ft.213 Lone Star Way, Cary, NC 27519
MLS# 10159272Listed by: REDFIN CORPORATION - New
$430,000Active3 beds 1 baths948 sq. ft.206 Hunter Street, Cary, NC 27511
MLS# 10159063Listed by: RELEVATE REAL ESTATE INC.