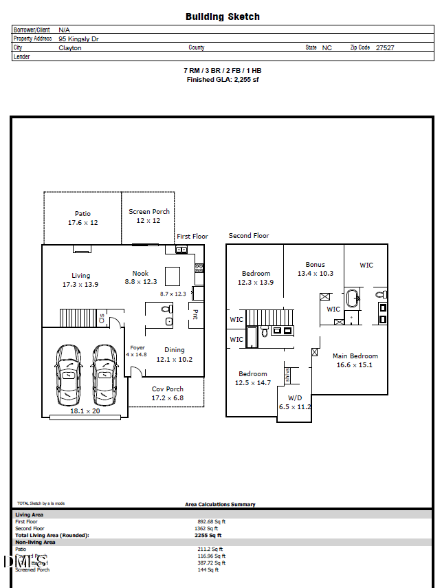
95 Kingsly Drive, Clayton, NC 27527
Local realty services provided by:Better Homes and Gardens Real Estate Paracle
Listed by: renee hillman
Office: exp realty llc.
MLS#:10143413
Source:RD
Price summary
- Price:$375,000
- Price per sq. ft.:$166.3
- Monthly HOA dues:$30
About this home
Tired of looking at ''fixer-uppers''? This move-in-ready home is the one you've been waiting for! Well-cared-for and full of natural light, this floor plan offers a functional layout designed for modern living.
A formal dining room off the foyer provides ideal flex space for a home office or study. You'll love the recently updated LVP floors that flow throughout the main level, leading you into a cozy living room anchored by a fireplace. The kitchen is designed for ease and connection, featuring stainless steel appliances, a working island, and a breakfast nook with a slider door that opens directly to the outdoors.
Upstairs, the primary suite is a quiet retreat featuring a large, practical walk-in closet. Two guest bedrooms share a hall bath, while the versatile loft offers that much-needed extra space for a media room or play area. You'll also appreciate the convenience of a second-floor laundry room.
Outdoor living is a standout with a screened-in porch and a grilling patio overlooking your level, fully fenced backyard.
This centrally located Clayton home offers exceptional access to nearby amenities. Just down the street, East Clayton Community Park features Harmony Playground, soccer fields, disc golf, walking trails, and a nearby dog park. Golf and swim enthusiasts will appreciate The Neuse Country Club, less than two miles away, while major employers like Novo Nordisk and Grifols are just a five-minute commute from your door....
Contact an agent
Home facts
- Year built:2018
- Listing ID #:10143413
- Added:49 day(s) ago
- Updated:March 19, 2026 at 07:37 AM
Rooms and interior
- Bedrooms:3
- Total bathrooms:3
- Full bathrooms:2
- Half bathrooms:1
- Rooms Total:9
- Flooring:Carpet, Vinyl
- Bathrooms Description:Bathtub/Shower Combination, Double Vanity, Separate Shower, Soaking Tub, Walk-In Shower
- Kitchen Description:Dishwasher, Gas Range, Gas Water Heater, Microwave
- Living area:2,255 sq. ft.
Heating and cooling
- Cooling:Central Air, Heat Pump
- Heating:Forced Air, Heat Pump
- Central air:Yes
Structure and exterior
- Roof:Shingle
- Year built:2018
- Building area:2,255 sq. ft.
- Lot area:0.24 Acres
- Lot Features:Back Yard, Cleared, Corner, Landscaped
- Architectural Style:Transitional
- Construction Materials:Stone, Vinyl Siding
- Exterior Features:Fenced Yard, Patio, Porch, Screened
- Foundation Description:Slab
- Levels:Two
Schools
- High school:Johnston - Clayton
- Middle school:Johnston - Riverwood
- Elementary school:Johnston - Powhatan
Utilities
- Water:Public, Water Connected
- Sewer:Public Sewer, Sewer Connected
Finances and disclosures
- Price:$375,000
- Price per sq. ft.:$166.3
- Tax amount:$3,574
Features and amenities
- Appliances:Dishwasher, Gas Range, Gas Water Heater, Microwave
- Laundry features:Laundry Room, Upper Level
- Amenities:Ceiling Fan(s), Entrance Foyer, Gas Water Heater, Granite Counters, Kitchen Island, Open Floorplan, Pantry, Walk-In Closet(s)
Parking
- Parking description:Attached, Garage, Garage Faces Front
- Garage:Yes
- Garage spaces:2
New listings near 95 Kingsly Drive
- New
$350,000Active4 beds 3 baths2,113 sq. ft.216 Crescent Drive, Clayton, NC 27520
MLS# 10153686Listed by: B STERMAN INCORPORATED - New
$305,900Active3 beds 2 baths1,659 sq. ft.112 Denby Circle, Clayton, NC 27527
MLS# 10153637Listed by: COLDWELL BANKER HPW - New
$379,900Active3 beds 3 baths1,943 sq. ft.3045 Buttonwood Lane, Clayton, NC 27520
MLS# 100561121Listed by: GERALD MACK REALTY - Coming Soon
$316,900Coming Soon3 beds 2 baths102 Ashton Court, Clayton, NC 27527
MLS# 10153622Listed by: GEORGE WHITE REALTY - Open Sat, 12 to 4pmNew
$328,990Active3 beds 2 baths1,536 sq. ft.164 Bedstone Way, Clayton, NC 27520
MLS# 10153634Listed by: STARLIGHT HOMES NC LLC - New
$458,000Active3 beds 3 baths2,599 sq. ft.55 Trenburg Place, Clayton, NC 27520
MLS# 10153611Listed by: COLDWELL BANKER ADVANTAGE-SMIT
$569,706Pending4 beds 3 baths2,781 sq. ft.276 Juju Drive #(Lot 11), Clayton, NC 27520
MLS# 10153588Listed by: EXP REALTY, LLC - C- New
$450,000Active3 beds 2 baths1,675 sq. ft.119 Kentucky Derby Drive, Clayton, NC 27520
MLS# 10153538Listed by: HTR SOUTHERN PROPERTIES - New
$185,000Active2 beds 1 baths952 sq. ft.311 Virginia Street, Clayton, NC 27520
MLS# 10153569Listed by: HOMETOWNE REALTY - New
$354,990Active4 beds 3 baths2,338 sq. ft.170 S Meyers Court, Clayton, NC 27520
MLS# 10153420Listed by: STARLIGHT HOMES NC LLC