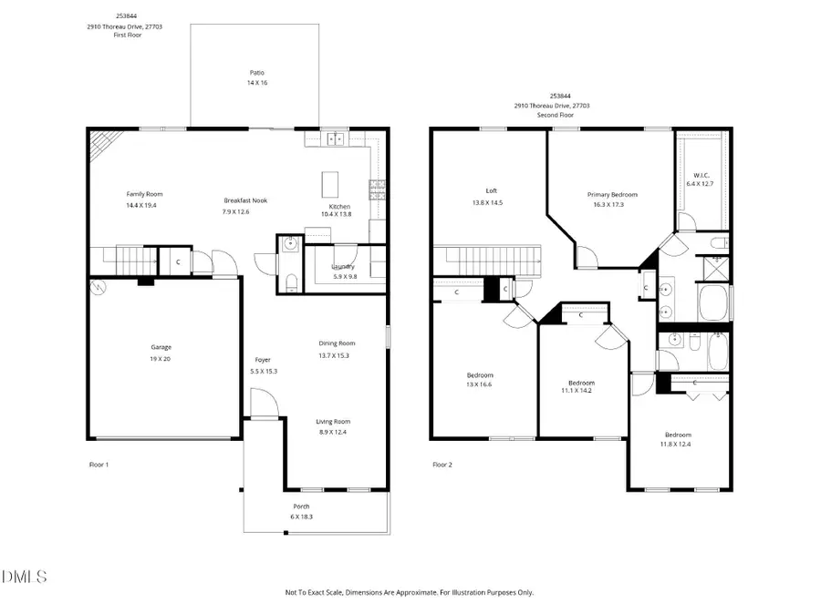
2910 Thoreau Drive, Durham, NC 27703

Local realty services provided by:Better Homes and Gardens Real Estate Paracle
2910 Thoreau Drive,Durham, NC 27703
$465,000
  • 4 Beds
  • 3 Baths
  • 2,757 sq. ft.
  • Single family
  • Pending
Listed by: jenniffer welch
Office: re/max united
MLS#:10127476
Source:RD

Price summary

  • Price:$465,000
  • Price per sq. ft.:$168.66
  • Monthly HOA dues:$25

About this home

This flexible floor plan includes 4 bedrooms and 2.5 baths, offering formal living and dining rooms, a welcoming family room with a gas fireplace, and a bright breakfast nook. The upstairs loft adds even more versatility-perfect for a home office, media room, or play space. The entire interior has been professionally painted, and the main level features attractive laminate flooring. Upstairs, you'll find brand-new carpet, along with new LVTile flooring in the kitchen and laundry room, and updated light fixtures that bring a clean, modern feel. Major improvements, including a newer roof (2024), newer upstairs HVAC (2022), and upgraded black stainless-steel appliances: a brand-new gas range, brand-new microwave, and newer French door refrigerator. Step outside to a fully fenced backyard with a beautiful wooded backdrop. This serene outdoor retreat offers both privacy and scenery, complete with an oversized patio ideal for relaxing or entertaining. A transferable home warranty adds even

Contact an agent

contact an agent

Yes, I would like more information. Please use and/or share my information with a BHGRE®  affiliated agent to contact me about my real estate needs. By clicking Send message, I request to be contacted by phone or text message and consent to being contacted by automated means. I understand that my consent to receive calls or texts is not a condition of purchasing any property, goods, or services. Alternatively, I understand that I can access real estate services by email or I can contact the agent myself.

If a BHGRE®  affiliated agent is not available in the area where I need assistance, I agree to be contacted by a real estate agent affiliated with another brand owned or licensed by Anywhere Real Estate (CENTURY 21® , Coldwell Banker® , Corcoran® , ERA® , Sotheby's International Realty® ).
 I acknowledge that I have read and agree to theTerms of useandPrivacy notice

Home facts

  • Year built:2004
  • Listing ID #:10127476
  • Added:96 day(s) ago
  • Updated:January 18, 2026 at 08:39 AM

Rooms and interior

  • Bedrooms:4
  • Total bathrooms:3
  • Full bathrooms:2
  • Half bathrooms:1
  • Living area:2,757 sq. ft.

Heating and cooling

  • Cooling:Central Air
  • Heating:Forced Air

Structure and exterior

  • Roof:Shingle
  • Year built:2004
  • Building area:2,757 sq. ft.
  • Lot area:0.17 Acres

Schools

  • High school:Durham - Southern
  • Middle school:Durham - Neal
  • Elementary school:Durham - Bethesda

Utilities

  • Water:Public, Water Connected
  • Sewer:Public Sewer, Sewer Connected

Finances and disclosures

  • Price:$465,000
  • Price per sq. ft.:$168.66
  • Tax amount:$5,022
MLS LogoListings marked with a Doorify MLS icon are provided courtesy of the Doorify MLS, of North Carolina, Internet Data Exchange Database. Brokers make an effort to deliver accurate information, but buyers should independently verify any information on which they will rely in a transaction. The listing broker shall not be responsible for any typographical errors, misinformation, or misprints, and they shall be held totally harmless from any damages arising from reliance upon this data. This data is provided exclusively for consumers’ personal, non-commercial use. Copyright 2026 Doorify MLS of North Carolina. All rights reserved.