2938 Chapel Hill Road #A, Durham, NC 27707

Local realty services provided by:Better Homes and Gardens Real Estate Paracle
2938 Chapel Hill Road #A,Durham, NC 27707
$624,900
  • 4 Beds
  • 5 Baths
  • 2,313 sq. ft.
  • Single family
  • Active
Listed by: roy ellis
Office: compass -- chapel hill - durham
MLS#:10150374
Source:RD

Price summary

  • Price:$624,900
  • Price per sq. ft.:$270.17
  • Monthly HOA dues:$200

About this home

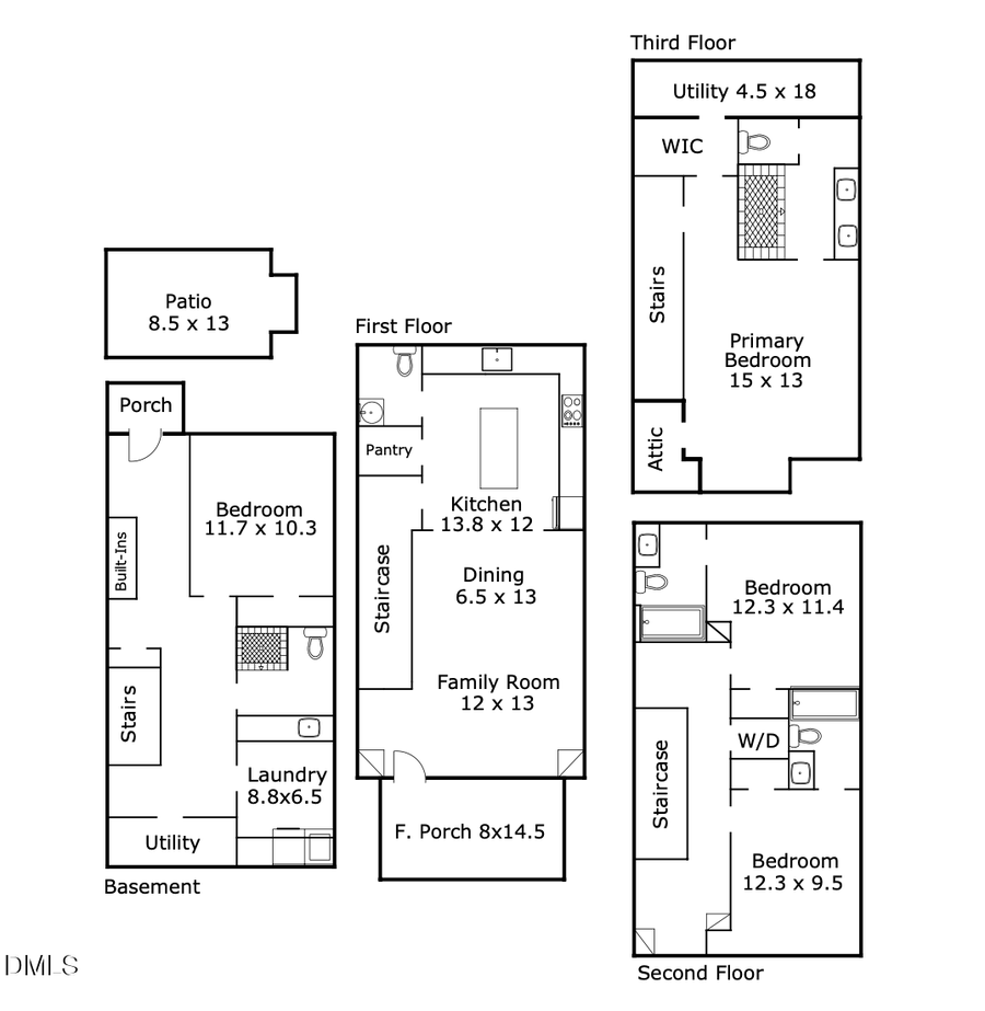
Welcome to Valley Heights, a brand new community nestled between Durham's iconic Hope Valley neighborhood and ever-vibrant Downtown. This sophisticated collection of just eight duet-style townhomes merges modern living and approachable luxury. Every home is an end unit adorned with Pella windows, an inviting front porch, and thoughtfully curated interior finishes. The open-concept layout centers around a designer kitchen, anchored by a waterfall quartz island and Bosch appliances. In an especially rare touch, all four spacious bedrooms have access to a full bath of their own. For added versatility, enjoy both upper and lower level laundry rooms. Future residents will live just minutes from Duke University, downtown Durham, plus foodie staples like Eastcut, Guglhupf, and Foster's Market. Valley Heights offers a rare opportunity to enjoy the very best of Durham's storied past while contributing to its exciting, modern future. Model home pictured. Interior selections vary by unit. Up to...

Contact an agent

contact an agent

Yes, I would like more information. Please use and/or share my information with a BHGRE®  affiliated agent to contact me about my real estate needs. By clicking Send message, I request to be contacted by phone or text message and consent to being contacted by automated means. I understand that my consent to receive calls or texts is not a condition of purchasing any property, goods, or services. Alternatively, I understand that I can access real estate services by email or I can contact the agent myself.

If a BHGRE®  affiliated agent is not available in the area where I need assistance, I agree to be contacted by a real estate agent affiliated with another brand owned or licensed by Anywhere Real Estate (CENTURY 21® , Coldwell Banker® , Corcoran® , ERA® , Sotheby's International Realty® ).
 I acknowledge that I have read and agree to theTerms of useandPrivacy notice

Home facts

  • Year built:2026
  • Listing ID #:10150374
  • Added:49 day(s) ago
  • Updated:April 23, 2026 at 03:11 PM

Rooms and interior

  • Bedrooms:4
  • Total bathrooms:5
  • Full bathrooms:4
  • Half bathrooms:1
  • Rooms Total:4
  • Flooring:Vinyl
  • Kitchen Description:Gas Range, Range Hood, Refrigerator
  • Basement Description:Apartment, Finished, Full, Heated, Walk-Out Access
  • Living area:2,313 sq. ft.

Heating and cooling

  • Cooling:Central Air, Electric
  • Heating:Natural Gas
  • Central air:Yes

Structure and exterior

  • Roof:Shingle
  • Year built:2026
  • Building area:2,313 sq. ft.
  • Lot area:0.08 Acres
  • Architectural Style:Contemporary, Cottage
  • Construction Materials:Fiber Cement
  • Exterior Features:Fenced Yard
  • Foundation Description:Slab
  • Levels:Three Or More

Schools

  • High school:Durham - Jordan
  • Middle school:Durham - Githens
  • Elementary school:Durham - Hope Valley

Utilities

  • Water:Public, Water Connected
  • Sewer:Public Sewer, Sewer Connected

Finances and disclosures

  • Price:$624,900
  • Price per sq. ft.:$270.17

Features and amenities

  • Appliances:Gas Range, Oven, Range Hood, Refrigerator
  • Laundry features:Laundry Room, Lower Level, Multiple Locations, Upper Level
  • Amenities:Apartment/Suite

Parking

  • Parking description:Assigned
MLS LogoListings marked with a Doorify MLS icon are provided courtesy of the Doorify MLS, of North Carolina, Internet Data Exchange Database. Brokers make an effort to deliver accurate information, but buyers should independently verify any information on which they will rely in a transaction. The listing broker shall not be responsible for any typographical errors, misinformation, or misprints, and they shall be held totally harmless from any damages arising from reliance upon this data. This data is provided exclusively for consumers’ personal, non-commercial use. Copyright 2026 Doorify MLS of North Carolina. All rights reserved.