3433 Dover Road, Durham, NC 27707

Local realty services provided by:Better Homes and Gardens Real Estate Paracle
3433 Dover Road,Durham, NC 27707
$1,350,000
  • 4 Beds
  • 4 Baths
  • - sq. ft.
  • Single family
  • Sold
Listed by: sam poole
Office: nest realty of the triangle
MLS#:10150926
Source:RD

Sorry, we are unable to map this address


Price summary

  • Price:$1,350,000

About this home

Tired of quiet luxury? Try honest beauty, a bit of tasteful pizzaz, and a lot of charm. 3433 Dover has it all! This timeless classic in Old Hope Valley was extensively renovated with the highest quality materials to gently bring her up to date. At the same time, the old girl still feels decidedly herself, winsome as ever! A perfect modern floorplan offers room to gather and room to do your own thing, all bathed in abundant natural light. 4 beds, 3.5 baths, stunning floors, high end appliances, a dreamy laundry room, and 2 screen porches await! All this on an exceptional lot with a killer backyard, artfully landscaped and ready to enjoy.

Contact an agent

contact an agent

Yes, I would like more information. Please use and/or share my information with a BHGRE®  affiliated agent to contact me about my real estate needs. By clicking Send message, I request to be contacted by phone or text message and consent to being contacted by automated means. I understand that my consent to receive calls or texts is not a condition of purchasing any property, goods, or services. Alternatively, I understand that I can access real estate services by email or I can contact the agent myself.

If a BHGRE®  affiliated agent is not available in the area where I need assistance, I agree to be contacted by a real estate agent affiliated with another brand owned or licensed by Anywhere Real Estate (CENTURY 21® , Coldwell Banker® , Corcoran® , ERA® , Sotheby's International Realty® ).
 I acknowledge that I have read and agree to theTerms of useandPrivacy notice

Home facts

  • Year built:1920
  • Listing ID #:10150926
  • Added:47 day(s) ago
  • Updated:April 23, 2026 at 06:51 AM

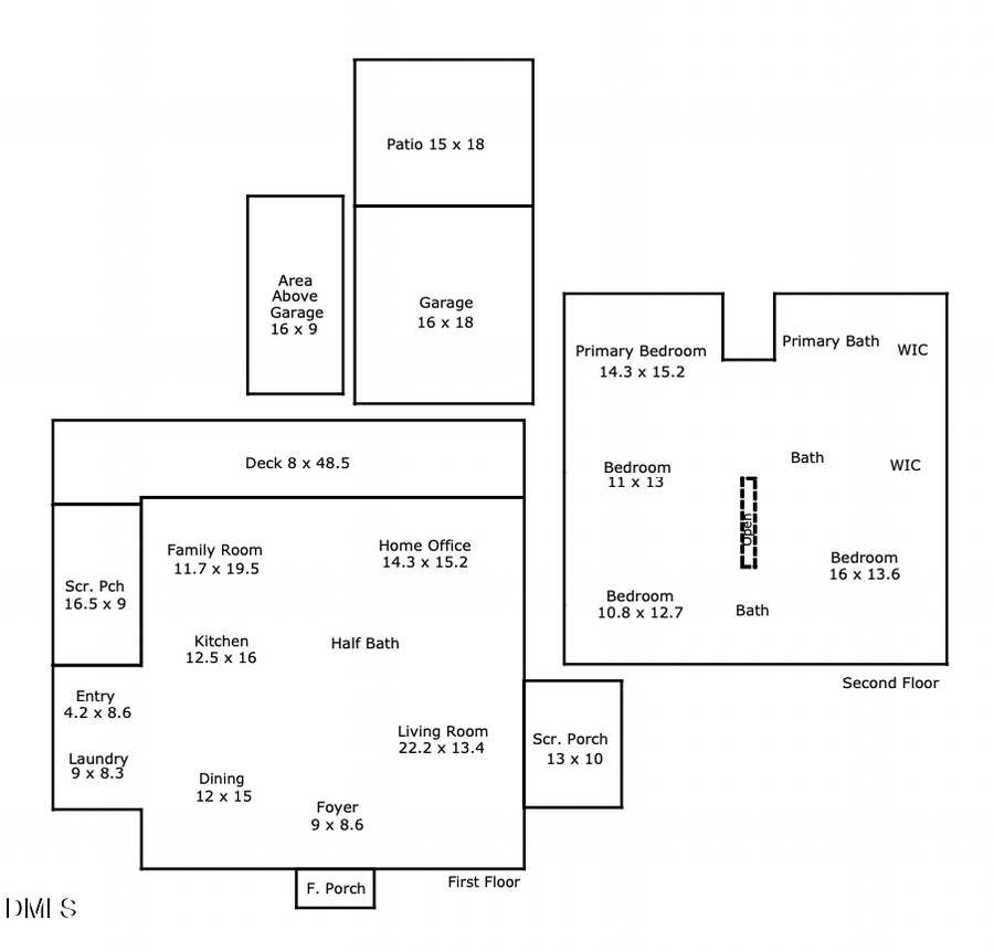
Rooms and interior

  • Bedrooms:4
  • Total bathrooms:4
  • Full bathrooms:3
  • Half bathrooms:1
  • Rooms Total:11
  • Flooring:Hardwood, Tile
  • Dining Description:Eat-in Kitchen
  • Bathrooms Description:Bathtub/Shower Combination, Double Vanity, Separate Shower, Soaking Tub
  • Kitchen Description:Bar Fridge, Gas Range
  • Basement Description:Interior Entry, Unfinished

Heating and cooling

  • Cooling:Central Air
  • Heating:Forced Air
  • Central air:Yes

Structure and exterior

  • Roof:Shingle
  • Year built:1920
  • Lot Features:Landscaped
  • Architectural Style:Colonial, National Historic Designation, Traditional
  • Construction Materials:Wood Siding
  • Exterior Features:Covered, Deck, Fenced Yard, Front Porch, Playground, Porch, Rain Gutters, Screened, Side Porch
  • Foundation Description:Combination
  • Levels:Two

Schools

  • High school:Durham - Jordan
  • Middle school:Durham - Githens
  • Elementary school:Durham - Murray Massenburg

Utilities

  • Water:Public
  • Sewer:Public Sewer

Finances and disclosures

  • Price:$1,350,000
  • Tax amount:$8,135

Features and amenities

  • Appliances:Bar Fridge, Gas Range
  • Laundry features:Laundry Room, Lower Level
  • Amenities:Bar, Bookcases, Built-in Features, Crown Molding, Entrance Foyer, Keeping Room, Kitchen Island, Recessed Lighting, Smooth Ceilings, Walk-In Closet(s), Wet Bar

Parking

  • Parking description:Circular Driveway, Detached, Driveway
  • Garage:Yes
  • Garage spaces:1
MLS LogoListings marked with a Doorify MLS icon are provided courtesy of the Doorify MLS, of North Carolina, Internet Data Exchange Database. Brokers make an effort to deliver accurate information, but buyers should independently verify any information on which they will rely in a transaction. The listing broker shall not be responsible for any typographical errors, misinformation, or misprints, and they shall be held totally harmless from any damages arising from reliance upon this data. This data is provided exclusively for consumers’ personal, non-commercial use. Copyright 2026 Doorify MLS of North Carolina. All rights reserved.