6591 River Road, Fuquay Varina, NC 27526
Local realty services provided by:Better Homes and Gardens Real Estate Paracle
6591 River Road,Fuquay Varina, NC 27526
$789,000
- 4 Beds
- 3 Baths
- 2,747 sq. ft.
- Single family
- Active
Listed by:rebekah edens
Office:re/max signature realty
MLS#:10126118
Source:RD
Price summary
- Price:$789,000
- Price per sq. ft.:$287.22
About this home
Nestled on almost nine peaceful acres, this custom log cabin offers rustic charm and modern comfort. in a beautiful location. Set far back from the road for privacy, the home overlooks a beautiful pond and features both a storage barn and a barn with stalls—ideal for horses, hobbies, or extra storage.
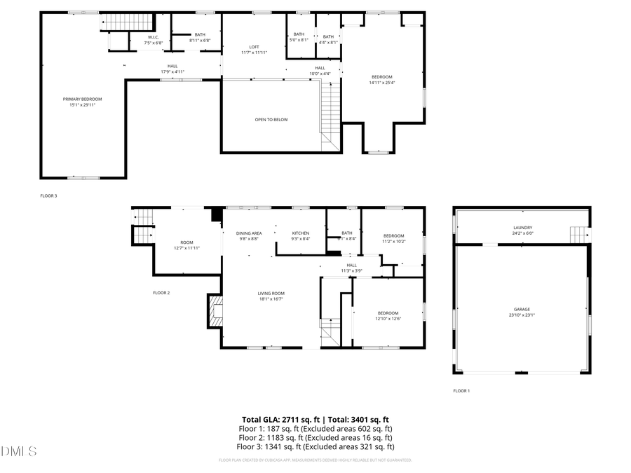
Inside, you'll find 4 bedrooms, 3 full baths, and a spacious bonus room, offering plenty of flexibility for your lifestyle. The open living area showcases the warmth of natural wood and the inviting character you'd expect in a true log home. Step outside and enjoy serene country views from your covered porch or explore the acreage around you.
With a two-car garage, ample storage, and room to roam, this home offers a highly sought out combination of privacy and convenience—just minutes from shopping, dining, and everyday essentials.
Whether you dream of a mini-farm, a private retreat, or simply a place where life moves a little slower, this property is ready to welcome you home.
Contact an agent
Home facts
- Year built:1992
- Listing ID #:10126118
- Added:4 day(s) ago
- Updated:October 11, 2025 at 08:54 PM
Rooms and interior
- Bedrooms:4
- Total bathrooms:3
- Full bathrooms:3
- Living area:2,747 sq. ft.
Heating and cooling
- Cooling:Central Air, Electric
- Heating:Heat Pump, Propane
Structure and exterior
- Roof:Shingle
- Year built:1992
- Building area:2,747 sq. ft.
- Lot area:8.87 Acres
Schools
- High school:Harnett - Harnett Central
- Middle school:Harnett - Harnett Central
- Elementary school:Harnett - Northwest Harnett
Utilities
- Water:Public
- Sewer:Septic Tank
Finances and disclosures
- Price:$789,000
- Price per sq. ft.:$287.22
- Tax amount:$2,546
New listings near 6591 River Road
- New$418,645Active3 beds 3 baths2,164 sq. ft.
2401 Adrift Road, Fuquay Varina, NC 27526
MLS# 10127224Listed by: BAKER RESIDENTIAL - Coming Soon$589,000Coming Soon4 beds 3 baths
2425 Glade Mill Court, Fuquay Varina, NC 27526
MLS# 10127216Listed by: CENTURY 21 SOUTHERN LIFESTYLES - Open Sun, 12 to 2pmNew$690,000Active5 beds 4 baths2,709 sq. ft.
511 Raleigh Street, Fuquay Varina, NC 27526
MLS# 10127190Listed by: CHOICE RESIDENTIAL REAL ESTATE - New$530,000Active4 beds 3 baths2,592 sq. ft.
290 Marley Way, Fuquay Varina, NC 27526
MLS# 10127057Listed by: HTR SOUTHERN PROPERTIES - New$295,000Active3 beds 2 baths1,221 sq. ft.
104 Lawrence Street, Fuquay Varina, NC 27526
MLS# LP751557Listed by: FREEDOM CHOICE REALTY - New$525,000Active4 beds 3 baths2,684 sq. ft.
1113 Matisse Drive, Fuquay Varina, NC 27526
MLS# 10127038Listed by: COLDWELL BANKER ADVANTAGE - Open Sun, 2 to 4pmNew$489,000Active3 beds 3 baths2,437 sq. ft.
1017 Travern Drive, Raleigh, NC 27603
MLS# 10126982Listed by: CROSS TOWN REALTY, LLC - New$394,240Active4 beds 3 baths2,824 sq. ft.
286 Hanging Elm Lane, Fuquay Varina, NC 27526
MLS# 10126924Listed by: D.R. HORTON, INC. - New$350,000Active3 beds 2 baths1,434 sq. ft.
1312 Sippihaw Drive, Fuquay Varina, NC 27526
MLS# 10126865Listed by: COMPASS -- CARY - Open Sat, 11am to 2pmNew$630,000Active4 beds 3 baths2,615 sq. ft.
139 Stone Nut Trail, Fuquay Varina, NC 27526
MLS# 10126871Listed by: KELLER WILLIAMS LEGACY