119 Bayleigh Court, Garner, NC 27529
Local realty services provided by:Better Homes and Gardens Real Estate Paracle
119 Bayleigh Court,Garner, NC 27529
$279,000
- 3 Beds
- 3 Baths
- 1,505 sq. ft.
- Townhouse
- Active
Listed by: jacie dykes
Office: choice residential real estate
MLS#:10158468
Source:RD
Price summary
- Price:$279,000
- Price per sq. ft.:$185.38
- Monthly HOA dues:$213
About this home
Only .5 miles from the Garner Swim and Recreation Club, enjoy a 1 year complimentary family membership with an accepted offer this summer. Summers just got a whole lot easier!!
Welcome to this charming and well-maintained townhome in the heart of Garner; offering both comfort and convenience in an unbeatable location. Just minutes from Downtown Garner, White Oak Shopping Center, Southeast Regional Library, and only a short drive to Downtown Raleigh, you'll love how accessible everything is while still enjoying a peaceful setting.
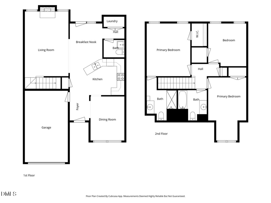
This cozy 3-bedroom, 2.5-bath, 1 car garage home backs up to a private space, creating a quiet retreat. Inside, you'll find thoughtful updates throughout, including fresh carpet, new light fixtures, and updated ceiling fans. The kitchen features a newer stainless steel oven and microwave, making it both functional and stylish for everyday living.
The formal dining room adds a touch of character with beautiful wallpaper and classic crown and chair rail moldings; perfect for hosting or creating a standout space. The spacious family room is warm and inviting, complete with a gas log fireplace for cozy nights in.
Major systems have already been taken care of, including HVAC (2021), water heater (2021), and a brand new roof (2024), giving you peace of mind for years to come. For anyone working remotely or gaming seriously, AT&T Fiber is available and ready to keep up!
If you're looking for low-maintenance living with style, updates, and a prime location, this one checks all the boxes!...
Contact an agent
Home facts
- Year built:2002
- Listing ID #:10158468
- Added:45 day(s) ago
- Updated:May 24, 2026 at 03:01 PM
Rooms and interior
- Bedrooms:3
- Total bathrooms:3
- Full bathrooms:2
- Half bathrooms:1
- Rooms Total:7
- Flooring:Carpet, Ceramic Tile, Hardwood
- Living area:1,505 sq. ft.
Heating and cooling
- Cooling:Central Air
- Heating:Natural Gas
- Central air:Yes
Structure and exterior
- Roof:Shingle
- Year built:2002
- Building area:1,505 sq. ft.
- Lot area:0.02 Acres
- Architectural Style:Traditional
- Construction Materials:Brick, Vinyl Siding
- Foundation Description:Slab
- Levels:Two
Schools
- High school:Wake - Garner
- Middle school:Wake - North Garner
- Elementary school:Wake - Vandora Springs
Utilities
- Water:Public
- Sewer:Public Sewer
Finances and disclosures
- Price:$279,000
- Price per sq. ft.:$185.38
- Tax amount:$2,938
Parking
- Garage:Yes
- Garage spaces:1
New listings near 119 Bayleigh Court
- New
$486,110Active3 beds 2 baths1,877 sq. ft.689 Fosterton Cottage Way, Raleigh, NC 27603
MLS# 10169452Listed by: PULTE HOME COMPANY LLC - New
$486,840Active3 beds 2 baths1,877 sq. ft.673 Fosterton Cottage Way, Raleigh, NC 27603
MLS# 10169457Listed by: PULTE HOME COMPANY LLC - New
$495,500Active3 beds 3 baths2,597 sq. ft.125 Wolf Den Drive, Garner, NC 27529
MLS# 10169418Listed by: NAVIGATE REALTY - New
$346,862Active3 beds 3 baths1,839 sq. ft.2930 Spring Manor Way, Garner, NC 27529
MLS# 10169347Listed by: MATTAMY HOMES LLC - New
$368,420Active3 beds 3 baths1,800 sq. ft.2934 Spring Manor Way, Garner, NC 27529
MLS# 10169338Listed by: MATTAMY HOMES LLC - New
$370,091Active3 beds 3 baths1,800 sq. ft.2926 Spring Manor Way, Garner, NC 27529
MLS# 10169340Listed by: MATTAMY HOMES LLC - New
$349,032Active3 beds 3 baths1,851 sq. ft.2932 Spring Manor Way, Garner, NC 27529
MLS# 10169342Listed by: MATTAMY HOMES LLC - New
$346,765Active3 beds 3 baths1,851 sq. ft.2928 Spring Manor Way, Garner, NC 27529
MLS# 10169343Listed by: MATTAMY HOMES LLC - New
$225,000Active2.88 Acres2601 New Bethel Church Road, Garner, NC 27529
MLS# 10169326Listed by: EXP REALTY, LLC - C - New
$175,000Active3.18 Acres2605 New Bethel Church Road, Garner, NC 27529
MLS# 10169327Listed by: EXP REALTY, LLC - C