2428 Cottage Place, Greensboro, NC 27455
Local realty services provided by:Better Homes and Gardens Real Estate Paracle
2428 Cottage Place,Greensboro, NC 27455
$279,900
- 3 Beds
- 4 Baths
- - sq. ft.
- Single family
- Pending
Listed by:brittany cecil
Office:berkshire hathaway homeservices yost & little realty
MLS#:1195223
Source:NC_TRIAD
Price summary
- Price:$279,900
- Monthly HOA dues:$205
About this home
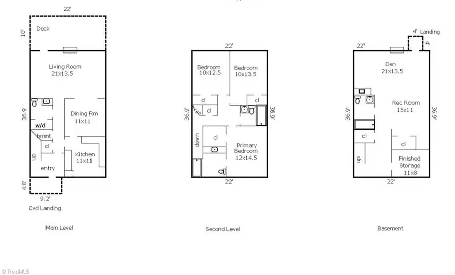
This is One to see for yourself. Beautifully Renovated Woodridge Townhome w/ impeccable attention to detail at every turn! Totally remodeled Chef's Kitchen ftrs quartz counters, updated cabinets, ss appls, tile backsplash & undermount lighting. Spacious dining rm flows into large living rm showcasing fireplace & built ins. Fresh nuetral color palette thru-out, new LVP flooring, updated lighting thru out, smooth ceilings, all new hardware & new flooring in bthrms. Beautiful deck backs to wooded area for extra peace & privacy. Spacious primary en suite retreat up. FULLY FINISHED walk out basement w/ endless possibilities. Complete w/ kitchenette area, full bath, private entrance & abundant storage...this space is ready to accomodate a multitude of needs. Excellent opportunity for in law suite, game rm, home gym, guest quarters or more! NEW HVAC & Water Htr 2022. Neighborhood amenities incl pool, clubhouse & tennis court. Everything has been done for you in this Woodridge GEM!
Contact an agent
Home facts
- Year built:1981
- Listing ID #:1195223
- Added:47 day(s) ago
- Updated:October 15, 2025 at 10:19 AM
Rooms and interior
- Bedrooms:3
- Total bathrooms:4
- Full bathrooms:3
- Half bathrooms:1
Heating and cooling
- Cooling:Ceiling Fan(s), Central Air
- Heating:Electric, Heat Pump
Structure and exterior
- Year built:1981
Schools
- High school:Page
- Middle school:Mendenhall
- Elementary school:Joyner
Utilities
- Water:Public
- Sewer:Public Sewer
Finances and disclosures
- Price:$279,900
- Tax amount:$2,570
New listings near 2428 Cottage Place
- Coming Soon
$839,900Coming Soon4 beds 3 baths4228 Starmount Drive, Greensboro, NC 27410
MLS# 1200326Listed by: REAL BROKER LLC - New
$719,000Active4 beds 2 baths401 N Mendenhall Street, Greensboro, NC 27401
MLS# 1200373Listed by: SELECT PREMIUM PROPERTIES, INC. - New
$150,000Active3 beds 1 baths1512 Hooks Street, Greensboro, NC 27401
MLS# 1200409Listed by: EQUITY COMMERICAL PROPERTIES - New
$650,000Active3 beds 3 baths4604 Starmount Drive, Greensboro, NC 27410
MLS# 1200306Listed by: GATE CITY REAL ESTATE - Coming Soon
$435,000Coming Soon3 beds 3 baths4507 Trailwood Drive, Greensboro, NC 27407
MLS# 1200381Listed by: HOMZI - New
$234,900Active2 beds 3 baths2546 Cottage Place, Greensboro, NC 27455
MLS# 1200137Listed by: TRI COUNTY REAL ESTATE - New
$225,000Active-- Acres1505 Mimosa Drive, Greensboro, NC 27403
MLS# 1200342Listed by: BERKSHIRE HATHAWAY HOMESERVICES YOST & LITTLE REALTY - New
$265,000Active3 beds 2 baths6 Fountain View Circle #C, Greensboro, NC 27405
MLS# 1200171Listed by: CAROLINA HOMES FOR SALE - New
$1,050,000Active4 beds 5 baths5312 Graycliff Drive, Greensboro, NC 27406
MLS# 1199958Listed by: HOWARD HANNA ALLEN TATE - GREENSBORO - New
$675,000Active5 beds 4 baths5815 Wildrose Drive, Greensboro, NC 27410
MLS# 1200298Listed by: BERKSHIRE HATHAWAY HOMESERVICES YOST & LITTLE REALTY