154 Thomas Trail, Lillington, NC 27546
Local realty services provided by:Better Homes and Gardens Real Estate Paracle
154 Thomas Trail,Lillington, NC 27546
$284,895
- 3 Beds
- 2 Baths
- 1,383 sq. ft.
- Single family
- Active
Listed by: tiana thompson
Office: fonville morisey & barefoot
MLS#:10144913
Source:RD
Price summary
- Price:$284,895
- Price per sq. ft.:$206
- Monthly HOA dues:$55
About this home
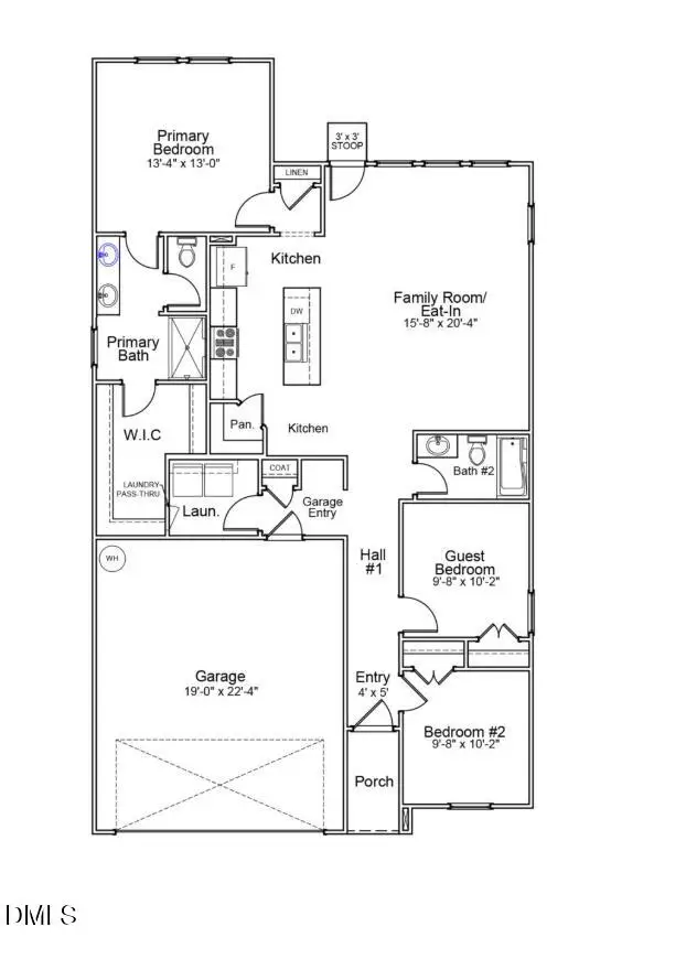
Presale Opportunity - Build Your Dream Ranch Home on This Homesite
This is a presale opportunity offering the chance to build this thoughtfully designed single-story ranch floorplan—or choose any available floorplan that fits this specific homesite, allowing you to personalize your home to match your lifestyle and needs.
The featured ranch layout offers open-concept living with a spacious family room and eat-in kitchen, complete with a large center island, ample storage, and seamless flow for everyday living and entertaining. A private primary suite with walk-in closet and en-suite bath is thoughtfully separated from secondary bedrooms, creating a comfortable and functional layout. Additional highlights include a pass-through laundry room, covered front porch, and a two-car garage.
Located on a desirable homesite that backs up to beautiful treelines and a pond, this opportunity provides flexibility in both home design and finishes, making it ideal for buyers who want to create a home that truly reflects their vision.
Pricing shown is based on the builder's starting price and is subject to change based on selected floorplan, structural options, lot premiums, and buyer-selected upgrades.
✨ Build new, build your way—this presale opportunity offers customization, comfort, and long-term value. Visit www.mungo.com for more information on available floorplans....
Contact an agent
Home facts
- Year built:2026
- Listing ID #:10144913
- Added:50 day(s) ago
- Updated:March 28, 2026 at 09:56 PM
Rooms and interior
- Bedrooms:3
- Total bathrooms:2
- Full bathrooms:2
- Rooms Total:4
- Flooring:Carpet, Laminate, Vinyl
- Kitchen Description:ENERGY STAR Qualified Appliances
- Living area:1,383 sq. ft.
Heating and cooling
- Cooling:Electric
- Heating:Electric
Structure and exterior
- Roof:Shingle
- Year built:2026
- Building area:1,383 sq. ft.
- Lot area:0.55 Acres
- Architectural Style:Ranch, Traditional
- Construction Materials:Concrete, Vinyl Siding
- Exterior Features:Awning(s), Patio, Porch, Smart Camera(s)/Recording
- Foundation Description:Slab
- Levels:One
Schools
- High school:Harnett - West Harnett
- Middle school:Harnett - West Harnett
- Elementary school:Harnett - Shawtown Lillington
Utilities
- Water:Public, Water Connected
- Sewer:Septic Available, Septic Tank
Finances and disclosures
- Price:$284,895
- Price per sq. ft.:$206
Features and amenities
- Appliances:ENERGY STAR Qualified Appliances
Parking
- Garage:Yes
- Garage spaces:2
New listings near 154 Thomas Trail
$386,025Pending3 beds 3 baths2,524 sq. ft.78 Tenure Lane, Lillington, NC 27546
MLS# 10156135Listed by: DAVIDSON HOMES REALTY, LLC- New
$509,700Active4 beds 3 baths3,011 sq. ft.129 Bluestone Drive, Lillington, NC 27546
MLS# 10156110Listed by: NEW HOME INC LLC - New
$313,807Active3 beds 3 baths2,412 sq. ft.56 Cypress Moss Court, Lillington, NC 27546
MLS# 10156129Listed by: MATTAMY HOMES LLC - New
$367,000Active3 beds 3 baths2,387 sq. ft.71 Fellow Drive, Lillington, NC 27546
MLS# 10155878Listed by: DAVIDSON HOMES REALTY, LLC
$354,400Pending6 beds 3 baths3,010 sq. ft.128 Carrie Drive, Lillington, NC 27546
MLS# 10155831Listed by: FONVILLE MORISEY & BAREFOOT- New
$364,706Active4 beds 3 baths2,240 sq. ft.Address Withheld By Seller, Lillington, NC 27546
MLS# LP759686Listed by: EXP REALTY OF TRIANGLE NC
$368,990Pending5 beds 3 baths2,804 sq. ft.156 Lone Star Drive, Lillington, NC 27546
MLS# 10155789Listed by: D.R. HORTON, INC.- New
$359,706Active4 beds 3 baths2,225 sq. ft.277 Black Duck Lane #Lot 95, Lillington, NC 27546
MLS# 10155734Listed by: EXP REALTY, LLC - C - New
$257,500Active3 beds 2 baths1,409 sq. ft.96 Baldwin Street, Lillington, NC 27546
MLS# 10155553Listed by: DAVIDSON HOMES REALTY, LLC - Open Sun, 1 to 3pmNew
$310,000Active3 beds 2 baths1,803 sq. ft.705 Colonial Hills Drive, Lillington, NC 27546
MLS# 10155224Listed by: COLDWELL BANKER ADVANTAGE