79 Leslie Court, Middlesex, NC 27557
Local realty services provided by:Better Homes and Gardens Real Estate Paracle
79 Leslie Court,Middlesex, NC 27557
$513,300
- 4 Beds
- 4 Baths
- 3,040 sq. ft.
- Single family
- Active
Listed by: charlotte cox, aj tsakanikas
Office: adams homes realty, inc
MLS#:10125652
Source:RD
Price summary
- Price:$513,300
- Price per sq. ft.:$168.85
- Monthly HOA dues:$30
About this home
END OF SUMMER COMPLETION. 1K DEPOSIT.
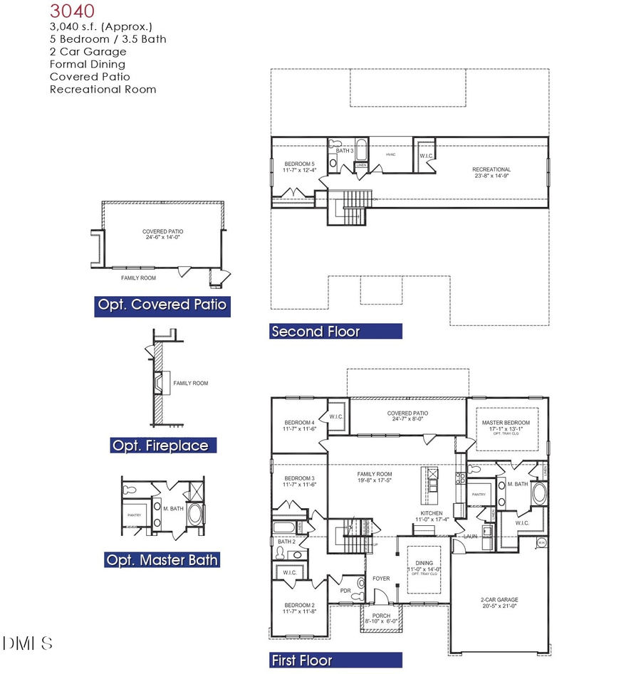
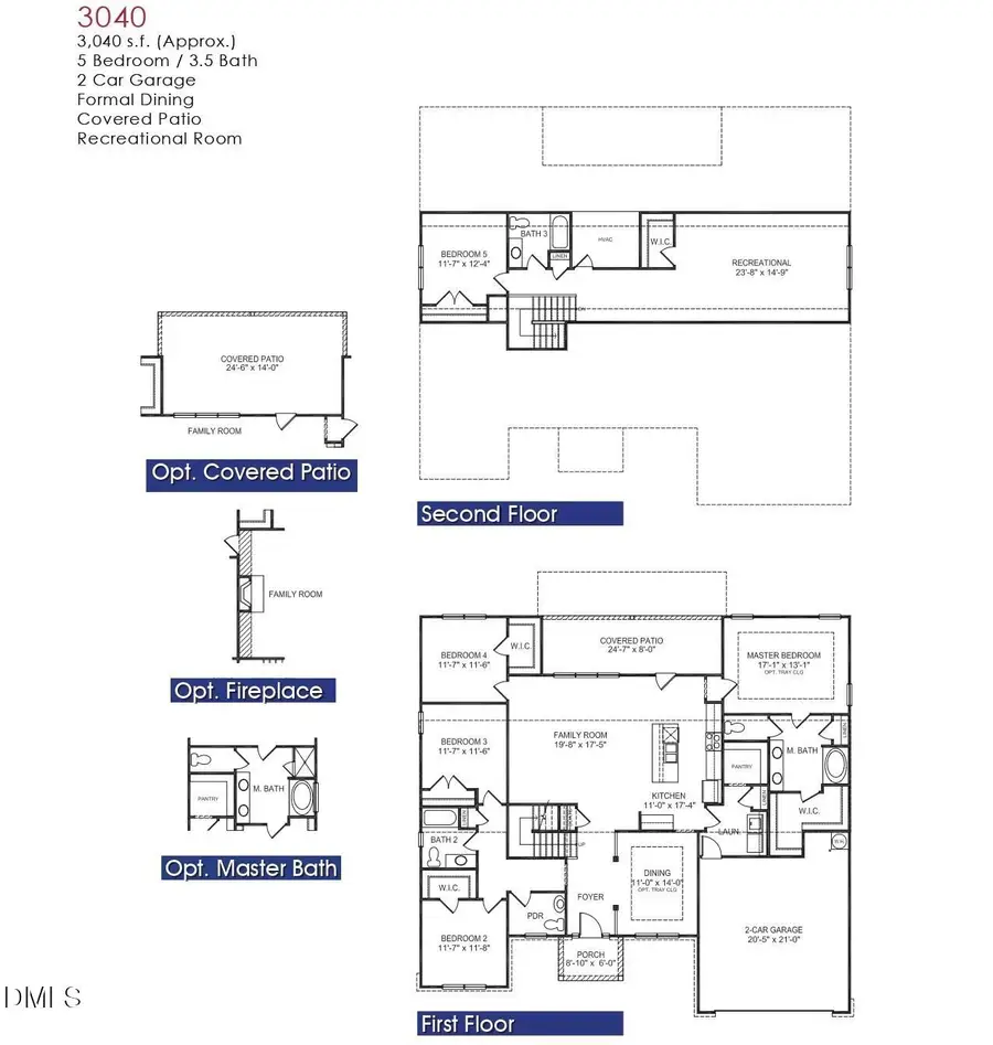
Introducing the 3040 Plan by Adams Homes, a beautifully designed 1.5-story ranch-style home that combines the convenience of main-level living with additional space upstairs for flexibility and comfort.
Step through the front door and you're welcomed by a spacious foyer that immediately sets the tone for the home. Just off the entry is the elegant formal dining room, featuring a tray ceiling, crown molding, and classic shaker board detailing--perfect for hosting family dinners or special gatherings.
On the opposite side of the foyer, a hallway leads to two generously sized secondary bedrooms along with a full bathroom and an additional half bath, offering comfort and convenience for family members or guests.
Continuing into the heart of the home, the floorplan opens into a spacious family room centered around a cozy fireplace--creating the perfect gathering space during cooler months. The family room flows seamlessly into the kitchen, designed with both style and functionality in mind.
The kitchen features a modern gourmet layout with soft-close cabinetry, quartz countertops, wall oven, built-in microwave, matching dishwasher, and plenty of workspace for cooking or entertaining. Just off the kitchen you'll find a large walk-in pantry along with a spacious laundry room complete with a convenient drop zone for everyday organization.
Privately located off the kitchen, the primary suite offers a peaceful retreat with a tray ceiling and crown molding. The spa-inspired primary bathroom features a soaking tub, separate walk-in shower with ceramic tile walls, dual vanities, and an oversized walk-in closet.
Back off the family room, you'll find an additional secondary bedroom, while the staircase with decorative iron balusters leads to the upper level. Upstairs, the home offers even more flexible living space including a large recreation room, a full bathroom, and an additional flex room--perfect for a media room, guest suite, home gym, or office.
With its thoughtful layout, generous living spaces, and stylish finishes, the 3040 Plan offers the best of ranch-style living with the added bonus of extra room to grow.
For additional information or to schedule your private tour, please contact the listing agent.
Images are of a previously completed home. Actual home may vary in colors, finishes, and design selections....
Contact an agent
Home facts
- Year built:2026
- Listing ID #:10125652
- Added:202 day(s) ago
- Updated:April 23, 2026 at 03:35 PM
Rooms and interior
- Bedrooms:4
- Total bathrooms:4
- Full bathrooms:3
- Half bathrooms:1
- Rooms Total:10
- Flooring:Carpet, Laminate, Vinyl
- Basement Description:Crawl Space
- Living area:3,040 sq. ft.
Heating and cooling
- Cooling:Central Air, Electric
- Heating:Electric, Forced Air
- Central air:Yes
Structure and exterior
- Roof:Shingle
- Year built:2026
- Building area:3,040 sq. ft.
- Lot area:1.67 Acres
- Architectural Style:Craftsman
- Construction Materials:Blown-In Insulation, Board & Batten Siding, Shake Siding, Stone Veneer, Vinyl Siding
- Levels:One and One Half
Schools
- High school:Johnston - Corinth Holder
- Middle school:Johnston - Archer Lodge
- Elementary school:Johnston - Thanksgiving
Utilities
- Water:Public
- Sewer:Septic Tank
Finances and disclosures
- Price:$513,300
- Price per sq. ft.:$168.85
- Tax amount:$444
Parking
- Garage:Yes
- Garage spaces:2
New listings near 79 Leslie Court
- Open Sun, 2 to 4pmNew
$390,000Active3 beds 2 baths1,938 sq. ft.9001 Fox Trot Circle, Middlesex, NC 27557
MLS# 10162106Listed by: WPI REALTY LLC - New
$1,000,000Active3 beds 5 baths2,894 sq. ft.12661 Burgess Road, Middlesex, NC 27557
MLS# 10161754Listed by: PARRISH REALTY COMPANY OF ZEBU - New
$260,000Active3 beds 2 baths1,267 sq. ft.11438 Village Square Drive, Middlesex, NC 27557
MLS# 10161776Listed by: CLIFTON PROPERTY INVESTMENT - New
$285,000Active3 beds 2 baths1,668 sq. ft.3128 Prophecy Road, Middlesex, NC 27557
MLS# 100568716Listed by: BILL BRANTLEY REALTY, LLC - New
$267,990Active3 beds 2 baths2,412 sq. ft.6626 Chillingham Drive, Middlesex, NC 27557
MLS# 10161404Listed by: ASHTON WOODS HOMES - Open Fri, 12 to 5pmNew
$315,990Active3 beds 2 baths1,536 sq. ft.11487 Salers Loop, Middlesex, NC 27557
MLS# 10161423Listed by: ASHTON WOODS HOMES - Open Sun, 1 to 3pmNew
$589,900Active4 beds 3 baths2,580 sq. ft.168 Prency Lane, Middlesex, NC 27557
MLS# 100567660Listed by: O'MEARA REALTY GROUP - New
$275,000Active3 beds 2 baths1,321 sq. ft.11764 W Finch Avenue, Middlesex, NC 27557
MLS# 10160356Listed by: RE/MAX EXECUTIVE - New
$401,900Active4 beds 2 baths1,871 sq. ft.11300 International Drive, Middlesex, NC 27557
MLS# 100567289Listed by: LGI REALTY NC, LLC - New
$441,900Active3 beds 2 baths2,373 sq. ft.11562 International Drive, Middlesex, NC 27557
MLS# 100567298Listed by: LGI REALTY NC, LLC