2005 Tarpon Trail, New Bern, NC 28562
Local realty services provided by:Better Homes and Gardens Real Estate Lifestyle Property Partners
2005 Tarpon Trail,New Bern, NC 28562
$458,000
- 4 Beds
- 3 Baths
- 3,350 sq. ft.
- Single family
- Pending
Listed by: jeremy smith
Office: keller williams realty
MLS#:100548830
Source:NC_CCAR
Price summary
- Price:$458,000
- Price per sq. ft.:$136.72
About this home
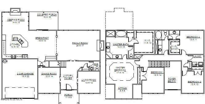
The ''Haley'' floor plan is under construction on a nature backing lot in Hutton Pointe PH II of Bluewater Rise. Builder offering $10,000 in buyers closing cost assistance w/ use of preferred lender & attorney. This 2-story floor plan features an impressive 2-story foyer entry flanked by a formal dining room & living room / office. Defined by it's open living areas, the ''Haley'' offers a large family room w/ gas log fireplace that opens to an eat-in kitchen w/ nook & keeping room w/ gas log fireplace. A large principles suite awaits you up stairs w/ sitting room and enormous private bathroom & walk-in closet. 3 secondary bedrooms and a laundry room round out the 2nd floor.
Contact an agent
Home facts
- Year built:2026
- Listing ID #:100548830
- Added:101 day(s) ago
- Updated:April 25, 2026 at 07:46 AM
Rooms and interior
- Bedrooms:4
- Total bathrooms:3
- Full bathrooms:2
- Half bathrooms:1
- Rooms Total:11
- Flooring:Carpet, Laminate, Tile
- Bathrooms Description:Walk-in Shower
- Kitchen Description:Dishwasher, Disposal, Kitchen Island
- Bedroom Description:Walk-In Closet(s)
- Living area:3,350 sq. ft.
Heating and cooling
- Cooling:Heat Pump
- Heating:Electric, Fireplace(s), Heat Pump, Heating
Structure and exterior
- Roof:Architectural Shingle
- Year built:2026
- Building area:3,350 sq. ft.
- Lot area:0.57 Acres
- Construction Materials:Vinyl Siding, Wood Frame
- Exterior Features:Covered
- Foundation Description:Slab
- Levels:2 Story
Schools
- High school:New Bern
- Middle school:Grover C.Fields
- Elementary school:Creekside Elementary School
Utilities
- Water:Water Connected
- Sewer:Sewer Connected
Finances and disclosures
- Price:$458,000
- Price per sq. ft.:$136.72
Features and amenities
- Appliances:Dishwasher, Disposal
- Laundry features:Laundry Room
- Amenities:Ceiling Fan(s), Management, Solid Surface, Tray Ceiling(s), Walk-In Closet(s)
Parking
- Total parking spaces:2
- Parking description:Attached Garage, Concrete, Garage Door Opener, Off Street
- Garage:Yes
New listings near 2005 Tarpon Trail
- New
$68,000Active0.79 Acres404 Mellen Court, New Bern, NC 28562
MLS# 100569461Listed by: KELLER WILLIAMS REALTY - New
$258,900Active3 beds 2 baths1,270 sq. ft.214 Derby Park Avenue, New Bern, NC 28562
MLS# 100569428Listed by: HOME SWEET HOME REALTY BY LAURIE LAMOTTE, LLC - New
$475,000Active3 beds 3 baths1,971 sq. ft.3008 Olde Towne Place, New Bern, NC 28562
MLS# 100569382Listed by: COLDWELL BANKER SEA COAST ADVANTAGE - New
$515,000Active3 beds 3 baths2,602 sq. ft.908 Taberna Circle, New Bern, NC 28562
MLS# 100569341Listed by: BECKY BERRY REAL ESTATE INC. - New
$339,900Active3 beds 2 baths1,946 sq. ft.113 Bermuda View, New Bern, NC 28560
MLS# 100569350Listed by: KELLER WILLIAMS REALTY - New
$457,400Active3 beds 2 baths1,638 sq. ft.1009 Exeter Place, New Bern, NC 28562
MLS# 100569299Listed by: COLDWELL BANKER SEA COAST ADVANTAGE - Open Sat, 12 to 2pmNew
$289,000Active3 beds 2 baths1,465 sq. ft.200 Station House Road, New Bern, NC 28562
MLS# 100569123Listed by: COLDWELL BANKER SEA COAST ADVANTAGE - New
$335,000Active3 beds 2 baths2,043 sq. ft.4802 Meadow Court Drive, New Bern, NC 28562
MLS# 100569140Listed by: RE/MAX OCEAN PROPERTIES EI - New
$336,900Active3 beds 2 baths2,184 sq. ft.1009 Chiles Drive, New Bern, NC 28562
MLS# 100569162Listed by: KELLER WILLIAMS REALTY - New
$265,000Active3 beds 2 baths1,457 sq. ft.1311 Pelican Drive, New Bern, NC 28560
MLS# 100569084Listed by: COLDWELL BANKER SEA COAST ADVANTAGE