112 Imagine Way, Pittsboro, NC 27312
Local realty services provided by:Better Homes and Gardens Real Estate Paracle
112 Imagine Way,Pittsboro, NC 27312
$687,000
- 3 Beds
- 3 Baths
- 2,374 sq. ft.
- Single family
- Pending
Listed by: peter winkler
Office: keller williams elite realty
MLS#:10145257
Source:RD
Price summary
- Price:$687,000
- Price per sq. ft.:$289.39
- Monthly HOA dues:$265
About this home
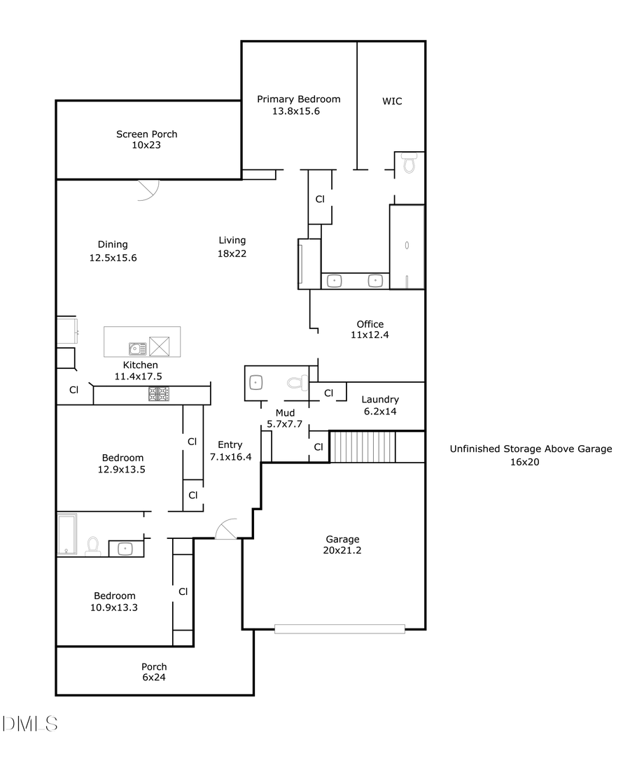
BETTER THAN NEW single-level living in Encore, Chatham Park's 55+ community! This beautifully designed home sits on a premium homesite with open space on TWO SIDES in a completed phase of the development without construction traffic & noise or retaining walls. David Weekley's EDGEMONT floorplan is one of the wider layouts to accommodate the home's ranch design, which features a bright, open-concept living area with GAS FIREPLACE and a separate home office w/ French doors. The central chef's kitchen includes a large island, tile backsplash, quartz counters & stainless appliances. All three bedrooms are on the main level, including a private primary suite w/ zero-entry shower, dual vanities & large walk-in closet. Two large guest bedrooms in front of the home can comfortably fit king-sized beds with room to spare and the private half-bath and spacious 10x23 screened porch are perfect for guests when entertaining. Don't miss the WALK-UP STORAGE located above the 2-car garage! This green-certified home has a tankless water heater, 2x6 exterior walls and other high-performance features making it ~34% more energy-efficient than a typical new home. There is also a NEMA 14-50 EV charging outlet for your electric vehicle. OTHER IMPROVEMENTS include louvered shutters throughout ($10k), tile flooring on screened porch, upgraded interior paint, additional wood flooring, updated kitchen hardware & pull-out shelving, additional landscaping, updated lighting fixtures & ceiling fans, extended appliance warranties through Jan 2028, and more! Encore is a 55+ resort-style community with included lawn maintenance and exclusive access to a Lifestyle Club with 5000sf clubhouse, well-equipped fitness center, tennis & pickleball courts, putting green, pool & hot tub, indoor/outdoor gathering spaces, meditation garden & gas firepits, meeting spaces, miles of scenic trails, and a lifestyle director coordinating year-round events & activities! The convenient location has easy access to US-64, 15-501 & I-540 and is just 4 min to world-class medical care, 5 min to coffee, retail, dining & entertainment, 7 min to new YMCA, 14 min to Jordan Lake & 33 min to RDU Airport. VIDEO TOUR: bit.ly/112Imagine-Video *Ask about available lender credit!...
Contact an agent
Home facts
- Year built:2023
- Listing ID #:10145257
- Added:105 day(s) ago
- Updated:May 23, 2026 at 12:52 PM
Rooms and interior
- Bedrooms:3
- Total bathrooms:3
- Full bathrooms:2
- Half bathrooms:1
- Rooms Total:11
- Flooring:Carpet, Tile, Vinyl
- Dining Description:Kitchen/Dining Room Combination, Living/Dining Room Combination
- Bathrooms Description:Bathtub/Shower Combination, Double Vanity, Walk-In Shower, Water Closet
- Kitchen Description:Dishwasher, Disposal, ENERGY STAR Qualified Appliances, Gas Cooktop, Gas Water Heater, Microwave, Plumbed For Ice Maker, Range Hood, Stainless Steel Appliance(s)
- Bedroom Description:Master Downstairs
- Living area:2,374 sq. ft.
Heating and cooling
- Cooling:Ceiling Fan(s), Central Air, Electric
- Heating:Fireplace(s), Forced Air, Natural Gas
- Central air:Yes
Structure and exterior
- Roof:Shingle
- Year built:2023
- Building area:2,374 sq. ft.
- Lot area:0.19 Acres
- Lot Features:Back Yard, Front Yard, Garden, Landscaped
- Architectural Style:Craftsman, Ranch
- Construction Materials:Brick, Fiber Cement, Lap Siding
- Exterior Features:Covered, Front Porch, Garden, Porch, Rain Gutters, Rear Porch, Screened
- Foundation Description:Slab
- Levels:Two
Schools
- High school:Chatham - Northwood
- Middle school:Chatham - Horton
- Elementary school:Chatham - Perry W Harrison Elementary
Utilities
- Water:Public, Water Connected
- Sewer:Public Sewer, Sewer Connected
Finances and disclosures
- Price:$687,000
- Price per sq. ft.:$289.39
- Tax amount:$6,719
Features and amenities
- Appliances:Dishwasher, Disposal, ENERGY STAR Qualified Appliances, Gas Cooktop, Gas Water Heater, Microwave, Oven, Plumbed For Ice Maker, Range Hood, Stainless Steel Appliance(s), Tankless Water Heater
- Laundry features:Electric Dryer Hookup, Laundry Room, Lower Level
- Amenities:Built-in Features, Ceiling Fan(s), Clubhouse, Crown Molding, Entrance Foyer, Gas Water Heater, High Ceilings, High Speed Internet, Kitchen Island, Management, Open Floorplan, Pantry, Pool, Quartz Counters, Recessed Lighting, Smooth Ceilings, Storage, Tankless Water Heater, Tennis Court(s), Trail(s), Tray Ceiling(s), Walk-In Closet(s)
- Pool features:Community
Parking
- Parking description:Attached, Driveway, Electric Vehicle Charging Station(s), Garage, Garage Door Opener, Garage Faces Front
- Garage:Yes
- Garage spaces:2
New listings near 112 Imagine Way
- Open Sun, 2 to 4pmNew
$855,000Active4 beds 3 baths3,686 sq. ft.1074 Golfers View, Pittsboro, NC 27312
MLS# 10169071Listed by: COLDWELL BANKER ADVANTAGE - Coming Soon
$1,850,000Coming Soon4 beds 5 baths49 Harrison Pond Drive, Pittsboro, NC 27312
MLS# 10168964Listed by: ABSOLUTE REALTY COMPANY, LLC - New
$469,990Active2 beds 2 baths1,467 sq. ft.134 Tantara Bend, Pittsboro, NC 27312
MLS# 10168926Listed by: WEEKLEY HOMES, LLC - New
$425,000Active2 beds 2 baths1,467 sq. ft.141 Tantara Bend, Pittsboro, NC 27312
MLS# 10168931Listed by: WEEKLEY HOMES, LLC - New
$430,000Active2 beds 2 baths1,469 sq. ft.133 Tantara Bend, Pittsboro, NC 27312
MLS# 10168935Listed by: WEEKLEY HOMES, LLC - New
$466,980Active2 beds 2 baths1,469 sq. ft.156 Tantara Bend, Pittsboro, NC 27312
MLS# 10168947Listed by: WEEKLEY HOMES, LLC - New
$857,000Active3 beds 3 baths2,065 sq. ft.205 Anolis Drive, Pittsboro, NC 27312
MLS# 10168889Listed by: CHATHAM HOMES REALTY - New
$499,000Active3 beds 2 baths1,450 sq. ft.44 Benchmark, Pittsboro, NC 27312
MLS# 10168862Listed by: BERKSHIRE HATHAWAY HOMESERVICE - New
$399,000Active2 beds 2 baths1,166 sq. ft.497 Turn Key Way, Pittsboro, NC 27312
MLS# 10168731Listed by: BORO REALTY - New
$379,900Active3 beds 2 baths1,396 sq. ft.917 Roads End, Pittsboro, NC 27312
MLS# 10168648Listed by: BERKSHIRE HATHAWAY HOMESERVICE