1406 Hunting Ridge Road, Raleigh, NC 27615
Local realty services provided by:Better Homes and Gardens Real Estate Paracle
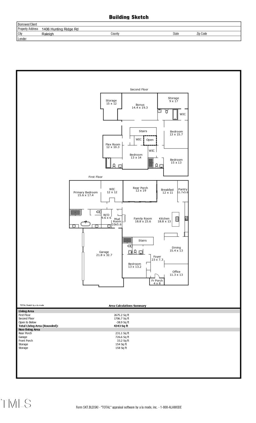
1406 Hunting Ridge Road,Raleigh, NC 27615
$2,575,000
- 5 Beds
- 6 Baths
- - sq. ft.
- Single family
- Sold
Listed by: gretchen coley, devin curlings
Office: compass -- raleigh
MLS#:10125542
Source:RD
Sorry, we are unable to map this address
Price summary
- Price:$2,575,000
About this home
Set in the pristine North Ridge Country Club-- near coffee shops, parks, grocery options, and greenway access, this new construction home by Halcyon Homes offers 4,343 square feet of thoughtfully planned living space with a flexible layout and extensive storage throughout. Designed for both daily living and long-term adaptability, the floor plan balances open gathering areas with well-defined rooms.
The main level centers around an open family room and kitchen that serve as the heart of the home. A first-floor primary suite, separate guest suite, and dedicated office provide multiple options for privacy, work-from-home use, or multi-generational living. The kitchen features quartz countertops, a large island, pantry, built-in features, and a defined breakfast area, with clear sightlines to the family room fireplace.
Living spaces flow naturally while remaining distinct, supporting everyday routines and entertaining alike. The rear porch extends directly from the main living areas and includes retractable screens and a fireplace, creating a functional indoor-outdoor space suitable for dining, relaxing, and year-round use.
Upstairs, three additional bedrooms with walk-in closets are joined by a spacious bonus room and a separate flex room ideal for office, fitness, or media use. Two dedicated storage rooms add a level of functionality not often found in new construction. Mudroom and laundry areas are conveniently located off the garage entry.
An oversized three-car attached garage (approximately 21.8 × 32.7) provides space for vehicles, storage, and hobbies. Exterior finishes include brick and stone accents, and the home sits on approximately 0.36 acres with no HOA.
Located close to nearby amenities including coffee shops, grocery stores, parks, trail connections, and North Raleigh corridors, the property offers convenient access to shopping, dining, and outdoor destinations, including the Falls River and Durant Nature Preserve corridor....
Contact an agent
Home facts
- Year built:2025
- Listing ID #:10125542
- Added:235 day(s) ago
- Updated:May 27, 2026 at 06:43 AM
Rooms and interior
- Bedrooms:5
- Total bathrooms:6
- Full bathrooms:5
- Half bathrooms:1
- Rooms Total:16
- Flooring:Carpet, Hardwood, Tile
- Dining Description:Eat-in Kitchen
- Bathrooms Description:Double Vanity, Walk-In Shower
- Kitchen Description:Dishwasher, Gas Range, Range Hood, Stainless Steel Appliance(s)
- Bedroom Description:Master Downstairs, Second Primary Bedroom
- Basement Description:Crawl Space
Heating and cooling
- Cooling:Central Air
- Heating:Heat Pump
- Central air:Yes
Structure and exterior
- Roof:Shingle
- Year built:2025
- Architectural Style:Contemporary, Traditional, Transitional, Tudor
- Construction Materials:Brick, Stone
- Exterior Features:In Parade of Homes, Lighting, Private Entrance, Private Yard
- Levels:Two
Schools
- High school:Wake - Millbrook
- Middle school:Wake - West Millbrook
- Elementary school:Wake - North Ridge
Utilities
- Water:Public
- Sewer:Public Sewer
Finances and disclosures
- Price:$2,575,000
- Tax amount:$4,796
Features and amenities
- Appliances:Dishwasher, Gas Range, Range Hood, Stainless Steel Appliance(s)
- Laundry features:Laundry Room, Main Level
- Amenities:Built-in Features, Ceiling Fan(s), Entrance Foyer, High Ceilings, In-Law Floorplan, Kitchen Island, Open Floorplan, Pantry, Quartz Counters, Smooth Ceilings, Storage, Vaulted Ceiling(s), Walk-In Closet(s), Wet Bar
Parking
- Parking description:Concrete, Driveway, Garage
- Garage:Yes
- Garage spaces:3
New listings near 1406 Hunting Ridge Road
- New
$222,000Active3 beds 1 baths1,000 sq. ft.807 Beverly Drive, Raleigh, NC 27610
MLS# 10169752Listed by: MARK SPAIN REAL ESTATE - Coming Soon
$389,000Coming Soon3 beds 3 baths5519 Wallace Martin Way, Raleigh, NC 27616
MLS# 10169741Listed by: UMSTEAD REALTY, LLC - New
$229,000Active-- beds 2 baths2,096 sq. ft.5043 Tall Pines Court, Raleigh, NC 27609
MLS# 10169742Listed by: NORTHSIDE REALTY INC. - New
$299,000Active2 beds 3 baths1,274 sq. ft.1401 Coopershill Drive #206, Raleigh, NC 27604
MLS# 10169744Listed by: TRELORA REALTY INC. - New
$755,000Active6 beds 4 baths4,077 sq. ft.2603 Van Dyke Avenue, Raleigh, NC 27607
MLS# 10169745Listed by: MONARCH REALTY CO. - New
$315,000Active3 beds 3 baths1,725 sq. ft.3921 Iron Horse Road, Raleigh, NC 27616
MLS# 10169749Listed by: MARK SPAIN REAL ESTATE - New
$450,000Active4 beds 3 baths1,778 sq. ft.3015 Rennit Court, Raleigh, NC 27603
MLS# 10169706Listed by: REDFIN CORPORATION - Coming Soon
$675,000Coming Soon3 beds 3 baths537 Maywood Avenue, Raleigh, NC 27603
MLS# 10169709Listed by: KELLER WILLIAMS REALTY CARY - Open Thu, 9am to 7pmNew
$276,000Active3 beds 2 baths1,178 sq. ft.2100 Walnut Ridge Court, Raleigh, NC 27610
MLS# 10169694Listed by: OPENDOOR BROKERAGE LLC - New
$900,000Active0.38 Acres4517 Pitt Street, Raleigh, NC 27609
MLS# 10169695Listed by: INTRUST REALTY, INC.