6700 Brookmeade Place, Raleigh, NC 27612
Local realty services provided by:Better Homes and Gardens Real Estate Paracle
6700 Brookmeade Place,Raleigh, NC 27612
$599,900
- 4 Beds
- 3 Baths
- - sq. ft.
- Single family
- Coming Soon
Listed by: jenne kendziora
Office: compass -- raleigh
MLS#:10160208
Source:RD
Price summary
- Price:$599,900
About this home
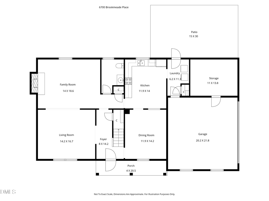
Located in the heart of Raleigh, this classic brick home offers space, charm, and an unbeatable setting on a generous 0.62 acre lot. With 4 large bedrooms and 2.5 baths, the home blends timeless character with thoughtful updates throughout.
Directly across the street from Lynn Road Elementary School, you will enjoy easy access to a park and playground just steps from your front door. The setting is hard to beat, offering both convenience and a true neighborhood feel.
The home features a predominantly brick exterior with only minimal vinyl above the garage, an oversized two car garage with a workshop or additional storage space, and a partially fenced backyard with a beautiful paver patio, perfect for relaxing or entertaining. Inside, a large picture window in the family room frames peaceful backyard views and fills the space with natural light.
Designed for both everyday living and entertaining, the main floor includes an eat-in kitchen, separate dining room, and both a living room and family room, offering flexibility for how you live. Spacious half bath on the first floor.
Upstairs, the spacious primary suite offers dual closets for exceptional storage, while all bedrooms are generously sized to provide comfort and flexibility for everyone in the home.
The kitchen showcases solid wood cabinetry, Corian countertops, updated hardware, and all appliances replaced in 2017. Walls have been thoughtfully opened between the kitchen and dining room, as well as the living room and family room, creating a more connected and functional layout.
Major system updates provide peace of mind, including a roof replaced in 2013, a water heater installed in 2014, and HVAC with a main unit manufactured in 2011. Additional improvements include a brand new driveway in 2022, updated flooring across most of the first floor with hardwoods and laminate, new gutter guards, and crawl space waterproofing with a sump pump installed by Shamrock Waterproofing.
Interior upgrades continue with new front and rear exterior doors, removal of select interior doors to create open, inviting transitions between rooms, and all hinges and door hardware updated to oil rubbed bronze. The home also features a gas fireplace and refreshed bathrooms with new toilets, mirrors, lighting, and hardware.
Connected to city water with the previous septic system professionally retired.
This is a rare opportunity to own a spacious, well maintained home on a large lot in a prime Raleigh location, with meaningful updates already completed and room to make it your own....
Contact an agent
Home facts
- Year built:1971
- Listing ID #:10160208
- Added:1 day(s) ago
- Updated:April 16, 2026 at 01:00 AM
Rooms and interior
- Bedrooms:4
- Total bathrooms:3
- Full bathrooms:2
- Half bathrooms:1
- Rooms Total:11
- Flooring:Carpet, Hardwood, Laminate, Tile
- Dining Description:Eat-in Kitchen
- Kitchen Description:Dishwasher, Disposal, Electric Range, Microwave
Heating and cooling
- Cooling:Central Air
- Heating:Forced Air, Natural Gas
- Central air:Yes
Structure and exterior
- Roof:Shingle
- Year built:1971
- Lot Features:Back Yard, Landscaped
- Architectural Style:Transitional
- Construction Materials:Brick, Vinyl Siding
- Exterior Features:Front Porch, Patio
- Levels:Two
Schools
- High school:Wake - Sanderson
- Middle school:Wake - Carroll
- Elementary school:Wake - Lynn Road
Utilities
- Water:Public
- Sewer:Public Sewer
Finances and disclosures
- Price:$599,900
- Tax amount:$4,899
Features and amenities
- Appliances:Dishwasher, Disposal, Electric Range, Microwave, Oven, Water Heater
- Laundry features:Laundry Room, Lower Level
- Amenities:Ceiling Fan(s), Storage, Water Heater
Parking
- Parking description:Garage, Garage Faces Side, Oversized, Workshop in Garage
- Garage:Yes
- Garage spaces:2
New listings near 6700 Brookmeade Place
- New
$869,000Active4 beds 4 baths4,808 sq. ft.4613 Cross Brook Lane, Raleigh, NC 27610
MLS# 10160200Listed by: COMPASS -- CARY - New
$299,000Active0.53 Acres1308 Onslow Road, Raleigh, NC 27606
MLS# 10160166Listed by: BERKSHIRE HATHAWAY HOMESERVICE - New
$250,000Active2 beds 3 baths1,367 sq. ft.2604 Vega Court, Raleigh, NC 27614
MLS# 10160169Listed by: THE REAL ESTATE STUDIO LLC - New
$499,000Active4 beds 4 baths2,831 sq. ft.7356 Berkshire Downs Drive, Raleigh, NC 27616
MLS# 10160098Listed by: KELLER WILLIAMS LEGACY - Open Sat, 12 to 2pmNew
$355,000Active3 beds 2 baths1,542 sq. ft.3003 Dogwood Drive, Raleigh, NC 27604
MLS# 10160110Listed by: REVOLVE REALTY GROUP - Coming Soon
$650,000Coming Soon3 beds 3 baths9904 Penny Road, Raleigh, NC 27606
MLS# 10160120Listed by: COMPASS -- CARY - New
$1,395,000Active3 beds 4 baths3,475 sq. ft.511 Oakwood Avenue, Raleigh, NC 27601
MLS# 10160123Listed by: LONG & FOSTER REAL ESTATE INC/BRIER CREEK - New
$290,000Active3 beds 3 baths1,608 sq. ft.4318 Bethel Park Drive, Raleigh, NC 27610
MLS# 10160126Listed by: UNITED REAL ESTATE TRIANGLE - New
$119,000Active1 beds 1 baths661 sq. ft.4700 Westgrove Street #216, Raleigh, NC 27606
MLS# 10160127Listed by: NAVIGATE REALTY