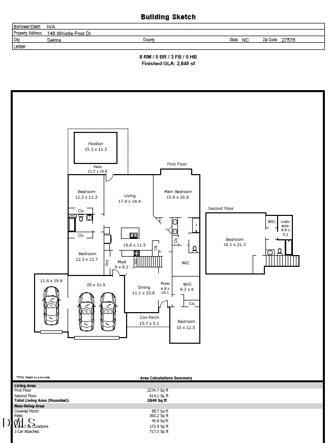
146 Whistle Post Drive, Selma, NC 27576
Local realty services provided by:Better Homes and Gardens Real Estate Paracle
146 Whistle Post Drive,Selma, NC 27576
$447,000
- 4 Beds
- 3 Baths
- - sq. ft.
- Single family
- Sold
Listed by: renee hillman
Office: exp realty llc.
MLS#:10143639
Source:RD
Sorry, we are unable to map this address
Price summary
- Price:$447,000
- Monthly HOA dues:$45
About this home
Everything under one roof your heart desires! This hard-to-find ranch floor plan offers the space you need with 4 bedrooms on the main floor plus a spacious 3-car garage. Designed for effortless living, the welcoming foyer opens to a formal dining room, leading you into the heart of the home.
The kitchen is a standout, featuring modern gray cabinets, granite countertops, and stainless steel appliances—and the refrigerator stays! The large island offers ample seating and flows seamlessly into the expansive living room. Staying organized is easy with a dedicated mudroom off the garage, a convenient pantry, and a separate laundry room for extra storage.
Privacy is built into the layout: one guest bedroom sits near the front—making a quiet home office—while two additional guest bedrooms are tucked away in the rear. On the other rear corner, the primary suite is a true retreat with ample space for a king-sized furniture suite and a dedicated zen area. You'll love the primary bath, which features double vanities, a walk-in shower, and a large, practical walk-in closet.
Upstairs, a versatile bonus room with a full tile bathroom and walk-in attic storage offers endless possibilities for a media room or guest suite.
The outdoor space is the ultimate highlight! Enjoy a level, fenced backyard complete with a patio and a pavilion for shade—the ideal setup for your next backyard game competition.
Location is everything here! You are less than 8 miles from booming Flowers Plantation and just 20 minutes from the small-town charm of Clayton. When spring hits, don't forget to mark your calendar for the famous Ham & Yam Festival in nearby Smithfield!...
Contact an agent
Home facts
- Year built:2021
- Listing ID #:10143639
- Added:104 day(s) ago
- Updated:May 14, 2026 at 07:04 AM
Rooms and interior
- Bedrooms:4
- Total bathrooms:3
- Full bathrooms:3
- Rooms Total:15
- Flooring:Carpet, Laminate, Vinyl
- Bathrooms Description:Double Vanity, Walk-In Shower
- Kitchen Description:Dishwasher, Electric Range, Electric Water Heater, Microwave
- Bedroom Description:Master Downstairs
Heating and cooling
- Cooling:Central Air, Heat Pump
- Heating:Forced Air, Heat Pump
- Central air:Yes
Structure and exterior
- Roof:Shingle
- Year built:2021
- Lot Features:Back Yard, Hardwood Trees, Landscaped, Level
- Architectural Style:Traditional, Transitional
- Construction Materials:Vinyl Siding
- Exterior Features:Fenced Yard, Patio, Private Yard
- Foundation Description:Slab
- Levels:Two
Schools
- High school:Johnston - Smithfield Selma
- Middle school:Johnston - Selma
- Elementary school:Johnston - Selma
Utilities
- Water:Public, Water Connected
- Sewer:Septic Tank
Finances and disclosures
- Price:$447,000
- Tax amount:$2,774
Features and amenities
- Appliances:Dishwasher, Electric Range, Electric Water Heater, Microwave
- Laundry features:Laundry Room, Lower Level
- Amenities:Ceiling Fan(s), Electric Water Heater, Entrance Foyer, Granite Counters, Kitchen Island, Open Floorplan, Smooth Ceilings, Tray Ceiling(s), Walk-In Closet(s)
Parking
- Parking description:Attached, Garage, Garage Faces Front
- Garage:Yes
- Garage spaces:3
New listings near 146 Whistle Post Drive
- New
$230,000Active4 beds 2 baths1,732 sq. ft.501 N Raiford Street, Selma, NC 27576
MLS# 100573412Listed by: HTR SOUTHERN PROPERTIES - New
$340,999Active3 beds 2 baths1,396 sq. ft.54 Lynn Lane, Selma, NC 27576
MLS# 100573297Listed by: UNITED REAL ESTATE TRIANGLE - New
$299,900Active3 beds 3 baths1,625 sq. ft.28 W Coulter Court, Selma, NC 27576
MLS# 100573174Listed by: HOMETOWNE REALTY - New
$306,900Active4 beds 3 baths1,711 sq. ft.44 W Coulter Court, Selma, NC 27576
MLS# 100573175Listed by: HOMETOWNE REALTY - New
$190,000Active3 beds 2 baths1,512 sq. ft.550 Phillips Road, Selma, NC 27576
MLS# 10166243Listed by: HOMETOWNE REALTY GARNER - New
$379,900Active3 beds 3 baths1,615 sq. ft.124 Walker, Selma, NC 27576
MLS# 10166103Listed by: THE OCEAN GROUP
$295,000Pending3 beds 3 baths1,347 sq. ft.116 Serenity Pointe Drive, Selma, NC 27576
MLS# 10165702Listed by: BOW TIE REALTY LLC- New
$240,000Active3 beds 2 baths1,130 sq. ft.113 Shadow Bend Lane, Selma, NC 27576
MLS# 10165710Listed by: KEYSTAR REALTY & MANAGEMENT LL - New
$340,000Active3 beds 2 baths1,650 sq. ft.78 Tally Ho Drive, Selma, NC 27576
MLS# 10165599Listed by: HOMETOWNE REALTY CLAYTON EAST - New
$289,900Active3 beds 2 baths1,229 sq. ft.57 Overdrift Court, Selma, NC 27576
MLS# 10165322Listed by: RE/MAX SOUTHLAND REALTY II