210 Eagle Point Lane, Southern Pines, NC 28387
Local realty services provided by:Better Homes and Gardens Real Estate Elliott Coastal Living
210 Eagle Point Lane,Southern Pines, NC 28387
$1,900,000
- 5 Beds
- 5 Baths
- 4,177 sq. ft.
- Single family
- Active
Listed by: crystal wall
Office: formyduval homes real estate, llc.
MLS#:100558234
Source:NC_CCAR
Price summary
- Price:$1,900,000
- Price per sq. ft.:$454.87
About this home
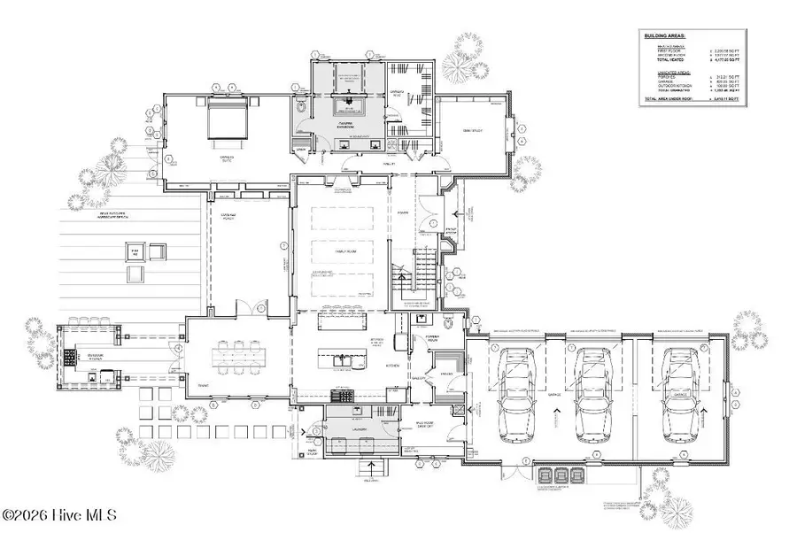
New construction home in Mid South Club built by local builders, Formyduval Homes LLC, offering timeless architecture and thoughtfully designed living spaces inside and out. This 4,177sf home blends classic brick detailing with modern functionality, creating a warm yet sophisticated presence from the moment you arrive. Located on a cul de sac on the golf course gives this home the perfect space for outdoor living and is a true highlight. The covered porch and dedicated outdoor kitchen area ideal for gathering year-round or just relaxing. The main level is designed for both everyday living and exceptional entertainment. A spacious family room flows seamlessly into the kitchen and dining areas, anchored by a large island and generous prep space. Expansive windows bring in natural light and overlook the covered porch and outdoor living areas which face the golf course. A private study sits just off the foyer, while the primary suite offers a quiet retreat with a spa-like ensuite bathroom and oversized walk-in closet. Upstairs, you'll find 4 additional bedrooms, 2 well-designed jack-n-jill bathrooms, half bath and a large bonus/media room with a wet bar. Additional features include a 3-car garage, Generac generator, irrigation sprinkler system, tankless hot water heater, functional mudroom and laundry spaces on both floors, and carefully planned storage throughout. With classic exterior appeal, a highly functional floor plan, and seamless indoor-outdoor living, this home offers the perfect balance of comfort, style, and livability. Come check out everything Mid South Club has to offer....
Contact an agent
Home facts
- Year built:2026
- Listing ID #:100558234
- Added:49 day(s) ago
- Updated:April 24, 2026 at 10:14 AM
Rooms and interior
- Bedrooms:5
- Total bathrooms:5
- Full bathrooms:3
- Half bathrooms:2
- Rooms Total:13
- Flooring:Tile, Wood
- Dining Description:Eat-in Kitchen
- Bathrooms Description:Walk-in Shower
- Kitchen Description:Eat-in Kitchen, Kitchen Island, Pantry
- Bedroom Description:Master Downstairs, Walk-In Closet(s)
- Living area:4,177 sq. ft.
Heating and cooling
- Cooling:Central Air, Heat Pump
- Heating:Electric, Fireplace(s), Forced Air, Heat Pump, Heating
- Central air:Yes
Structure and exterior
- Roof:Architectural Shingle
- Year built:2026
- Building area:4,177 sq. ft.
- Lot area:0.57 Acres
- Construction Materials:Brick, Fiber Cement, Wood Frame
- Exterior Features:Covered, Irrigation System, Patio
- Foundation Description:Crawl Space
- Levels:2 Story
Schools
- High school:Pinecrest High
- Middle school:Crain's Creek Middle
- Elementary school:Southern Pines Elementary
Utilities
- Water:Water Connected
- Sewer:Sewer Connected
Finances and disclosures
- Price:$1,900,000
- Price per sq. ft.:$454.87
Features and amenities
- Laundry features:Laundry Room
- Amenities:Bookcases, Ceiling Fan(s), Gated, Walk-In Closet(s), Whole-Home Generator
Parking
- Total parking spaces:3
- Parking description:Attached Garage, Concrete, Garage Door Opener
- Garage:Yes
New listings near 210 Eagle Point Lane
- New
$2,350,000Active5 beds 4 baths4,983 sq. ft.182 National Drive, Pinehurst, NC 28374
MLS# 100569246Listed by: FORMYDUVAL HOMES REAL ESTATE, LLC - New
$550,000Active3 beds 4 baths2,999 sq. ft.852 Barber Road, Southern Pines, NC 28387
MLS# 100569098Listed by: EVERYTHING PINES PARTNERS LLC - New
$399,000Active2 beds 2 baths1,933 sq. ft.147 Knollwood Drive, Southern Pines, NC 28387
MLS# 100568981Listed by: COLDWELL BANKER ADVANTAGE-SOUTHERN PINES - New
$1,085,000Active5 beds 4 baths3,101 sq. ft.52 Greencastle Drive, Pinehurst, NC 28374
MLS# 100568991Listed by: KELLER WILLIAMS PINEHURST - New
$345,000Active3 beds 2 baths1,948 sq. ft.420 E Hedgelawn Way, Southern Pines, NC 28387
MLS# 100568862Listed by: COLDWELL BANKER ADVANTAGE-SOUTHERN PINES
$135,000Pending0.39 Acres43 Middlebury Road, Pinehurst, NC 28374
MLS# 100568618Listed by: COLONY PARTNERS- Open Sun, 1 to 3pmNew
$825,000Active3 beds 3 baths2,391 sq. ft.141 Bridgewater Drive, Southern Pines, NC 28387
MLS# 100568452Listed by: KELLER WILLIAMS PINEHURST - New
$265,000Active2 beds 3 baths2,337 sq. ft.212 Skyline Manor Road, Southern Pines, NC 28387
MLS# 100568474Listed by: NEXTHOME IN THE PINES - Open Sat, 11am to 1pmNew
$440,000Active2 beds 1 baths1,167 sq. ft.465 N Leak Street, Southern Pines, NC 28387
MLS# 100568423Listed by: PINES SOTHEBY'S INTERNATIONAL REALTY - New
Listed by BHGRE$449,500Active3 beds 3 baths2,049 sq. ft.194 Starland Lane, Southern Pines, NC 28387
MLS# 100568357Listed by: BETTER HOMES AND GARDENS REAL ESTATE LIFESTYLE PROPERTY PARTNERS