401 Church Street, Warrenton, NC 27589
Local realty services provided by:Better Homes and Gardens Real Estate Paracle
401 Church Street,Warrenton, NC 27589
$439,000
- 3 Beds
- 3 Baths
- 888 sq. ft.
- Multi-family
- Active
Listed by:steven elliot
Office:fathom realty nc
MLS#:10110063
Source:RD
Price summary
- Price:$439,000
- Price per sq. ft.:$494.37
About this home
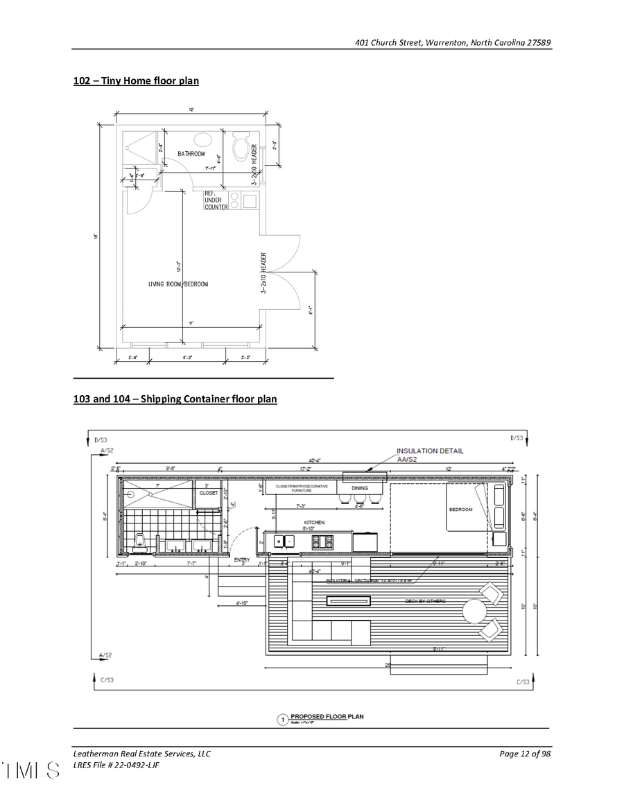
Welcome to an exclusive tiny home village investment opportunity in the heart of Warrenton, NC! This income-producing property consists of three fully furnished, high-end tiny homes operating as successful short-term rentals, plus four additional vacant lots ready for expansion. Whether you're looking to scale an existing Airbnb business, develop more units, or create a private community, this property offers incredible flexibility. 💰 Turnkey AirbnbBusiness with Strong Income History 📈 Proven Short-Term Rental Demand in a Growing Market 🌳 Expansive 1.794-Acre Lot with Room for More HomesExisting Tiny Homes (Fully Furnished & Operational Airbnb Rentals) 🏠 Tiny Home #1 - Modern Loft Retreat • Size: 399 sq. ft. • Features: Lofted sleeping area, full kitchen, spa-inspired bathroom, stainless steel appliances, smart home technology, large windows, and a modern design that attracts high rental demand. 🏠 Tiny Home #2 - Scandinavian Minimalist Haven • Size: 399 sq. ft. • Features: Single-level layout, quartz countertops, energy-efficient appliances, private deck, washer/dryer, and sleek wood cabinetry with a contemporary aesthetic. 🏠 Tiny Home #3 - Rustic Chic Getaway • Size: 399 sq. ft. •Features: Cozy studio-style layout, barn wood accents, built-in storage, a full bath with modern fixtures, and an outdoor fire pit & seating area for guests to enjoy. 🌟 Proven Rental Performance: • Average Nightly Rate: $157 • Occupancy Rate: 52% • Annual Rental Income Potential: Over $70K per homeExpansion & Development Potential 🚧 4 Vacant Lots Included - Ready for additional tiny homes or further development 🛠 Zoned R-12 - Allows for residential single-family development 📍 Strategic Location - Warrenton's emerging vacation rental market provides a low-competition, high-demand opportunity Location & Market Appeal 🌳 Charming Warrenton, NC - A Growing Destination 🏖 Minutes from Lake Gaston, a major tourist attraction 🚗 EasyAccess to Raleigh-Durham & Virginia Border 📈 Rising Demand for Unique Short-Term Rentals Investment Highlights ✅ Fully Operational Airbnb Business with a Proven Track Record ✅ Prime Location in a High-Growth Short-Term Rental Market ✅ Expansion Opportunity - Develop More Tiny Homes or Custom Build ✅ Turnkey Investment - Start Earning from Day One! 💰 📞 Contact us today for a private tour or financials!
Contact an agent
Home facts
- Year built:2020
- Listing ID #:10110063
- Added:69 day(s) ago
- Updated:September 25, 2025 at 12:27 PM
Rooms and interior
- Bedrooms:3
- Total bathrooms:3
- Full bathrooms:3
- Living area:888 sq. ft.
Heating and cooling
- Cooling:Wall Unit(s)
Structure and exterior
- Roof:Metal
- Year built:2020
- Building area:888 sq. ft.
- Lot area:1.46 Acres
Utilities
- Water:Public
- Sewer:Public Sewer
Finances and disclosures
- Price:$439,000
- Price per sq. ft.:$494.37
- Tax amount:$1,520
New listings near 401 Church Street
- New$90,000Active3 beds 1 baths1,076 sq. ft.
580 Us Highway 158 Business E, Warrenton, NC 27589
MLS# 10123316Listed by: BRANCHE & ASSOCIATES LLC - New$169,900Active2 beds 1 baths856 sq. ft.
234 Hayley Street, Warrenton, NC 27589
MLS# 10122121Listed by: THE OCEAN GROUP - $200,000Active3 beds 1 baths
123 King Road, Warrenton, NC 27589
MLS# 10121387Listed by: KELLER WILLIAMS REALTY - $20,000Active2.6 Acres
J9 51b Nc 43 Highway Off, Warrenton, NC 27589
MLS# 10121377Listed by: BRANCHE & ASSOCIATES LLC - $414,900Active3 beds 2 baths1,728 sq. ft.
1004 No Bottom Road, Warrenton, NC 27589
MLS# 100529211Listed by: MOSSY OAK PROPERTIES LAND AND FARMS - $435,000Active3 beds 3 baths2,741 sq. ft.
1083 Richardson Road, Warrenton, NC 27589
MLS# 10119143Listed by: RIG REAL ESTATE LLC - $30,000Active3.78 Acres
7 & 7a Richardson Road, Warrenton, NC 27589
MLS# 10119018Listed by: COLDWELL BANKER ADVANTAGE HEND - $289,900Active49.33 Acres
0 Richardson Road, Warrenton, NC 27589
MLS# 10118318Listed by: COLDWELL BANKER HPW - $605,000Active6 beds 6 baths2,088 sq. ft.
217 N Main Street, Warrenton, NC 27589
MLS# 10117745Listed by: COLDWELL BANKER ADVANTAGE - $314,000Active3 beds 3 baths1,867 sq. ft.
487 Rifle Range Road, Warrenton, NC 27589
MLS# 10117365Listed by: ROCHELLE MOON REALTY