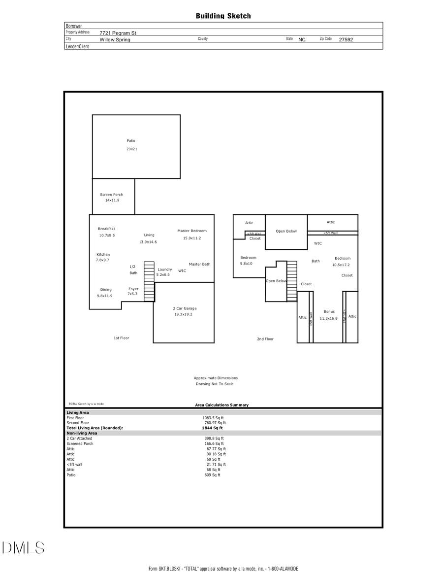
7721 Pegram Street, Willow Spring, NC 27592
Local realty services provided by:Better Homes and Gardens Real Estate Paracle
7721 Pegram Street,Willow Springs, NC 27592
$408,000
- 3 Beds
- 3 Baths
- 1,844 sq. ft.
- Single family
- Active
Listed by: kristi melby
Office: fathom realty nc
MLS#:10158937
Source:RD
Price summary
- Price:$408,000
- Price per sq. ft.:$221.26
- Monthly HOA dues:$14.17
About this home
Welcome to this BEAUTIFULLY UPDATED home in the highly desirable Westmoor community of Willow Spring -- now with a PRICE IMPROVEMENT! Perfectly situated on a FULLY FENCED ½-ACRE LOT, this move-in ready property offers the ideal blend of comfort, space, and exceptional outdoor living.
Inside, you'll find rich HARDWOOD FLOORS throughout the main level, FRESH PAINT, and BRAND-NEW CARPET. The spacious FIRST-FLOOR PRIMARY SUITE features a walk-in closet and relaxing soaking tub, creating the perfect private retreat. The light-filled kitchen showcases GRANITE COUNTERTOPS, abundant cabinetry, warm maple cabinets in a honey/caramel finish, and a sunny breakfast nook surrounded by windows with PREMIUM PLANTATION SHUTTERS.
Upstairs offers two additional bedrooms plus a LARGE BONUS ROOM (approx. 190 sq ft), ideal for a media room, playroom, home office, or FLEX SPACE. Ceiling fans in every bedroom provide year-round comfort.
Step outside to your own BACKYARD RETREAT designed for entertaining and relaxation -- featuring a SCREENED-IN DECK with custom 3-SEASON WINDOWS, expansive 29x21 PATIO, gazebo, HOT TUB, fire pit, storage shed, and plenty of room to gather and unwind.
Additional highlights include:
TANKLESS GAS WATER HEATER
2-CAR GARAGE
FIREPLACE
VAULTED CEILINGS
NEW ROOF (2017)
NEW HVAC UNIT (2025)
Conveniently located just 2 miles from the new Willow Springs High School and approximately 5 miles from the upcoming Target, Academy Village, and Lowe's Foods. USDA ELIGIBLE for 100% FINANCING.
Westmoor is loved for its larger homesites, welcoming community atmosphere, and timeless neighborhood charm -- from Halloween traditions to annual Christmas food drives, this is a place that truly feels like HOME....
Contact an agent
Home facts
- Year built:2005
- Listing ID #:10158937
- Added:47 day(s) ago
- Updated:May 27, 2026 at 03:10 PM
Rooms and interior
- Bedrooms:3
- Total bathrooms:3
- Full bathrooms:2
- Half bathrooms:1
- Rooms Total:7
- Flooring:Carpet, Ceramic Tile, Hardwood, Tile
- Dining Description:Dining L, Eat-in Kitchen
- Bathrooms Description:Bathtub/Shower Combination, Double Vanity, Soaking Tub, Whirlpool Tub
- Kitchen Description:Dishwasher, Free-Standing Electric Range, Microwave, Plumbed For Ice Maker
- Living area:1,844 sq. ft.
Heating and cooling
- Cooling:Ceiling Fan(s), Central Air, Electric, Heat Pump
- Heating:Central, Forced Air, Heat Pump
- Central air:Yes
Structure and exterior
- Roof:Shingle
- Year built:2005
- Building area:1,844 sq. ft.
- Lot area:0.46 Acres
- Lot Features:Back Yard, Front Yard, Private
- Architectural Style:Traditional, Transitional
- Construction Materials:Brick Veneer, Vinyl Siding
- Exterior Features:Awning(s), Deck, Enclosed, Fenced Yard, Fire Pit, Front Porch, Patio, Private Yard, Screened
- Foundation Description:Brick/Mortar
- Levels:Two
Schools
- High school:Wake - Willow Spring
- Middle school:Wake - Herbert Akins Road
- Elementary school:Wake - Willow Springs
Utilities
- Water:Public, Water Connected
- Sewer:Septic Tank
Finances and disclosures
- Price:$408,000
- Price per sq. ft.:$221.26
- Tax amount:$2,320
Features and amenities
- Appliances:Dishwasher, Free-Standing Electric Range, Microwave, Plumbed For Ice Maker, Tankless Water Heater
- Laundry features:Electric Dryer Hookup, Laundry Room, Main Level, Washer Hookup
- Amenities:Ceiling Fan(s), Entrance Foyer, Granite Counters, High Ceilings, Kitchen Island, Smooth Ceilings, Tankless Water Heater, Vaulted Ceiling(s), Walk-In Closet(s)
Parking
- Parking description:Attached, Garage, Garage Door Opener, Garage Faces Front
- Garage:Yes
- Garage spaces:2
New listings near 7721 Pegram Street
- New
$569,900Active4 beds 4 baths3,156 sq. ft.30 Gloria Grande Court, Willow Spring, NC 27592
MLS# 100576825Listed by: RE/MAX SOUTHLAND REALTY II - New
$340,000Active3 beds 2 baths1,416 sq. ft.92 Balsawood Court, Willow Springs, NC 27592
MLS# 10169667Listed by: COLDWELL BANKER HPW - New
$259,900Active3 beds 2 baths1,226 sq. ft.1429 Country Pond Lane, Willow Springs, NC 27592
MLS# 10169467Listed by: JA REALTY & CONSULTING LLC - New
$359,000Active3 beds 3 baths1,984 sq. ft.7304 Singlepond Lane, Willow Springs, NC 27592
MLS# 10169446Listed by: TRIANGLE SPECIALISTS - New
$379,900Active3 beds 2 baths1,850 sq. ft.92 Poston Court, Benson, NC 27504
MLS# 10169041Listed by: LONG & FOSTER REAL ESTATE INC/TRIANGLE EAST - New
$369,990Active4 beds 3 baths2,423 sq. ft.917 Walker Ridge Way, Willow Springs, NC 27592
MLS# 10169055Listed by: ESTEEM PROPERTIES - New
$549,900Active3 beds 3 baths2,192 sq. ft.923 White Memorial Church Road, Willow Springs, NC 27592
MLS# 10168845Listed by: RE/MAX SOUTHLAND REALTY II - New
$514,000Active5 beds 3 baths3,048 sq. ft.545 Freedom Trail Drive, Willow Springs, NC 27592
MLS# 10168709Listed by: KELLER WILLIAMS LEGACY - New
$389,990Active4 beds 3 baths2,718 sq. ft.909 Walker Ridge Way, Willow Springs, NC 27592
MLS# 10168646Listed by: ESTEEM PROPERTIES - New
$565,000Active4 beds 3 baths2,763 sq. ft.8320 Pin Cherry Drive, Willow Springs, NC 27592
MLS# 10168585Listed by: CENTURY 21 TRIANGLE GROUP