7114 65 Street S, Horace, ND 58047
Local realty services provided by:Better Homes and Gardens Real Estate Advantage One
7114 65 Street S,Horace, ND 58047
$46,090
- 0.14 Acres
- Lots / Land
- Active
Listed by: vivian thingelstad, darin milbrath
Office: dakota plains realty
MLS#:6697134
Source:ND_FMAAR
Price summary
- Price:$46,090
About this home
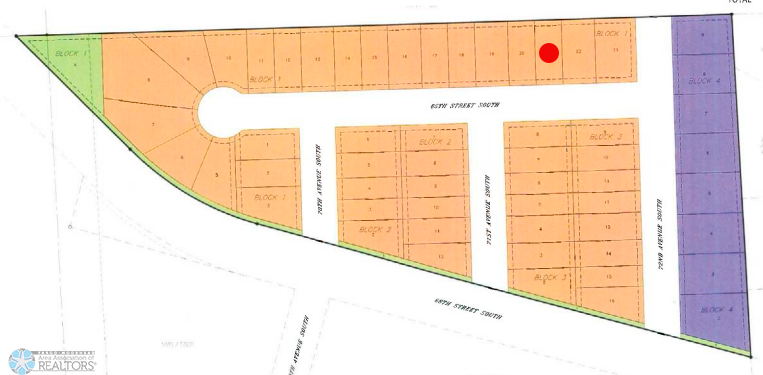
56 Lots to choose from!
Contact an agent
Home facts
- Listing ID #:6697134
- Added:280 day(s) ago
- Updated:January 09, 2026 at 05:04 PM
Structure and exterior
- Lot area:0.14 Acres
Finances and disclosures
- Price:$46,090
- Tax amount:$620
New listings near 7114 65 Street S
- Open Sun, 3 to 4:30pmNew
$349,900Active3 beds 3 baths2,120 sq. ft.8040 Goldfinch Drive, Horace, ND 58047
MLS# 7006114Listed by: EXP REALTY (3788 FGO) - New
$299,900Active3 beds 2 baths1,374 sq. ft.6759 66th Avenue S, Horace, ND 58047
MLS# 7005076Listed by: EXP REALTY (3788 FGO) - New
$352,200Active4 beds 4 baths2,198 sq. ft.6826 Thomas Street, Horace, ND 58047
MLS# 7006119Listed by: RABOIN REALTY - New
$379,900Active4 beds 4 baths2,201 sq. ft.307 7th Street E, Horace, ND 58047
MLS# 7002222Listed by: RABOIN REALTY - New
$312,000Active4 beds 2 baths1,860 sq. ft.6709 69th Avenue S, Horace, ND 58047
MLS# 7004633Listed by: ASPIRE REALTY - New
$594,000Active3 beds 2 baths2,190 sq. ft.291 Liberty Lane, Horace, ND 58047
MLS# 7004296Listed by: JAMES PATRICK REAL ESTATE - New
$299,900Active4 beds 2 baths1,860 sq. ft.6729 67 Avenue S, Horace, ND 58047
MLS# 7005075Listed by: EXP REALTY (3788 FGO) - Open Sun, 3 to 4:30pmNew
Listed by BHGRE$314,900Active3 beds 2 baths1,852 sq. ft.6028 78 Avenue S, Horace, ND 58047
MLS# 7003792Listed by: BETTER HOMES AND GARDENS REAL ESTATE ADVANTAGE ONE - New
$346,400Active4 beds 3 baths1,714 sq. ft.7715 Cub Creek Way, Horace, ND 58047
MLS# 7003577Listed by: OXFORD REALTY (FM) - New
$353,400Active4 beds 3 baths1,714 sq. ft.6289 86th Avenue S, Horace, ND 58047
MLS# 7003585Listed by: OXFORD REALTY (FM)