7 Old Coach Road, Bow, NH 03304
Local realty services provided by:Better Homes and Gardens Real Estate The Masiello Group
7 Old Coach Road,Bow, NH 03304
$399,900
- 3 Beds
- 2 Baths
- 1,144 sq. ft.
- Single family
- Active
Listed by:steve destefano
Office:century 21 circa 72 inc.
MLS#:5064067
Source:PrimeMLS
Price summary
- Price:$399,900
- Price per sq. ft.:$174.78
About this home
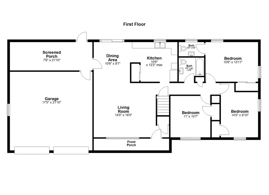
Offer deadline 10/7 at 12:00 pm Location, Location, Location! Welcome to 7 Old Coach Road in the desirable town of Bow. This 3 Bedroom, 1 & 1/ 2 Bath, 2 car garage , Ranch is ready for its new owners. Nice open concept floor plan offers a spacious Living Room and Dining area with hardwood floors and opens to the Kitchen with new vinyl flooring. (The Seller is offering a credit for a new stove to be installed prior to closing. ) Enjoy the 3-Season Porch right off the Dining area, which overlooks the private back yard. There are three Bedrooms all with hard wood floors, and the Primary has an attached 1/2 Bath with new vinyl flooring. The full Bath also has updated flooring. Lower level has plenty of potential for expansion if needed. Fresh paint throughout the interior. Exceptional location in Village Shore Estates neighborhood ,abutting 50 acres of town conservation land. The residents have access to Turee Pond for fishing and boating . Less than 2 miles to the excellent Bow schools. Quick close possible! Schedule your showing today.
Contact an agent
Home facts
- Year built:1970
- Listing ID #:5064067
- Added:4 day(s) ago
- Updated:October 07, 2025 at 05:41 PM
Rooms and interior
- Bedrooms:3
- Total bathrooms:2
- Full bathrooms:1
- Living area:1,144 sq. ft.
Heating and cooling
- Heating:Baseboard, Gas Heater, Hot Water
Structure and exterior
- Roof:Asphalt Shingle
- Year built:1970
- Building area:1,144 sq. ft.
- Lot area:1.02 Acres
Schools
- High school:Bow High School
- Middle school:Bow Memorial School
- Elementary school:Bow Elementary
Utilities
- Sewer:Leach Field, Private
Finances and disclosures
- Price:$399,900
- Price per sq. ft.:$174.78
- Tax amount:$6,879 (2024)
New listings near 7 Old Coach Road
- Open Fri, 5:30 to 6:30pmNew$1,275,000Active5 beds 5 baths6,932 sq. ft.
7 Morgan Drive, Bow, NH 03304
MLS# 5064386Listed by: KELLER WILLIAMS REALTY-METROPOLITAN - New$465,000Active2 beds 1 baths1,092 sq. ft.
5 Rosewood Drive, Bow, NH 03304
MLS# 5064152Listed by: KELLER WILLIAMS REALTY METRO-CONCORD - New$369,900Active2 beds 2 baths1,296 sq. ft.
31 Brown Hill Road, Bow, NH 03304
MLS# 5064044Listed by: CENTURY 21 CIRCA 72 INC. - New$599,000Active2 beds 3 baths1,708 sq. ft.
39 Evangelyn Drive, Bow, NH 03304
MLS# 5063836Listed by: HOMETOWN PROPERTY GROUP - New$515,000Active2 beds 2 baths1,475 sq. ft.
39 Logging Hill Road, Bow, NH 03304
MLS# 5063802Listed by: COLDWELL BANKER LIFESTYLES - $570,000Active5 beds 2 baths2,240 sq. ft.
146 Woodhill Hooksett Road, Bow, NH 03304
MLS# 5062992Listed by: EXP REALTY - $1,250,000Active4 beds 5 baths4,822 sq. ft.
24 Summer Lane, Bow, NH 03304
MLS# 5062903Listed by: COLDWELL BANKER REALTY BEDFORD NH - $499,900Pending3 beds 2 baths2,152 sq. ft.
526 Page Road, Bow, NH 03304
MLS# 5062048Listed by: JASON MITCHELL GROUP - $564,900Active3 beds 2 baths1,966 sq. ft.
13 Cob Road, Bow, NH 03304
MLS# 5061899Listed by: EXP REALTY