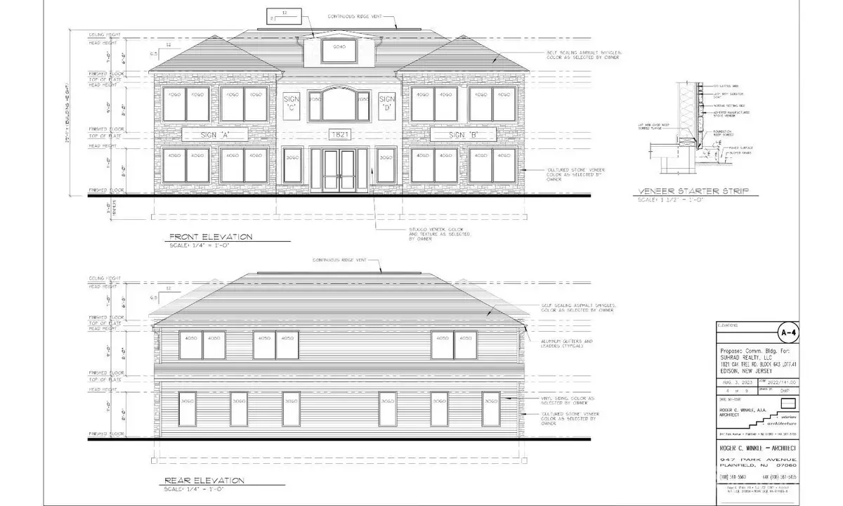
-1821 Oak Tree Road, Edison, NJ 08820
Local realty services provided by:Better Homes and Gardens Real Estate Murphy & Co.
Office: keller williams elite realtors
MLS#:2610366R
Source:NJ_MCMLS
Price summary
- Price:$1,350,000
About this home
Prime Edison Commercial Opportunity | 0.5-Acre Shovel-Ready Site Rare Investment Opportunity in a High-Demand Location Skip the years of bureaucratic delays and red tape. This 100' x 200' (1/2 Acre) vacant lot in the heart of Edison is officially shovel-ready. With the heavy lifting of the approval process already completed, this property is perfect for investors and developers looking to break ground immediately. Property Highlights * Lot Size: 1/2 Acre (100' \times 200') * Total Buildable Area: 5,300 Square Feet * Status: Vacant, level, and ready for construction * Approvals: Full site plans approved. No need to spend time or resources navigating the municipal approval process. * Final Steps: Currently awaiting final utility sign-off. Once cleared, construction can begin instantly. Why This Property? Finding a lot of this size in Edison's central corridor is an extreme rarity. This sale offers a streamlined path to ownership and development without the typical 12-24 month wait for zoning and planning sign permits. This site is uniquely positioned for high-value commercial use, including: * State-of-the-Art Medical Office: Perfect for private practices, or specialty clinics. * Professional Office Suites: Ideal for legal, financial, or corporate headquarters. * Mixed-Use Commercial: Combining professional space with modern utility. > Investor Note: This is a turnkey development sale. The value lies not just in the land, but in the approved plans that allow you to bypass the traditional development timeline....
Contact an agent
Home facts
- Listing ID #:2610366R
- Added:37 day(s) ago
- Updated:March 03, 2026 at 03:53 PM
Structure and exterior
- Lot Features:Near Shopping, Near Train
Finances and disclosures
- Price:$1,350,000
- Tax amount:$7,144
New listings near -1821 Oak Tree Road
- New
$247,000Active2 beds 1 baths896 sq. ft.-334 College Drive, Edison, NJ 08817
MLS# 2612046RListed by: REAL PROPERTY MANAGEMENT ALL-STAR - New
$229,000Active1 beds 1 baths667 sq. ft.-39 Garfield Park Road #B, Edison, NJ 08837
MLS# 2612056RListed by: KELLER WILLIAMS REALTY - Open Sat, 1 to 4pmNew
$699,900Active3 beds 2 bathsAddress Withheld By Seller, Edison, NJ 08817
MLS# 26008160Listed by: RE/MAX LIFETIME REALTORS - Coming SoonOpen Sat, 1 to 4pm
$865,000Coming Soon4 beds 3 baths34 Stratford Cir, Edison Twp., NJ 08820
MLS# 4014059Listed by: EXP REALTY, LLC - Coming Soon
$749,900Coming Soon4 beds 2 baths68 Beechwood Ave, Edison Twp., NJ 08837
MLS# 4014189Listed by: FOX & FOXX REALTY, LLC - New
$445,000Active2 beds 2 baths1,034 sq. ft.-1233 Waterford Drive, Edison, NJ 08817
MLS# 2612019RListed by: KELLER WILLIAMS ELITE REALTORS - Coming SoonOpen Sun, 1 to 4pm
$750,000Coming Soon4 beds 2 baths3788 Park Ave, Edison Twp., NJ 08820
MLS# 4014112Listed by: JACK PEDERSEN REALTY - New
$415,000Active2 beds 2 baths1,034 sq. ft.-517 Waterford Drive, Edison, NJ 08817
MLS# 2611984RListed by: KELLER WILLIAMS CITY VIEWS RLT - Open Sun, 1 to 3pmNew
$325,000Active1 beds 1 baths932 sq. ft.-1518 Raspberry Court, Edison, NJ 08817
MLS# 2611993RListed by: COLDWELL BANKER REALTY - New
Listed by BHGRE$1,785,000Active6 beds 7 baths4,000 sq. ft.-2 Leora Drive, Edison, NJ 08817
MLS# 2612013RListed by: BETTER HOMES&GARDENS RE MATURO