623 Lazy Point Road, Amagansett, NY 11930

Local realty services provided by:Better Homes and Gardens Real Estate Choice Realty
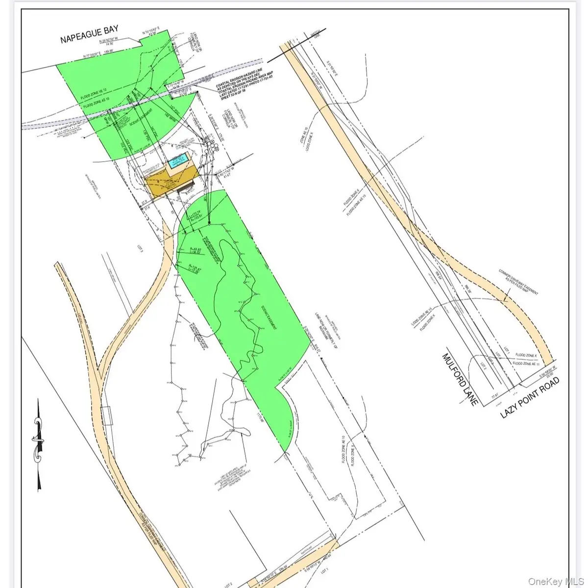
623 Lazy Point Road,Amagansett, NY 11930
$5,500,000
  • 5.46 Acres
  • Lots / Land
  • Active
Listed by: susan m. orioli
Office: engel & volkers north fork
MLS#:957508
Source:OneKey MLS

Price summary

  • Price:$5,500,000

About this home

Set on an extraordinary 5.46 acres of direct bayfront in the coveted Lazy Point enclave of Amagansett, 623 Lazy Point Road presents a truly rare opportunity to own a legacy waterfront holding in one of the Hamptons’ most private and naturally beautiful settings. With sweeping, unobstructed views across the bay and exceptional frontage, the property offers an unmatched sense of scale, serenity, and possibility. The expansive acreage allows for the creation of a substantial estate while still preserving open vistas, privacy, and the tranquil character that defines Lazy Point. Gentle coastal breezes, luminous sunsets, and ever changing water views form the daily backdrop, creating a setting that feels both timeless and secluded. This premier bayfront parcel is ideally positioned for a custom residence designed to maximize light, views, and indoor-outdoor living, with ample room for waterfront amenities and resort style grounds. Located moments from ocean beaches, Amagansett Village, and...

Contact an agent

contact an agent

Yes, I would like more information. Please use and/or share my information with a BHGRE®  affiliated agent to contact me about my real estate needs. By clicking Send message, I request to be contacted by phone or text message and consent to being contacted by automated means. I understand that my consent to receive calls or texts is not a condition of purchasing any property, goods, or services. Alternatively, I understand that I can access real estate services by email or I can contact the agent myself.

If a BHGRE®  affiliated agent is not available in the area where I need assistance, I agree to be contacted by a real estate agent affiliated with another brand owned or licensed by Anywhere Real Estate (CENTURY 21® , Coldwell Banker® , Corcoran® , ERA® , Sotheby's International Realty® ).
 I acknowledge that I have read and agree to theTerms of useandPrivacy notice

Home facts

  • Listing ID #:957508
  • Added:44 day(s) ago
  • Updated:March 27, 2026 at 01:28 AM

Structure and exterior

  • Lot area:5.46 Acres
  • Lot Features:Level, Wooded

Schools

  • High school:Amagansett School
  • Middle school:Amagansett School
  • Elementary school:Amagansett School

Finances and disclosures

  • Price:$5,500,000
  • Tax amount:$2,814 (2025)
Copyright 2026 OneKey MLS. All rights reserved. Listings courtesy of OneKey MLS as distributed by MLS GRID <lastMLSCheckTimestamp>. OneKey MLS provides content displayed here (“provided content”) on an “as is” basis and makes no representations or warranties regarding the provided content, including, but not limited to those of non-infringement, timeliness, accuracy, or completeness. Individuals and companies using information presented are responsible for verification and validation of information they utilize and present to their customers and clients. OneKey MLS will not be liable for any damage or loss resulting from use of the provided content or the products available through Portals, IDX, VOW, and/or Syndication. Recipients of this information shall not resell, redistribute, reproduce, modify, or otherwise copy any portion thereof without the expressed written consent of OneKey MLS.