4215 204th Street, Bayside, NY 11361

Local realty services provided by:Better Homes and Gardens Real Estate Green Team
4215 204th Street,Bayside, NY 11361
$1,180,000
  • 6 Beds
  • 3 Baths
  • 2,268 sq. ft.
  • Single family
  • Pending
Listed by: lei shi, grace lin
Office: jamie realty group
MLS#:906776
Source:OneKey MLS

Price summary

  • Price:$1,180,000
  • Price per sq. ft.:$449.87

About this home

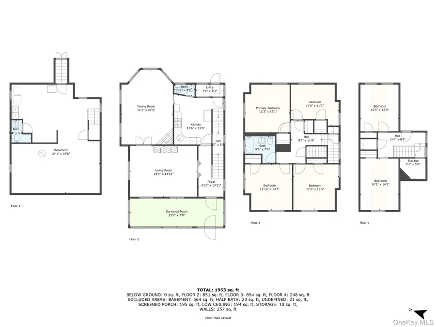
Charming Bayside Detached Colonial – 6BR/3BA Spacious and well-maintained 6-bedroom, 2.5-bath Colonial situated on a quiet, tree-lined street in Bayside. Offering 2,268 sq. ft. of living space, this home features high ceilings throughout all floors, hardwood floors, moderate-sized bedrooms, newly updated bathrooms, two fireplaces, a wood beam ceiling in the dining room, etc. First floor has a welcoming front porch, a cozy living room, a formal dining room, a kitchen, and a half bathroom. The second floor features 4 moderate-sized bedrooms with big closets in each, and a full bathroom Finished Attic provides two extra rooms that can be used as a playroom and a guest bedroom Enjoy a private backyard along with a detached 2-car garage and driveway on a 4,000 sq. ft. lot. Located in the highly preferred Bayside area, the neighborhood offers peaceful residential living with convenient access to shopping, dining, and walking distance to the LIRR Auburndale, which takes just 25 minutes to

Contact an agent

contact an agent

Yes, I would like more information. Please use and/or share my information with a BHGRE®  affiliated agent to contact me about my real estate needs. By clicking Send message, I request to be contacted by phone or text message and consent to being contacted by automated means. I understand that my consent to receive calls or texts is not a condition of purchasing any property, goods, or services. Alternatively, I understand that I can access real estate services by email or I can contact the agent myself.

If a BHGRE®  affiliated agent is not available in the area where I need assistance, I agree to be contacted by a real estate agent affiliated with another brand owned or licensed by Anywhere Real Estate (CENTURY 21® , Coldwell Banker® , Corcoran® , ERA® , Sotheby's International Realty® ).
 I acknowledge that I have read and agree to theTerms of useandPrivacy notice

Home facts

  • Year built:1925
  • Listing ID #:906776
  • Added:166 day(s) ago
  • Updated:February 12, 2026 at 12:28 PM

Rooms and interior

  • Bedrooms:6
  • Total bathrooms:3
  • Full bathrooms:2
  • Half bathrooms:1
  • Living area:2,268 sq. ft.

Heating and cooling

  • Heating:Oil

Structure and exterior

  • Year built:1925
  • Building area:2,268 sq. ft.
  • Lot area:0.09 Acres

Schools

  • High school:Bayside High School
  • Middle school:Is 25 Adrien Block
  • Elementary school:Ps 31 Bayside

Utilities

  • Water:Public
  • Sewer:Public Sewer

Finances and disclosures

  • Price:$1,180,000
  • Price per sq. ft.:$449.87
  • Tax amount:$4,706 (2024)
Copyright 2026 OneKey MLS. All rights reserved. Listings courtesy of OneKey MLS as distributed by MLS GRID <lastMLSCheckTimestamp>. OneKey MLS provides content displayed here (“provided content”) on an “as is” basis and makes no representations or warranties regarding the provided content, including, but not limited to those of non-infringement, timeliness, accuracy, or completeness. Individuals and companies using information presented are responsible for verification and validation of information they utilize and present to their customers and clients. OneKey MLS will not be liable for any damage or loss resulting from use of the provided content or the products available through Portals, IDX, VOW, and/or Syndication. Recipients of this information shall not resell, redistribute, reproduce, modify, or otherwise copy any portion thereof without the expressed written consent of OneKey MLS.