Lot #17 Bee Blossum Court, Slate Hill, NY 10973
Local realty services provided by:Better Homes and Gardens Real Estate Shore & Country Properties
Listed by:christopher m ogden
Office:realty promotions inc
MLS#:914185
Source:OneKey MLS
Price summary
- Price:$862,900
- Price per sq. ft.:$252.16
About this home
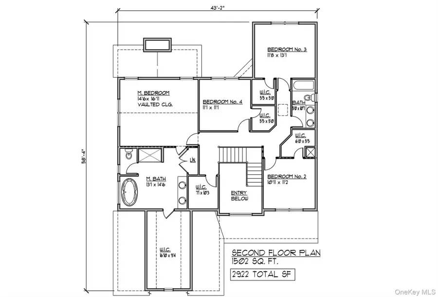
Beautiful new construction being built in Ridgebury Estates, a new community of carefully crafted colonials perched high on a hill with tree-lined streets, stone walls and lots of open space. Situated in the heart of Orange County, NY and in the highly sought-after Minisink Valley School District. Discover the perfect blend of elegance and function in The Caraway II, a thoughtfully designed home featuring four spacious bedrooms, 2.5 bathrooms, and a layout ideal for today’s lifestyle. Step inside to find rich red hardwood floors throughout the main level, along with central A/C and a cozy fireplace that anchors the family room—perfect for relaxing evenings. The open-concept kitchen is a true centerpiece, featuring a center island, custom cabinetry, quartz countertops, decorative tile backsplash, stainless steel appliances, and a pantry for added storage. Sliding glass doors lead to the back deck, making outdoor dining and entertaining a breeze. The first floor also includes a formal dining room, a separate living room, a convenient half bath, and a laundry room for added practicality. Upstairs, the oversized primary suite offers a luxurious escape with vaulted ceilings, a spacious walk-in closet, and a private bathroom complete with double vanity, tiled shower, and a relaxing soaking tub. Three additional bedrooms—all with walk-in closets—provide generous space for family, guests, or a home office. A two-car garage completes the home, offering both convenience and curb appeal. The Caraway II is designed for comfort, flexibility, and timeless appeal—ready to welcome you home.
Contact an agent
Home facts
- Year built:2025
- Listing ID #:914185
- Added:9 day(s) ago
- Updated:September 26, 2025 at 08:40 PM
Rooms and interior
- Bedrooms:4
- Total bathrooms:3
- Full bathrooms:2
- Half bathrooms:1
- Living area:3,422 sq. ft.
Heating and cooling
- Cooling:Central Air
- Heating:Forced Air
Structure and exterior
- Year built:2025
- Building area:3,422 sq. ft.
- Lot area:0.7 Acres
Schools
- High school:Minisink Valley High School
- Middle school:Minisink Valley Middle School
- Elementary school:Minisink Valley Elementary
Utilities
- Water:Well
- Sewer:Septic Tank
Finances and disclosures
- Price:$862,900
- Price per sq. ft.:$252.16
- Tax amount:$15,478 (2025)
New listings near Lot #17 Bee Blossum Court
- New$826,900Active4 beds 4 baths3,695 sq. ft.
Lot #23 Azalea Lane, Slate Hill, NY 10973
MLS# 914467Listed by: REALTY PROMOTIONS INC - New$849,900Active4 beds 3 baths3,358 sq. ft.
Lot #25 Azalea Lane, Slate Hill, NY 10973
MLS# 914469Listed by: REALTY PROMOTIONS INC - New$862,900Active4 beds 3 baths3,422 sq. ft.
Lot #26 Azalea Lane, Slate Hill, NY 10973
MLS# 914478Listed by: REALTY PROMOTIONS INC - New$826,900Active4 beds 4 baths3,695 sq. ft.
Lot #20 Bee Blossom Court, Slate Hill, NY 10973
MLS# 914253Listed by: REALTY PROMOTIONS INC - New$799,900Active4 beds 3 baths3,159 sq. ft.
Lot #21 Azalea Lane, Slate Hill, NY 10973
MLS# 914262Listed by: REALTY PROMOTIONS INC - New$868,900Active4 beds 3 baths3,438 sq. ft.
Lot #18 Bee Blossom Court, Slate Hill, NY 10973
MLS# 914198Listed by: REALTY PROMOTIONS INC - New$799,900Active4 beds 3 baths3,159 sq. ft.
Lot #19 Bee Blossom Court, Slate Hill, NY 10973
MLS# 914228Listed by: REALTY PROMOTIONS INC - New$768,900Active4 beds 3 baths2,856 sq. ft.
Lot #10 Azalea Lane, Slate Hill, NY 10973
MLS# 914142Listed by: REALTY PROMOTIONS INC - New$775,900Active4 beds 3 baths2,977 sq. ft.
Lot #11 Azalea Lane, Slate Hill, NY 10973
MLS# 914153Listed by: REALTY PROMOTIONS INC - New$849,900Active4 beds 3 baths3,358 sq. ft.
Lot #16 Bee Blossom Court, Slate Hill, NY 10973
MLS# 914172Listed by: REALTY PROMOTIONS INC