Sprague Road, Berea, OH 44017
Local realty services provided by:Better Homes and Gardens Real Estate Central
Sprague Road,Berea, OH 44017
$279,900
- 0.49 Acres
- Lots / Land
- Active
Listed by: ryan a corrao, mark e vittardi
Office: century 21 depiero & associates, inc.
MLS#:5192975
Source:OH_NORMLS
Price summary
- Price:$279,900
About this home
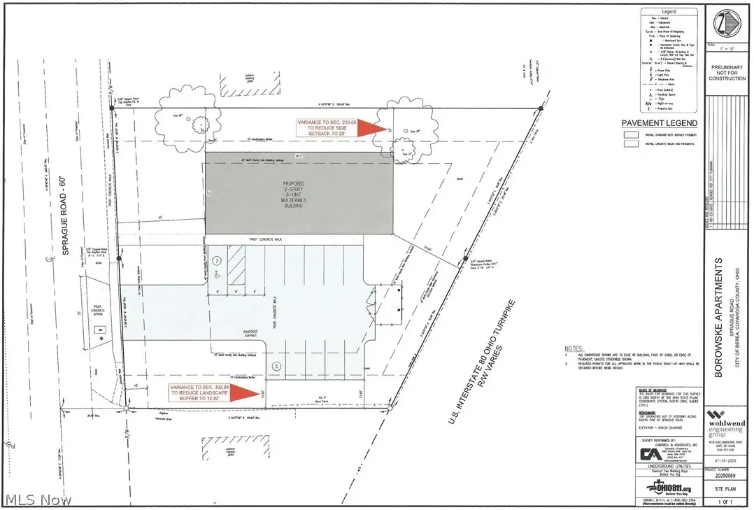
Prime Multifamily Development Opportunity in Berea! This cleared and build-ready vacant lot is newly zoned for multifamily use and offers an exceptional opportunity for investors or developers. The City has already approved plans for a 6-unit apartment building, with parking, landscaping, and all required variances completed, saving you valuable time, expense, and uncertainty in the development process. Located in the City of Berea, this property qualifies for a valuable 15-year tax abatement, providing significant long-term savings and enhancing your investment returns. The lot is shovel-ready, allowing you to move directly into construction. Positioned just minutes from the exciting new Cleveland Browns development planned nearby, this location offers strong future growth potential and increased demand for quality housing in the area. Whether you're expanding your rental portfolio or launching your next development project, this fully approved multifamily lot is a rare opportunity in a desirable Berea location. Bring your builder and start building today!...
Contact an agent
Home facts
- Listing ID #:5192975
- Added:56 day(s) ago
- Updated:May 08, 2026 at 02:15 PM
Structure and exterior
- Lot area:0.49 Acres
Utilities
- Water:Public
- Sewer:Public Sewer
Finances and disclosures
- Price:$279,900
- Tax amount:$900 (2025)
New listings near Sprague Road
- New
$540,000Active5 beds 4 baths3,800 sq. ft.82 Stonesthrow Drive, Berea, OH 44017
MLS# 5207225Listed by: OHIO BROKER DIRECT - New
$209,000Active3 beds 1 baths1,040 sq. ft.255 Buckeye Drive, Berea, OH 44017
MLS# 5207842Listed by: CHOSEN REAL ESTATE GROUP - New
$299,900Active4 beds 2 baths2,068 sq. ft.522 Merrimak Drive, Berea, OH 44017
MLS# 5204692Listed by: KELLER WILLIAMS ELEVATE
$300,000Pending5 beds 3 baths3,032 sq. ft.142 E Bridge Street, Berea, OH 44017
MLS# 5205144Listed by: FATHOM REALTY- New
$280,000Active3 beds 2 baths2,179 sq. ft.50 Baker Street, Berea, OH 44017
MLS# 5206250Listed by: RE/MAX ABOVE & BEYOND - New
$379,000Active3 beds 3 baths2,060 sq. ft.157 Stone Ridge Way, Berea, OH 44017
MLS# 5198947Listed by: KELLER WILLIAMS CITYWIDE - New
$225,000Active3 beds 3 baths1,310 sq. ft.93 W 5th Avenue, Berea, OH 44017
MLS# 5205571Listed by: BERKSHIRE HATHAWAY HOMESERVICES STOUFFER REALTY
$215,000Pending4 beds 2 baths1,170 sq. ft.338 N Rocky River Drive, Berea, OH 44017
MLS# 5204489Listed by: GLASSHOUSE REALTY GROUP, LLC
$240,000Pending3 beds 2 baths1,524 sq. ft.760 Trotter Lane, Berea, OH 44017
MLS# 5203060Listed by: EXP REALTY, LLC.
$85,000Pending1 beds 1 baths556 sq. ft.115 S Rocky River Drive #303, Berea, OH 44017
MLS# 5202875Listed by: KELLER WILLIAMS CHERVENIC RLTY