11802 S Hickory Lane, Claremore, OK 74017
Local realty services provided by:Better Homes and Gardens Real Estate Green Country
11802 S Hickory Lane,Claremore, OK 74017
$700,000
- 5 Beds
- 5 Baths
- 4,544 sq. ft.
- Single family
- Active
Listed by: brenda foulks
Office: solid rock, realtors
MLS#:2604957
Source:OK_NORES
Price summary
- Price:$700,000
- Price per sq. ft.:$154.05
About this home
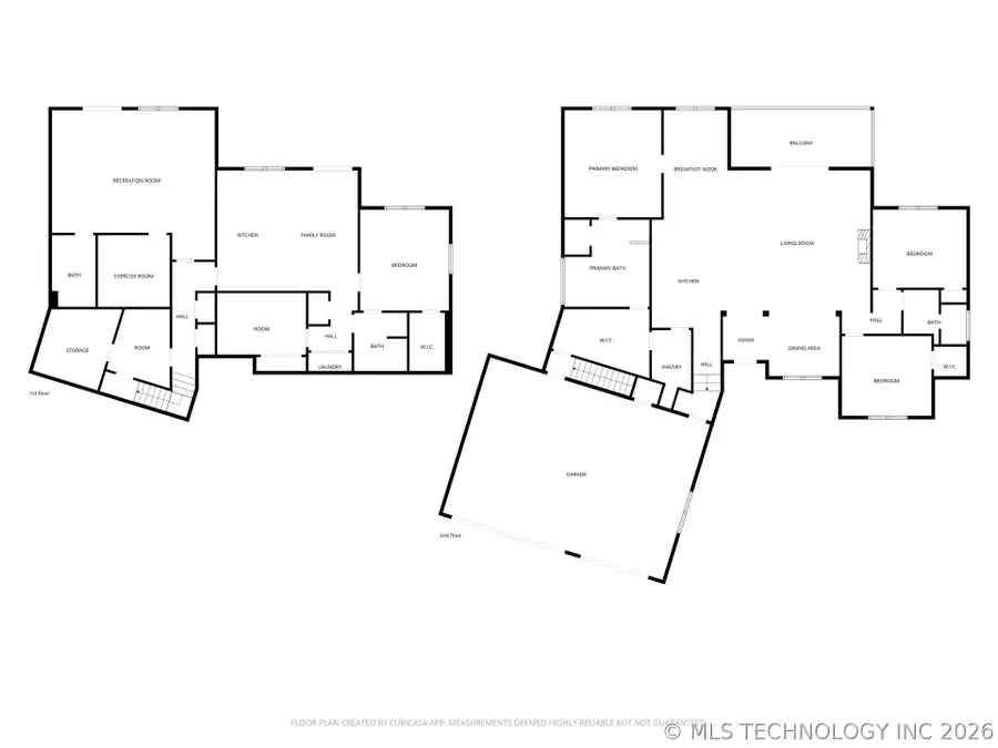
Beautiful custom built home with a full finished basement. Has 6" wood
frame and 12" concrete exterior walls. Half of the basement is a two
bedrooms with kitchen/living area with a full bathroom and laundry
room and covered walk out patio. The other half has a 1/2 bathroom,
but is plumbed so a shower can be installed and has two rooms and a
double door to go outside. So many options, entertainment, home school,
hobbies, den, office, etc.
Main living area has an amazing walk out covered balcony with 9' glass
pocket door, that lets you enjoy the beautiful weather. Spacious
living room and kitchen. Wait until you see the pantry, your smaller
appliances have their own shelf with outlets and lots of storage.
When the plumbing was install, they did a water loop that gives
instant hot water anywhere in the home. Both house and shop have 400
amp electric. The house also has extra installation in walls and
ceiling. Granite counter tops throughout the house.
A 2 garage car with shop attached, shop has heat and air, with a half
bath. It is ideal for any hobbies.
ATV trails, creek, area for picnics, etc....
Contact an agent
Home facts
- Year built:2018
- Listing ID #:2604957
- Added:214 day(s) ago
- Updated:April 26, 2026 at 03:08 PM
Rooms and interior
- Bedrooms:5
- Total bathrooms:5
- Full bathrooms:3
- Flooring:Tile, Wood
- Kitchen Description:Dishwasher, Microwave, Refrigerator
- Basement:Yes
- Basement Description:Finished, Full, Walk-Out Access
- Living area:4,544 sq. ft.
Heating and cooling
- Cooling:3+ Units, Central Air
- Heating:Central, Gas
Structure and exterior
- Year built:2018
- Building area:4,544 sq. ft.
- Lot area:4.61 Acres
- Lot Features:Mature Trees, Wooded
- Construction Materials:Hardiplank Type, Stone, Wood Frame
- Foundation Description:Slab
Schools
- High school:Foyil
- Elementary school:Foyil
Finances and disclosures
- Price:$700,000
- Price per sq. ft.:$154.05
- Tax amount:$4,284 (2025)
Features and amenities
- Appliances:Built-In Oven, Built-In Range, Dishwasher, Gas Water Heater, Microwave, Oven, Range, Refrigerator
- Amenities:Ceiling Fan(s), High Ceilings, High Speed Internet, Insulated Window, Programmable Thermostat, Safe Room Interior, Security System - Owned, Smoke Detector(s), Vaulted Ceiling(s), Vinyl Windows
Parking
- Garage:Yes
- Garage spaces:5
New listings near 11802 S Hickory Lane
- New
$285,000Active3 beds 2 baths1,673 sq. ft.20805 S 4110 Road, Claremore, OK 74019
MLS# 2614008Listed by: MCGRAW, REALTORS - New
$359,900Active3 beds 2 baths2,144 sq. ft.18912 Spring Creek Lane, Claremore, OK 74017
MLS# 2614849Listed by: KELLER WILLIAMS PREMIER
$100,000Pending55.63 Acres4200 Road, Claremore, OK 74017
MLS# 2614873Listed by: COLDWELL BANKER SELECT- New
$1,150,000Active4 beds 4 baths2,325 sq. ft.16881 S 4220 Road, Claremore, OK 74017
MLS# 2614583Listed by: OKLAHOMES REALTY, INC.
$249,900Pending3 beds 2 baths1,460 sq. ft.25406 S Valley Drive, Claremore, OK 74019
MLS# 2614796Listed by: SOLID ROCK, REALTORS- New
$235,000Active3 beds 2 baths1,493 sq. ft.2503 Parkwood Drive, Claremore, OK 74017
MLS# 2614474Listed by: KELLER WILLIAMS PREMIER - Open Sun, 2 to 4pmNew
$259,000Active4 beds 2 baths1,850 sq. ft.619 N Florence Avenue, Claremore, OK 74017
MLS# 2614723Listed by: SOLID ROCK, REALTORS - New
$249,900Active3 beds 2 baths1,625 sq. ft.1810 Walnut Hill Lane, Claremore, OK 74019
MLS# 2614205Listed by: MAYES COUNTY REAL ESTATE - New
$675,000Active3 beds 3 baths2,451 sq. ft.3300 Holly Road, Claremore, OK 74019
MLS# 2614702Listed by: PEMBROOK REALTY GROUP - New
$130,000Active4.25 Acres1 Holly Road, Claremore, OK 74019
MLS# 2614712Listed by: PEMBROOK REALTY GROUP