2908 NW 196th Place, Edmond, OK 73012
Local realty services provided by:Better Homes and Gardens Real Estate Paramount
Listed by: john burris
Office: central oklahoma real estate
MLS#:1223525
Source:OK_OKC
2908 NW 196th Place,Edmond, OK 73012
$265,900
- 3 Beds
- 2 Baths
- 1,347 sq. ft.
- Single family
- Active
Price summary
- Price:$265,900
- Price per sq. ft.:$197.4
About this home
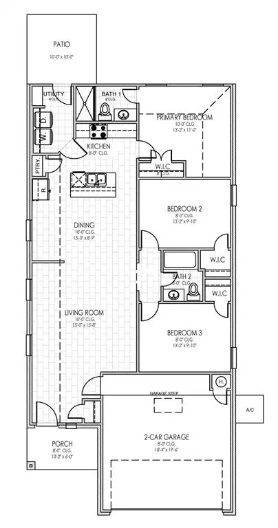
This beautiful home could be just right for you! It has a great flow to it
as soon as you enter. You will love the wood tile that flows throughout
the main areas, tying the rooms together seamlessly. The living room is
spacious and flows into the dining room, which is more than able to hold a
large table. The kitchen features custom cabinets, quartz tops, a big
island with a deep undercounter sink, stainless Samsung appliances and
more. The primary bathroom comes with a beautiful floor to ceiling shower
and vanity with quartz top. The spare bedrooms are both roomy with big
closets. Great location and very energy efficient home!
Contact an agent
Home facts
- Year built:2026
- Listing ID #:1223525
- Added:1 day(s) ago
- Updated:April 11, 2026 at 04:16 AM
Rooms and interior
- Bedrooms:3
- Total bathrooms:2
- Full bathrooms:2
- Rooms Total:2
- Flooring:Carpet, Combo, Tile
- Kitchen Description:Dishwasher, Disposal, Microwave
- Living area:1,347 sq. ft.
Heating and cooling
- Cooling:Central Electric
Structure and exterior
- Year built:2026
- Building area:1,347 sq. ft.
- Lot area:0.1 Acres
- Lot Features:Interior Lot
- Architectural Style:Traditional
- Construction Materials:Brick & Frame
- Exterior Features:Covered Porch, Patio - Open
- Foundation Description:Slab
Schools
- High school:Deer Creek HS
- Middle school:Deer Creek MS
- Elementary school:Rose Union ES
Utilities
- Water:Public
Finances and disclosures
- Price:$265,900
- Price per sq. ft.:$197.4
Features and amenities
- Appliances:Dishwasher, Disposal, Microwave
- Laundry features:Laundry Room
- Amenities:Combo Woodwork
Parking
- Parking description:Concrete
- Garage:Yes
- Garage spaces:2
New listings near 2908 NW 196th Place
- New
$241,000Active4 beds 3 baths2,116 sq. ft.3416 Walking Sky Road, Edmond, OK 73013
MLS# 1190928Listed by: RE/MAX PROS - New
$479,900Active4 beds 3 baths2,450 sq. ft.3000 Grapevine Street, Edmond, OK 73034
MLS# 1223623Listed by: REALTY EXPERTS, INC - New
$659,900Active4 beds 4 baths2,802 sq. ft.1533 Sadie Creek Road, Edmond, OK 73034
MLS# 1223475Listed by: MCGRAW REALTORS (BO) - New
$365,000Active4 beds 3 baths2,221 sq. ft.1717 Redland Drive, Edmond, OK 73003
MLS# 1223610Listed by: CENTURY 21 JUDGE FITE COMPANY - Open Sat, 2 to 4pmNew
$420,000Active4 beds 3 baths2,675 sq. ft.6113 NW 160th Terrace, Edmond, OK 73013
MLS# 1222934Listed by: KELLER WILLIAMS CENTRAL OK ED - New
$277,500Active3 beds 2 baths1,496 sq. ft.4225 NW 151 Street, Edmond, OK 73013
MLS# 1223460Listed by: CHALK REALTY LLC - New
$329,900Active3 beds 3 baths1,787 sq. ft.508 NW 177th Terrace, Edmond, OK 73012
MLS# 1223516Listed by: COPPER CREEK REAL ESTATE - Open Sat, 2 to 4pmNew
$290,000Active4 beds 2 baths2,042 sq. ft.608 NW 174th Street, Edmond, OK 73012
MLS# 1223551Listed by: BAILEE & CO. REAL ESTATE - New
$279,900Active4 beds 3 baths2,151 sq. ft.2700 Woodhollow Trail, Edmond, OK 73012
MLS# 1223580Listed by: LEONARD REALTY - New
$225,000Active1.26 Acres3201 Oakdale Ridge Court, Edmond, OK 73013
MLS# 1223588Listed by: METRO FIRST EXECUTIVES