8251 SE Woodlawn Road, Lawton, OK 73501
Local realty services provided by:Better Homes and Gardens Real Estate Paramount
8251 SE Woodlawn Road,Lawton, OK 73501
$295,000
- 2 Beds
- 2 Baths
- 1,800 sq. ft.
- Single family
- Pending
Listed by: tanya daniels
Office: pebbles real estate
MLS#:2607708
Source:OK_NORES
Price summary
- Price:$295,000
- Price per sq. ft.:$163.89
About this home
5 Acres — You’ll find plenty of space to relax and enjoy country living in this, 2-bedroom, 2-bath home with an attached 2-car carport with storage. Inside, you’ll enjoy the open living, kitchen, and dining area that makes everyday living and family gatherings easy.
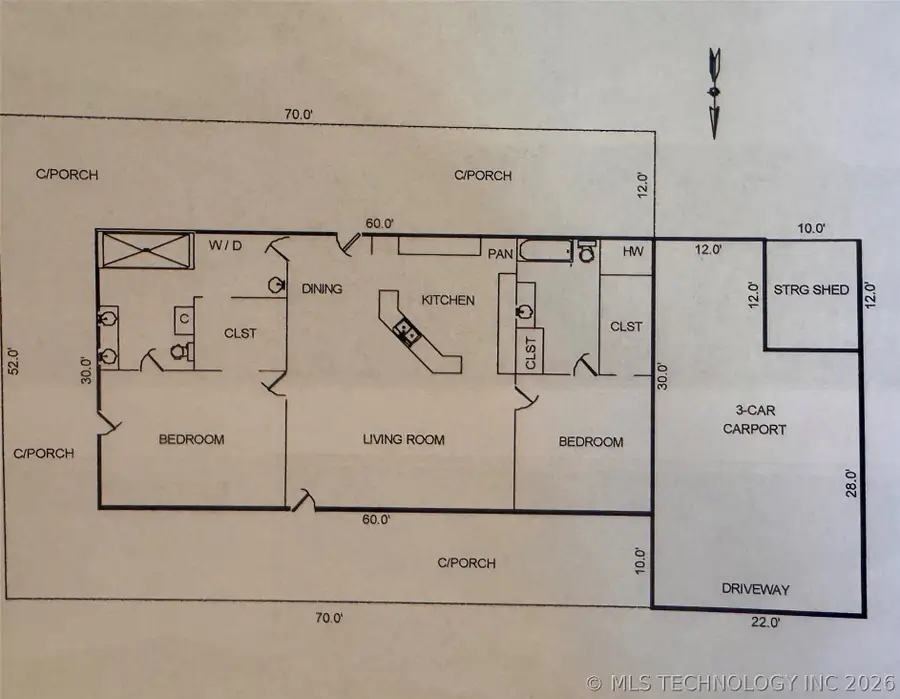
The layout (see attached floor plan in the pictures) features two large primary bedrooms on opposite sides of the home, giving everyone their own space and privacy. Each suite includes a large bathroom and a large walk-in closet.
Step outside and enjoy the wrap-around porch—perfect for morning coffee, evening sunsets, or simply taking in the peaceful surroundings. There’s also a hot tub for unwinding at the end of the day.
The property also includes a large shop/barn with both a dedicated shop area and a separate section set up for livestock. With water and electricity already in place, it’s ideal for projects, hobbies, or raising animals. The livestock area would be perfect anyone involved in FFA or 4-H, giving them space to keep and care for their animals right at home. Barn size 47X35 mol animal section 12X35 WELCOME HOME...
Contact an agent
Home facts
- Year built:2017
- Listing ID #:2607708
- Added:58 day(s) ago
- Updated:May 12, 2026 at 07:45 AM
Rooms and interior
- Bedrooms:2
- Total bathrooms:2
- Full bathrooms:2
- Rooms Total:1
- Flooring:Concrete
- Kitchen Description:Dishwasher, Microwave, Refrigerator
- Living area:1,800 sq. ft.
Heating and cooling
- Cooling:Central Air
- Heating:Central, Electric
Structure and exterior
- Year built:2017
- Building area:1,800 sq. ft.
- Lot area:5 Acres
- Construction Materials:Steel, Wood Frame
- Foundation Description:Slab
Schools
- High school:Lawton
- Elementary school:Sullivan Village
Finances and disclosures
- Price:$295,000
- Price per sq. ft.:$163.89
- Tax amount:$1,500 (2025)
Features and amenities
- Appliances:Dishwasher, Electric Water Heater, Microwave, Oven, Range, Refrigerator, Stove
- Amenities:Ceiling Fan(s), Programmable Thermostat, Smoke Detector(s), Vinyl Windows
- Pool features:Above Ground
Parking
- Garage:Yes
- Garage spaces:2
New listings near 8251 SE Woodlawn Road
- New
$113,000Active3 beds 1 baths894 sq. ft.5326 NW Columbia Avenue, Lawton, OK 73505
MLS# 1228152Listed by: PR AGENCY, LLC - New
$334,000Active2 beds 2 baths1,200 sq. ft.1403 SW Bishop Avenue, Lawton, OK 73501
MLS# 1224395Listed by: CADENCE REAL ESTATE - New
$406,000Active4 beds 3 baths2,237 sq. ft.3914 NE Shenandoah Drive, Lawton, OK 73507
MLS# 1227832Listed by: HEATHER & COMPANY REALTY GROUP - New
$500,000Active6 beds 3 baths3,700 sq. ft.594 NE Valley View Road, Lawton, OK 73507
MLS# 1227413Listed by: SALT REAL ESTATE INC - New
$162,500Active4 beds 2 baths1,236 sq. ft.4631 SW J Avenue, Lawton, OK 73505
MLS# 1226115Listed by: ARISTON REALTY LLC - New
$374,900Active4 beds 2 baths2,494 sq. ft.460 NW Cheyenne Drive, Lawton, OK 73507
MLS# 1227158Listed by: COLE PROPERTIES - New
$245,000Active3 beds 2 baths2,310 sq. ft.715 SW Englewood Drive, Lawton, OK 73505
MLS# 1227281Listed by: GOLDEN CREEK REALTY - New
$205,000Active4 beds 3 baths2,155 sq. ft.1510 NW 49th Street, Lawton, OK 73505
MLS# 1227227Listed by: INREACH REALTY GROUP
$199,000Active2.28 AcresNW Kiowa Drive, Lawton, OK 73507
MLS# 1226818Listed by: SALT REAL ESTATE INC
$419,000Active8.62 Acres195 NW Cheyenne Drive, Lawton, OK 73507
MLS# 1226813Listed by: SALT REAL ESTATE INC