1820 Pin Cherry Lane, Moore, OK 73160
Local realty services provided by:Better Homes and Gardens Real Estate The Platinum Collective
Listed by: john burris
Office: central oklahoma real estate
MLS#:1211237
Source:OK_OKC
1820 Pin Cherry Lane,Moore, OK 73160
$316,815
- 3 Beds
- 2 Baths
- 1,722 sq. ft.
- Single family
- Active
Price summary
- Price:$316,815
- Price per sq. ft.:$183.98
About this home
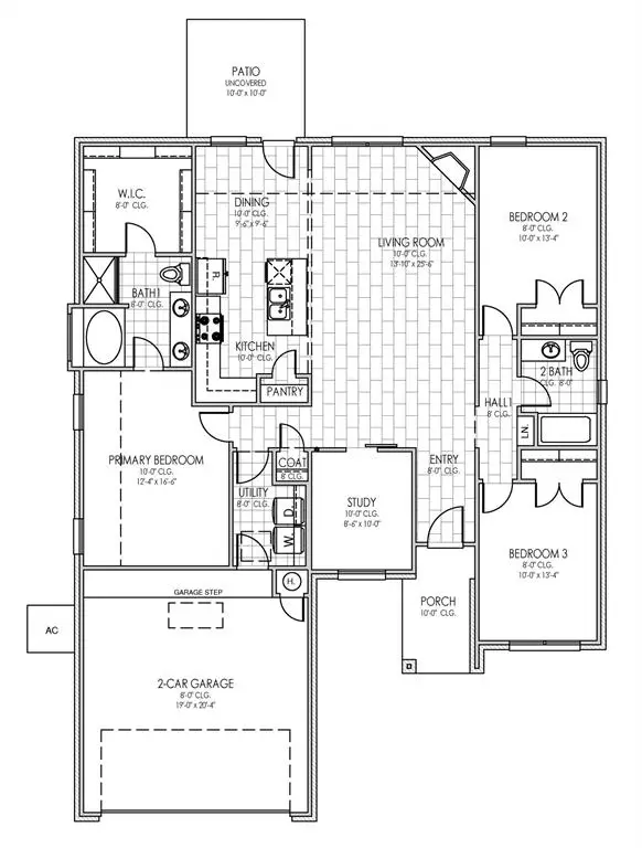
This stunning open-concept home offers a perfect blend of comfort and style with a split floor plan featuring three bedrooms, two bathrooms, and a versatile study accented by a beautiful barn door. The spacious living room welcomes natural light through large sunny windows and showcases a gorgeous fireplace, creating a warm and inviting atmosphere.
The kitchen is a true centerpiece, boasting a large island ideal for entertaining, granite or quartz countertops, and custom-built quiet-close cabinets that combine functionality with sophistication.
The primary suite offers elegant tray ceilings, a private retreat with a luxurious bathroom that includes a separate shower, a relaxing garden tub, and a generous walk-in closet.
With thoughtful design details and modern finishes throughout, this home offers both elegance and everyday convenience—perfect for comfortable living and stylish entertaining.
Contact an agent
Home facts
- Year built:2026
- Listing ID #:1211237
- Added:91 day(s) ago
- Updated:April 24, 2026 at 12:48 PM
Rooms and interior
- Bedrooms:3
- Total bathrooms:2
- Full bathrooms:2
- Rooms Total:2
- Flooring:Carpet, Combo, Tile
- Kitchen Description:Dishwasher, Disposal, Microwave
- Living area:1,722 sq. ft.
Heating and cooling
- Cooling:Central Electric
- Heating:Central Gas
Structure and exterior
- Roof:Architecural Shingle
- Year built:2026
- Building area:1,722 sq. ft.
- Lot area:0.15 Acres
- Lot Features:Interior Lot
- Architectural Style:Traditional
- Construction Materials:Brick & Frame
- Exterior Features:Covered Porch
- Foundation Description:Slab
Schools
- High school:Moore HS
- Middle school:Highland East JHS
- Elementary school:Heritage Trails ES
Utilities
- Water:Public
Finances and disclosures
- Price:$316,815
- Price per sq. ft.:$183.98
Features and amenities
- Appliances:Dishwasher, Disposal, Microwave
- Laundry features:Laundry Room
- Amenities:Ceiling Fans(s), Combo Woodwork
Parking
- Parking description:Concrete
- Garage:Yes
- Garage spaces:2
New listings near 1820 Pin Cherry Lane
- New
$299,500Active3 beds 3 baths2,232 sq. ft.225 SE 27th Street, Moore, OK 73160
MLS# 1224726Listed by: REALTY OF AMERICA LLC - New
$230,000Active3 beds 2 baths1,466 sq. ft.4101 Madison Avenue, Moore, OK 73160
MLS# 1225767Listed by: BRIX REALTY - Open Sun, 2 to 4pmNew
$254,000Active3 beds 2 baths1,497 sq. ft.846 SW 14th Street, Moore, OK 73160
MLS# 1225499Listed by: HEATHER & COMPANY REALTY GROUP - New
$259,900Active3 beds 2 baths1,641 sq. ft.1800 NE 32nd Street, Moore, OK 73160
MLS# 1225719Listed by: REALTY EXPERTS, INC - New
$342,000Active3 beds 2 baths2,182 sq. ft.2121 SW 30th Street, Oklahoma City, OK 73119
MLS# 1225151Listed by: MAVEN REAL ESTATE - New
$169,900Active3 beds 2 baths1,130 sq. ft.1040 NW 10th Street, Moore, OK 73160
MLS# 1225535Listed by: WHITTINGTON REALTY
$200,000Pending4 beds 2 baths1,078 sq. ft.102 Oakside Drive, Moore, OK 73160
MLS# 1225540Listed by: NINE NORTH REAL ESTATE- New
$119,196Active3 beds 3 baths946 sq. ft.1520 N Janeway Avenue, Moore, OK 73160
MLS# 1225362Listed by: GAME CHANGER REAL ESTATE - New
$235,000Active3 beds 2 baths1,589 sq. ft.1521 NE 2nd Street, Moore, OK 73160
MLS# 1225588Listed by: LRE REALTY LLC - Open Fri, 12 to 6pmNew
$518,900Active4 beds 3 baths2,163 sq. ft.16100 Catalonia Place, Oklahoma City, OK 73170
MLS# 1225637Listed by: LUXURY REAL ESTATE