940 S Bear Lane, Mustang, OK 73064
Local realty services provided by:Better Homes and Gardens Real Estate The Platinum Collective
Listed by: john burris
Office: central oklahoma real estate
MLS#:1204059
Source:OK_OKC
940 S Bear Lane,Mustang, OK 73064
$228,566
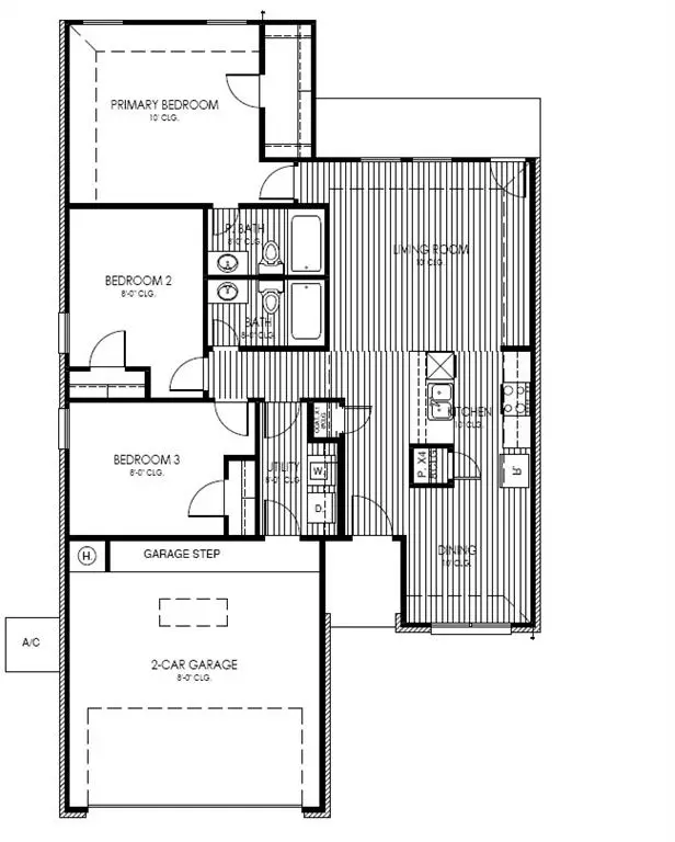
- 3 Beds
- 2 Baths
- 1,301 sq. ft.
- Single family
- Active
Price summary
- Price:$228,566
- Price per sq. ft.:$175.68
About this home
PRICE REDUCED! This brand-new construction home in the desirable Wild Horse Canyon community of Mustang has just been reduced from $238,900 to $226,566, making it an exceptional value.
Designed with modern living in mind, the open-concept layout seamlessly connects the living, dining, and kitchen areas—ideal for everyday living and entertaining. The kitchen features contemporary finishes, ample cabinetry, and a functional design that overlooks the main living space.
The private primary suite offers a comfortable retreat with an ensuite bath and generous closet space, while additional bedrooms provide flexibility for guests, a home office, or hobbies. Enjoy the peace of mind and efficiency that comes with new construction, along with energy-efficient features throughout.
Conveniently located in Mustang with easy access to shopping, dining, schools, and major highways, this move-in-ready home combines comfort, location, and value. Opportunities like this don’t last—schedule your showing today!
Built by a trusted local Oklahoma builder serving families since 1981, this home offers lasting value and dependable construction. Energy-efficient features include a tankless water heater, low-e windows, high-performance insulation, and built-in tornado safety elements for added peace of mind.
Located in Wild Horse Canyon, Colony Fine Homes’ newest Mustang community, you’ll enjoy beautiful views and quick access to shopping, dining, and recreation. Walmart, Lowe’s, and Atwoods are less than three minutes away, and the highly rated Mustang School District is just around the corner. Tucked off Sara Rd., the neighborhood offers a peaceful setting with easy access to everything you need. Schedule your Showing today!
Contact an agent
Home facts
- Year built:2025
- Listing ID #:1204059
- Added:92 day(s) ago
- Updated:February 26, 2026 at 03:58 PM
Rooms and interior
- Bedrooms:3
- Total bathrooms:2
- Full bathrooms:2
- Flooring:Carpet, Laminate
- Kitchen Description:Dishwasher, Disposal
- Living area:1,301 sq. ft.
Heating and cooling
- Cooling:Central Electric
- Heating:Central Gas
Structure and exterior
- Roof:Composition
- Year built:2025
- Building area:1,301 sq. ft.
- Lot area:0.17 Acres
- Lot Features:Interior Lot
- Architectural Style:Traditional
- Construction Materials:Brick & Frame
- Exterior Features:Patio - Open
- Foundation Description:Slab
Schools
- High school:Mustang HS
- Middle school:Mustang MS
- Elementary school:Mustang ES
Utilities
- Water:Public
Finances and disclosures
- Price:$228,566
- Price per sq. ft.:$175.68
Features and amenities
- Appliances:Dishwasher, Disposal
- Laundry features:Laundry Room
New listings near 940 S Bear Lane
- New
$400,000Active5 beds 3 baths2,442 sq. ft.5509 Carmel Creek Drive, Mustang, OK 73064
MLS# 1216092Listed by: OPENDOOR BROKERAGE LLC - New
$253,000Active3 beds 2 baths1,500 sq. ft.3720 Los Cabos Drive, Mustang, OK 73064
MLS# 1215977Listed by: OPENDOOR BROKERAGE LLC - New
$255,900Active3 beds 2 baths1,458 sq. ft.1205 E Stallion Lane, Mustang, OK 73064
MLS# 1216050Listed by: CENTRAL OKLAHOMA REAL ESTATE - New
$249,150Active3 beds 2 baths1,394 sq. ft.1208 E Stallion Lane, Mustang, OK 73064
MLS# 1216053Listed by: CENTRAL OKLAHOMA REAL ESTATE - New
$399,567Active4 beds 3 baths1,975 sq. ft.5013 Vine Cliff Road, Mustang, OK 73064
MLS# 1216056Listed by: BRIX REALTY - New
$270,900Active4 beds 2 baths1,600 sq. ft.949 S Buffalo Lane, Mustang, OK 73064
MLS# 1216023Listed by: CENTRAL OKLAHOMA REAL ESTATE - New
$259,900Active3 beds 2 baths1,502 sq. ft.948 S Bear Lane, Mustang, OK 73064
MLS# 1216031Listed by: CENTRAL OKLAHOMA REAL ESTATE - New
$254,900Active3 beds 2 baths1,458 sq. ft.1204 E Ruger Lane, Mustang, OK 73064
MLS# 1216035Listed by: CENTRAL OKLAHOMA REAL ESTATE - New
$243,900Active3 beds 2 baths1,333 sq. ft.945 S Buffalo Lane, Mustang, OK 73064
MLS# 1216037Listed by: CENTRAL OKLAHOMA REAL ESTATE - New
$260,900Active3 beds 2 baths1,502 sq. ft.1220 E Stallion Lane, Mustang, OK 73064
MLS# 1216039Listed by: CENTRAL OKLAHOMA REAL ESTATE