828 NE 68th Street, Oklahoma City, OK 73105
Local realty services provided by:Better Homes and Gardens Real Estate Paramount
Listed by:terri l cunningham
Office:cb/mike jones company
MLS#:1190180
Source:OK_OKC
828 NE 68th Street,Oklahoma City, OK 73105
$168,900
- 3 Beds
- 2 Baths
- 1,274 sq. ft.
- Single family
- Pending
Price summary
- Price:$168,900
- Price per sq. ft.:$132.57
About this home
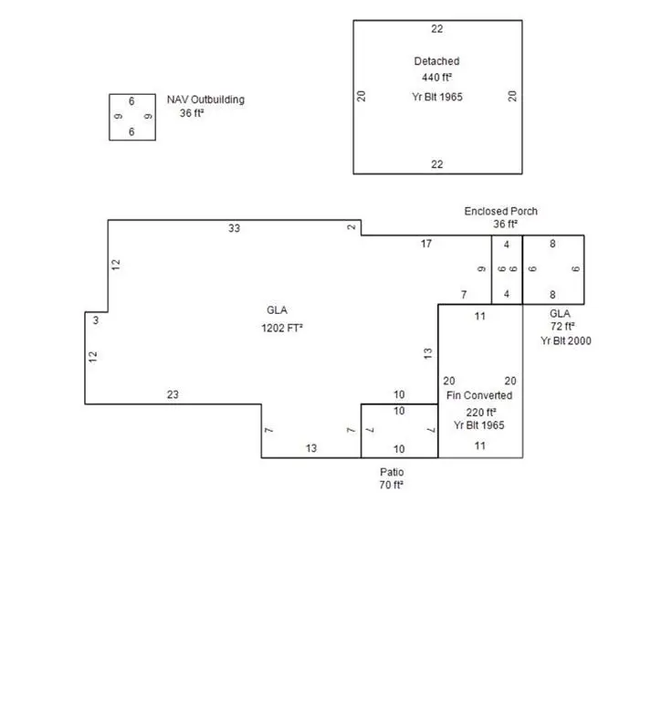
Sturdy and established 1274 square foot home on spacious lot(s) 9-16 (.5326) & 17–20 (.2663) total 3/4 of an acre or .7989. Location is convenient yet situated in a scenic and serene community. First time Buyer(s) and Investors are welcome!!
Home includes lower level space which could serve as an office.
**** ask me about an additional (.5326) corner lot(s) to Laird - (fsbo) ****** both purchases would equate to over an acre when purchased with this property ***
****45 minutes MAX on showings**** home is temporarily occupied.
Contact an agent
Home facts
- Year built:1946
- Listing ID #:1190180
- Added:51 day(s) ago
- Updated:October 28, 2025 at 12:23 PM
Rooms and interior
- Bedrooms:3
- Total bathrooms:2
- Full bathrooms:1
- Half bathrooms:1
- Living area:1,274 sq. ft.
Heating and cooling
- Cooling:Combination
- Heating:Central Electric
Structure and exterior
- Roof:Composition
- Year built:1946
- Building area:1,274 sq. ft.
- Lot area:0.53 Acres
Schools
- High school:Millwood HS
- Middle school:Millwood MS
- Elementary school:Millwood ES
Utilities
- Water:Public
Finances and disclosures
- Price:$168,900
- Price per sq. ft.:$132.57
New listings near 828 NE 68th Street
- New
$187,000Active2 beds 1 baths1,058 sq. ft.537 SW 45th Street, Oklahoma City, OK 73109
MLS# 1197956Listed by: METRO FIRST REALTY - New
$285,000Active3 beds 2 baths2,292 sq. ft.4836 SE 85th Terrace, Oklahoma City, OK 73135
MLS# 1198071Listed by: ESCROW STRATEGY LLC - New
$214,990Active3 beds 2 baths1,400 sq. ft.12621 Peppertree Place, Oklahoma City, OK 73142
MLS# 1198091Listed by: VYLLA HOME - New
$234,990Active3 beds 2 baths1,434 sq. ft.8825 SW 31st Terrace, Oklahoma City, OK 73179
MLS# 1198147Listed by: D.R HORTON REALTY OF OK LLC - New
$249,990Active4 beds 2 baths1,572 sq. ft.8820 SW 31st Terrace, Oklahoma City, OK 73179
MLS# 1198151Listed by: D.R HORTON REALTY OF OK LLC - New
$235,000Active3 beds 2 baths1,873 sq. ft.11525 Hastings Avenue, Yukon, OK 73099
MLS# 1194715Listed by: H&W REALTY BRANCH - New
$179,900Active2 beds 2 baths1,468 sq. ft.4632 NW 60th Street, Oklahoma City, OK 73122
MLS# 1198080Listed by: CENTURY 21 FIRST CHOICE REALTY - New
$95,000Active3 beds 1 baths998 sq. ft.1908 NE Grand Boulevard, Oklahoma City, OK 73111
MLS# 1198134Listed by: PAT'S PROPERTY MANAGEMENT LLC - New
$219,990Active3 beds 2 baths1,280 sq. ft.8824 SW 31st Terrace, Oklahoma City, OK 73179
MLS# 1198144Listed by: D.R HORTON REALTY OF OK LLC - New
$489,990Active3 beds 2 baths2,150 sq. ft.16304 Blue Mist Lane, Oklahoma City, OK 73013
MLS# 1198119Listed by: ROI REAL ESTATE LLC