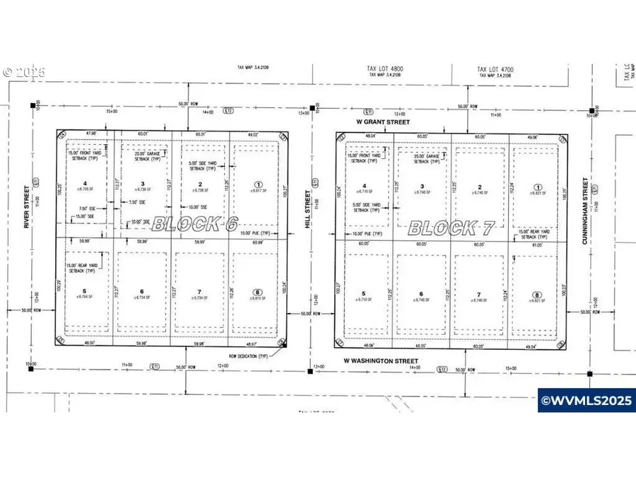
Lot 7 Block 6, Carlton, OR 97111

Local realty services provided by:Better Homes and Gardens Real Estate Realty Partners
Lot 7 Block 6,Carlton, OR 97111
$183,900
  • 0.15 Acres
  • Lots / Land
  • Active
Listed by: jake lucey
Office: coldwell banker mountain west
MLS#:497591829
Source:PORTLAND

Price summary

  • Price:$183,900

About this home

Welcome to Carlton's newest development! Located directly across from Wennerberg Park & next to farm ground, they make for a truly peaceful setting. All lots over 6700 square feet & all at 60' wide to easily fit a 3 car garage plan or allow for extra RV/Trailer parking. Construction complete & lots are all ready for foundations, bring your own plans! Each lot comes with approx $4,300 in SDC credits, this is discounted off the price of your building permits! Entity member is a licensed broker in State of OR.

Contact an agent

contact an agent

Yes, I would like more information. Please use and/or share my information with a BHGRE®  affiliated agent to contact me about my real estate needs. By clicking Send message, I request to be contacted by phone or text message and consent to being contacted by automated means. I understand that my consent to receive calls or texts is not a condition of purchasing any property, goods, or services. Alternatively, I understand that I can access real estate services by email or I can contact the agent myself.

If a BHGRE®  affiliated agent is not available in the area where I need assistance, I agree to be contacted by a real estate agent affiliated with another brand owned or licensed by Anywhere Real Estate (CENTURY 21® , Coldwell Banker® , Corcoran® , ERA® , Sotheby's International Realty® ).
 I acknowledge that I have read and agree to theTerms of useandPrivacy notice

Home facts

  • Listing ID #:497591829
  • Added:97 day(s) ago
  • Updated:December 17, 2025 at 03:04 PM

Structure and exterior

  • Lot area:0.15 Acres

Schools

  • High school:Yamhill-Carlton
  • Middle school:Yamhill-Carlton
  • Elementary school:Yamhill-Carlton

Utilities

  • Water:Water Available

Finances and disclosures

  • Price:$183,900
MLS LogoAll information provided is deemed reliable but is not guaranteed and should be independently verified. The content relating to real estate for sale on this web site comes in part from the IDX program of the RMLS of Portland Oregon. Real estate listings held by brokerage firms other than Better Homes and Gardens Real Estate Realty Partners are marked with the RMLS logo and detailed information about these properties includes the names of the listing brokers. Copyright 2025 RMLS, Portland, Oregon. Last updated: December 17, 2025