420 Mayberry Lane, Central Point, OR 97502
Local realty services provided by:Better Homes and Gardens Real Estate Equinox
420 Mayberry Lane,Central Point, OR 97502
$895,000
- 3 Beds
- 3 Baths
- 2,553 sq. ft.
- Single family
- Active
Listed by: amy m moore
Office: twin creeks real estate, inc.
MLS#:220210237
Source:OR_SOMLS
Price summary
- Price:$895,000
- Price per sq. ft.:$350.57
About this home
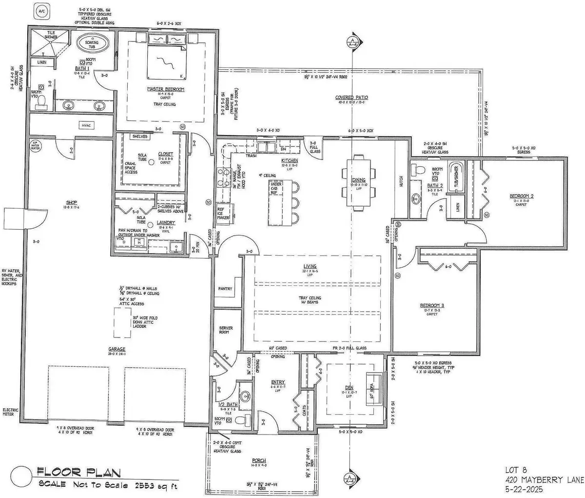
WOW! This home to be built has it all: Single level, 3 bedrooms, 2 1/2 baths, 2-car garage WITH a tandem bay/shop, HUGE RV parking with hook-ups AND room for a pool! Still time to customize the plan and amenities. You'll love this new floor plan by Mark Thomas Construction. Large welcoming front porch, spacious entry with large coat closet. Great Room with boxed beam ceiling. Double pocket doors to Den/Office with closet. Island kitchen with walk-in pantry, Kitchen-aid cooktop, wall oven/micro, and fridge. Dining area adjacent to kitchen. Large utility room w/folding counter and sink. Guest bedroom wing with 2 spacious bedrooms and guest full bath. Powder room off the entry. Master Suite with water closet, custom tile shower, soaking tub, dual vanities and large custom closet. RV parking is 15' x 75'!! wide with RV hookups. Sweet west Central Point location in the Mae Richardson school dist.
Contact an agent
Home facts
- Year built:2025
- Listing ID #:220210237
- Added:154 day(s) ago
- Updated:March 10, 2026 at 02:26 PM
Rooms and interior
- Bedrooms:3
- Total bathrooms:3
- Full bathrooms:2
- Half bathrooms:1
- Flooring:Hardwood, Tile
- Bathrooms Description:Double Vanity, Enclosed Toilet(s), Shower/Tub Combo, Tile Shower
- Kitchen Description:Dishwasher, Microwave, Range, Range Hood, Refrigerator
- Bedroom Description:Primary Downstairs
- Living area:2,553 sq. ft.
Heating and cooling
- Cooling:Central Air
- Heating:Forced Air, Natural Gas
Structure and exterior
- Roof:Composition
- Year built:2025
- Building area:2,553 sq. ft.
- Lot area:0.3 Acres
- Lot Features:Drip System, Fenced, Landscaped, Level, Smart Irrigation, Sprinkler Timer(s), Sprinklers In Front
- Architectural Style:Craftsman
- Construction Materials:Frame
- Exterior Features:RV Dump, RV Hookup
- Foundation Description:Concrete Perimeter
- Levels:1 Story
Schools
- High school:Crater High
- Middle school:Scenic Middle
- Elementary school:Mae Richardson Elem
Utilities
- Water:Public
- Sewer:Public Sewer
Finances and disclosures
- Price:$895,000
- Price per sq. ft.:$350.57
- Tax amount:$460 (2024)
Features and amenities
- Appliances:Dishwasher, Microwave, Range, Range Hood, Refrigerator, Tankless Water Heater
New listings near 420 Mayberry Lane
- New
$340,000Active1 beds 1 baths848 sq. ft.13007 Perry Road, Central Point, OR 97502
MLS# 220216715Listed by: WINDERMERE TRAILS END R.E. - New
$200,000Active26.16 AcresPerry Road, Central Point, OR 97502
MLS# 220216719Listed by: WINDERMERE TRAILS END R.E. - New
$429,000Active3 beds 2 baths1,698 sq. ft.1630 Timothy Street, Central Point, OR 97502
MLS# 220216680Listed by: JOHN L. SCOTT MEDFORD - New
$345,000Active3 beds 2 baths1,227 sq. ft.2335 New Haven Drive, Central Point, OR 97502
MLS# 220216521Listed by: WINDERMERE VAN VLEET & ASSOC2 - New
$265,000Active2 beds 2 baths1,014 sq. ft.512 Village Drive, Central Point, OR 97502
MLS# 220216641Listed by: KELLER WILLIAMS REALTY SOUTHERN OREGON - New
$649,000Active6 beds 6 baths6,965 sq. ft.4132 Livingston Road, Central Point, OR 97502
MLS# 220216552Listed by: JOHN L. SCOTT MEDFORD - New
$419,900Active2 beds 2 baths1,397 sq. ft.650 Golden Peak Drive, Central Point, OR 97502
MLS# 220216553Listed by: COLDWELL BANKER PRO WEST R.E. - New
$49,000Active1 beds 1 baths857 sq. ft.6901 Old Stage Road #UNIT 24, Central Point, OR 97502
MLS# 220216556Listed by: RE/MAX INTEGRITY - New
$340,000Active3 beds 1 baths1,040 sq. ft.209 Corcoran Lane, Central Point, OR 97502
MLS# 220216463Listed by: EXP REALTY, LLC - New
$460,000Active3 beds 2 baths1,784 sq. ft.1189 Lindsey Court, Central Point, OR 97502
MLS# 220216473Listed by: JOHN L. SCOTT MEDFORD