95766 Jerrys Flat Rd, Gold Beach, OR 97444
Local realty services provided by:Better Homes and Gardens Real Estate Equinox
95766 Jerrys Flat Rd,Goldbeach, OR 97444
$575,000
- 2 Beds
- 2 Baths
- 1,920 sq. ft.
- Single family
- Active
Listed by:katie hensley
Office:re/max ultimate coastal properties
MLS#:149126742
Source:PORTLAND
Price summary
- Price:$575,000
- Price per sq. ft.:$299.48
About this home
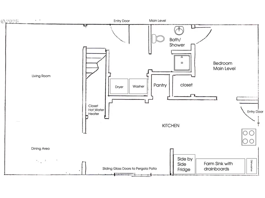
Nestled in a beautiful, sunny microclimate, this charming well maintained Farmhouse offers so many possibilities for your real estate dreams! The current layout and configuration lends itself to several opportunities: a single family home, an up/down duplex, a multi-generational set up, or the option to live on one level and rent out the other to help pay your mortgage! Located approx 7 minutes from the Ocean and just across the street from the beautiful Rogue River, this quiet and serene location boasts a truly beautiful microclimate that features more sun, less wind, and incredible growing conditions that allow you to grow citrus, tomatoes and all the things on your garden wish list! This half acre site is perfect for a small homestead! It features mature landscape with fruit trees, 2 greenhouses, rose garden, raised bed gardens, water features and a stunning pergola patio draped in wisteria!Inside you will find two beautiful floors of a farmhouse with a flexible layout for your living needs. The property is configured in such a way that you can live on both levels, or choose to live on one level and rent the other out with your own separate entrances and privacy! The possibilities are numerous!A peaceful paradise, this property hosts lots of natural light and the charm of a historic farmhouse with the updated modern living and conveniences!
Contact an agent
Home facts
- Year built:1910
- Listing ID #:149126742
- Added:8 day(s) ago
- Updated:October 26, 2025 at 11:19 AM
Rooms and interior
- Bedrooms:2
- Total bathrooms:2
- Full bathrooms:2
- Living area:1,920 sq. ft.
Heating and cooling
- Heating:Mini Split
Structure and exterior
- Roof:Composition
- Year built:1910
- Building area:1,920 sq. ft.
- Lot area:0.51 Acres
Schools
- High school:Gold Beach SR
- Middle school:Gold Beach JR
- Elementary school:Riley Creek
Utilities
- Water:Public Water
- Sewer:Standard Septic
Finances and disclosures
- Price:$575,000
- Price per sq. ft.:$299.48
- Tax amount:$1,814 (2024)
New listings near 95766 Jerrys Flat Rd
- New
$289,000Active2 beds 1 baths1,896 sq. ft.94246 1st St, GoldBeach, OR 97444
MLS# 686247323Listed by: CENTURY 21 AGATE REALTY/GOLD - New
$178,000Active3 beds 2 baths1,344 sq. ft.94120 Strahan St #3, GoldBeach, OR 97444
MLS# 442724235Listed by: RE/MAX ULTIMATE COASTAL PROPERTIES
$290,000Active-- beds 1 baths794 sq. ft.94252 11th St, GoldBeach, OR 97444
MLS# 558555145Listed by: RE/MAX ULTIMATE COASTAL PROPERTIES
$70,000Active2 beds 1 baths576 sq. ft.29450 Ellensburg Ave #802, GoldBeach, OR 97444
MLS# 574852812Listed by: RE/MAX ULTIMATE COASTAL PROPERTIES
$220,000Pending2 beds 1 baths920 sq. ft.28344 Hunter Creek Hts, GoldBeach, OR 97444
MLS# 211117280Listed by: EXP REALTY LLC
$499,000Active4 beds 4 baths2,915 sq. ft.29153 Kerber Dr, GoldBeach, OR 97444
MLS# 472384764Listed by: PACIFIC COAST REAL ESTATE & DEVELOPMENT, LLC
$495,500Active2 beds 2 baths1,401 sq. ft.94097 Weber Way, GoldBeach, OR 97444
MLS# 557905149Listed by: RE/MAX ULTIMATE COASTAL PROPERTIES
$1,318,000Active4 beds 3 baths4,174 sq. ft.94418 Tom Cat Hill Rd, GoldBeach, OR 97444
MLS# 471731857Listed by: RE/MAX ULTIMATE COASTAL PROPERTIES
$675,000Active4 beds 3 baths1,992 sq. ft.94345 Orchard Ln, GoldBeach, OR 97444
MLS# 424986473Listed by: CENTURY 21 AGATE REALTY/GOLD
$770,000Pending3 beds 3 baths2,176 sq. ft.29595 Pacific St, GoldBeach, OR 97444
MLS# 429859596Listed by: RE/MAX ULTIMATE COASTAL PROPERTIES