3359 SW 209th Ave, Hillsboro, OR 97123
Local realty services provided by:Better Homes and Gardens Real Estate Realty Partners
3359 SW 209th Ave,Hillsboro, OR 97123
$349,900
- 3 Beds
- 3 Baths
- - sq. ft.
- Single family
- Sold
Listed by: david mcduffee
Office: lennar sales corp503-476-3846
MLS#:442076015
Source:PORTLAND
Sorry, we are unable to map this address
Price summary
- Price:$349,900
- Monthly HOA dues:$248
About this home
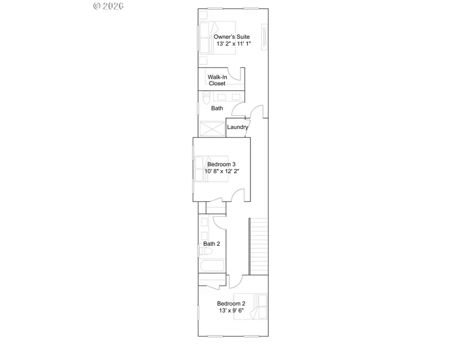
This new construction home by Lennar is located in Reed's Crossing, a new vibrant community only minutes from major employers with more than 36 acres of open spaces connected by paths, a Town Center featuring shopping and dining, and access to highly rated schools. The 3 bedroom, 2.5 bathroom Dallas plan offers a spacious two-story layout with an open-concept kitchen, dining area, and living room on the first floor, along with a covered patio ideal for outdoor relaxation. Upstairs are three bedrooms, including the well-appointed primary suite, which features a walk-in closet and an en-suite private bath with a double vanity. Interior highlights include quartz countertops, Shaker-style cabinets, LVP flooring in the kitchen and entry, LVT in the bathrooms, and two-tone interior paint. This home also includes central air conditioning, a refrigerator, washer and dryer, and blinds—all at no extra cost! Exterior rendering is an artists conception only. Exterior rendering is an artists conception only. Other photos are of similar or model home, but flooring & counter tops shown are accurate. Cabinets will be white. Ask your sales associate David for details. Home will be ready for you in the Spring. Homesite 1628. Flex credit/closing cost incentive available when financing with preferred lender! Use towards rate buydown and closing costs. [Home Energy Score = 10. HES Report at https://rpt.greenbuildingregistry.com/hes/OR10244078]...
Contact an agent
Home facts
- Year built:2026
- Listing ID #:442076015
- Added:52 day(s) ago
- Updated:April 24, 2026 at 06:34 AM
Rooms and interior
- Bedrooms:3
- Total bathrooms:3
- Full bathrooms:2
- Half bathrooms:1
- Kitchen Description:Dishwasher, Disposal, Free Standing Gas Range, Free Standing Refrigerator, Gas Appliances, Microwave, Quartz, Stainless Steel Appliance
- Basement Description:Crawl Space
Heating and cooling
- Cooling:Central Air
- Heating:Forced Air 90+
Structure and exterior
- Roof:Composition
- Year built:2026
- Architectural Style:2 Story, Townhouse
- Exterior Features:Covered Patio
- Foundation Description:Concrete Perimeter
- Levels:2 Stories
Schools
- High school:Hillsboro
- Middle school:South Meadows
- Elementary school:Rosedale
Utilities
- Water:Public Water
- Sewer:Public Sewer
Finances and disclosures
- Price:$349,900
Features and amenities
- Laundry features:Washer/Dryer
- Amenities:Double Pane Window(s), Laundry, Vinyl Frame Windows
Parking
- Total parking spaces:1
- Garage spaces:1
New listings near 3359 SW 209th Ave
$350,000Active2 beds 3 baths1,104 sq. ft.10525 NE Cedar Falls Loop, Beaverton, OR 97006
MLS# 574958090Listed by: METRO WEST REALTY- New
$644,950Active4 beds 3 baths1,814 sq. ft.3685 SE 83rd Av, Hillsboro, OR 97123
MLS# 840132Listed by: REALTY ONE GROUP WILLAMETTE VALLEY - New
$475,000Active3 beds 3 baths1,477 sq. ft.3201 SE Robin Cir, Hillsboro, OR 97123
MLS# 345282850Listed by: MOVE REAL ESTATE INC - New
$465,000Active3 beds 1 baths1,240 sq. ft.1927 NE Thomas St, Hillsboro, OR 97124
MLS# 329066491Listed by: WINDERMERE REALTY TRUST - Open Sat, 11am to 1pmNew
$975,000Active6 beds 4 baths3,995 sq. ft.7006 NE Elm St, Hillsboro, OR 97124
MLS# 687014712Listed by: PREMIERE PROPERTY GROUP, LLC - Open Sat, 2 to 4pmNew
$649,000Active3 beds 3 baths2,434 sq. ft.6344 NE Meadowgate Ct, Hillsboro, OR 97124
MLS# 162227178Listed by: OREGON FIRST - New
$929,900Active4 beds 3 baths2,830 sq. ft.1648 NE Stile Dr, Hillsboro, OR 97124
MLS# 180427795Listed by: EXP REALTY, LLC - Open Sat, 1 to 3pmNew
$309,900Active2 beds 2 baths1,151 sq. ft.1294 NE 86th Way, Hillsboro, OR 97006
MLS# 716377795Listed by: COLDWELL BANKER BAIN - New
$225,000Active1.13 AcresNW Meek St, Hillsboro, OR 97124
MLS# 735866492Listed by: FIBONACCI REALTY - Open Sat, 12 to 3pmNew
$675,000Active4 beds 3 baths2,535 sq. ft.6354 NE Marina Ct, Hillsboro, OR 97124
MLS# 611902470Listed by: OREGON FIRST